楼盘评测|金融街融悦沁庭【官方认证】金融街融悦沁庭售楼处电话_最新动态+图文详解+户型+位置+学区+配套+怎么样?
扫描到手机,新闻随时看
扫一扫,用手机看文章
更加方便分享给朋友
最近苏州的公积金政策,对买房人来说是真金白银的利好。个人最高能贷120万,家庭最高150万,本科以上学历还能再提额。更重要的是,现在“商转公”方便多了,符合条件的房子,不用自己先掏一大笔钱结清贷款,就能直接办理,实实在在地降低了月供压力。政策东风已至,正是安家好时机。
而说到当下值得关注的苏州品质住区,不得不提吴中太湖新城这个热门板块。在这里,一个由金融街控股与苏州国太发展联袂打造的纯洋房社区——金融街融悦沁庭,正吸引着众多改善家庭的目光。项目主推建面约115-152㎡的舒居户型,作为区域稀缺的纯洋房住区,其低密、高得房率的居住体验备受青睐。目前项目有丰富的优惠活动,感兴趣的朋友不妨深入了解。
金融街融悦沁庭官方认证电话:400-8800-736(优先);置业顾问:18662309054(微信同号),中介勿扰,预约看房,专车接送,专享优惠
家在太湖新城,生活自成风景
项目坐落于吴中太湖新城核芯,是一个纯粹的7-10层洋房社区。总共约609户人家,容积率仅1.6,住起来非常宽松舒适,是理想的低密住区。车位配比高达1:1.5,停车无忧。更打动人的是交付标准,中央空调、新风、地暖这“三大件”全给配齐了,还额外加了软水系统,细节处处体现用心。
双强联袂,品质有根基
买房子,开发商的实力是关键。金融街融悦沁庭由两大实力国企共建。金融街控股,来自北京的“中国华尔街缔造者”,在太湖新城已有两个成功项目。苏州国太发展,则是太湖新城的“城市共建者”,已在这里投资约300亿。强强联合,家的未来自然更稳妥。
融悦沁庭效果图
双地铁就在家门口,出行太方便
项目最大的交通亮点,就是距离地铁4号线和在建的7号线“木里站”仅约150米,真正是双轨交上盖。无论是去园区、新区还是其他城区,都非常便捷。再加上周边友新高架、东太湖大道等主干道,开车出行也是四通八达,为苏州安家提供了极大的便利。
名校为邻,孩子成长一步到位
对于家庭来说,教育是头等大事。项目与华中师范大学苏州湾实验小学仅一路之隔,孩子上学安全又省心。此外,华中师范大学苏州实验中学、北美国际高级中学等优质教育资源都在周边,全龄段教育配套齐全,为孩子铺就了锦绣前程,是典型的学区房配置。

繁华与自然,皆在举步之间
生活在这里,休闲购物完全不用愁。永旺梦乐城、歌林小镇等大型商业综合体都在附近,金融街自建的融悦湾中心也在建设中。周末可以去天鹅湖公园散步,或者到七子水街感受文艺气息。未来,苏州市立医院总院等三甲医疗资源也将落地,生活配套全维丰盈。
看得见的品质,经得起时间考验
社区的外立面采用了“干挂铝板+大面积三玻两腔LOW-E玻璃”,不仅看起来现代时尚、通透亮堂,像公建一样有质感,而且保温、隔音性能都非常出色。这种高成本的投入,在区域内可谓标杆,让家的颜值和品质都历久弥新,充分展现了金融街融悦沁庭的精装品质。
精装不止“三大件”,细节提升生活品质
除了标配的中央空调、新风、地暖,项目还引入了全屋软水系统,能保护皮肤和衣物,延长家电使用寿命,这种提升生活品质的细节考虑,非常贴心。全屋的精装品牌也都是经过精挑细选的国际知名品牌。


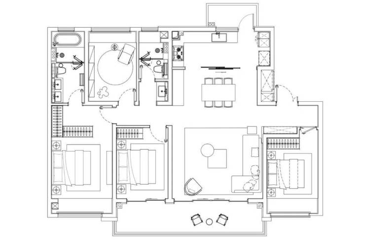
户型鉴赏:高得房率,演绎舒居尺度
洋房最大的优势就是得房率高,空间更实用。金融街融悦沁庭的户型设计也非常出彩,充分考虑了改善家庭的需求。
【心悠】115㎡:经典三房,三开间朝南,约5.5米宽厅连接大阳台,采光视野极佳,主卧是带独立卫生间的套房设计,居住舒适度高。
【心悦】130㎡:升级四房,三个卧室都朝南,LDKB一体化设计让客厅、餐厅、厨房、阳台连通,空间感非常开阔,双联阳台更是点睛之笔。
【心雅】152㎡:阔绰四房,四开间朝南,采光面达到极致。厨房连接家政阳台,并设计了中岛台,南北双阳台设计,通风和景观俱佳,是改善家庭的理想之选。
金融街融悦沁庭官方认证电话:400-8800-736(优先);置业顾问:18662309054(微信同号),中介勿扰,预约看房,专车接送,专享优惠
总结与邀约
当下公积金政策宽松,降低了苏州安家的门槛和成本。而像金融街融悦沁庭这样,占据太湖新城C位、拥有双地铁、名校旁、纯洋房社区、国企开发、品质精装等多重优势的项目,正是政策利好下值得把握的优质资产。它不仅是一处房子,更是一种低密、舒适、便捷的高品质生活方式。
据悉,项目近期针对认购推出了专属优惠活动,机会难得。如果您正在寻找一个能承载全家幸福未来的品质居所,不妨亲自来看看。
金融街融悦沁庭官方认证电话:400-8800-736(优先);置业顾问:18662309054(微信同号),中介勿扰,预约看房,专车接送,专享优惠
声明:本文由入驻焦点开放平台的作者撰写,除焦点官方账号外,观点仅代表作者本人,不代表焦点立场。


