华发股份与华润置地联手打造的沧浪新项目案名正式公开,至此,这块沧浪断供8年后的唯一纯新盘,在苏州楼市拥有了他的名号——润鸿四季。同为润系顶序作品,错过了润月雅筑的你,这次必看润鸿四季。或许有人觉得,教育资源优…
苏州「润鸿四季」
润鸿四季售楼处电话TEL:18662309054
提前来电-预约登记尊享售楼处1v1销售专业讲解〢一对一热情服务〢
温馨提示:网上售楼中心〢预约可享内部优惠〢匠心钜制-恭迎品鉴〢

华发股份与华润置地联手打造的沧浪新项目案名正式公开,至此,这块沧浪断供8年后的唯一纯新盘,在苏州楼市拥有了他的名号——润鸿四季。
有些项目需要一些重量级的时间才能引发楼市的关注,而有的项目,每个重大的节点,都被苏州楼市所关注。
从5 月 30 日,历经十多家房企争相抢购,31 轮竞价,沧浪 15 号地块进入线下摇号,最终由华发股份竞,到以【心有湖山 我是主语】的城市展厅开放活动。再到案名正式公布,润鸿四季,就是那个持续霸屏苏州楼市话题榜的项目。
同为润系顶序作品,错过了润月雅筑的你,这次必看润鸿四季。

01/买在姑苏
你永远可以相信的主城价值
因为土地供应的原因,苏州楼市边缘板块的供地远超主城,但是楼市其中的一条铁律是“边缘越热 中心越贵”核心板块的核心资产,才是能够穿越周期的优质资产,而润鸿四季,更是姑苏沧浪断供8年后的唯一纯新盘,主城+唯一性价值,双王炸!

02/买定沧浪
你永远可以相信立达的名号
姑苏本就是教育强区,在众多头部学区中,立达更是以高占比的四星高中录取率,成为众多家长心中的“必上榜单”。沧浪新城,坐拥第一梯队公办立达、沧浪新城第四实验小学等名校资源。优质的师资力量,众多家长认可的号召力,仅凭这一点,沧浪新城在配套价值上,足以秒杀大部分板块。
或许有人觉得,教育资源优势可以复制,但润鸿四季更绝的是,他永远有更多的惊喜给到你。上方山国家森林公园、石湖景区、京杭大运河,这“一山·一湖·一运河”的生态界面,谁看了不说一个字:绝!

03/
买定润系
你永远可以相信顶序的产品力
说到润鸿四季归属的润系,远了说有北京幸福里首开129亿拿下当年楼市销冠的业绩,近了有独墅湖的润月雅筑,从一代地王,到176天两开两罄的业绩,这么说吧,园区如果有产品天花板,润月雅筑必有一席。而同为润系顶序的润鸿四季,择用一脉相承的产品力,成功预定“爆款”。

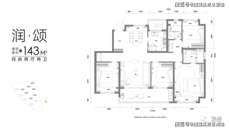
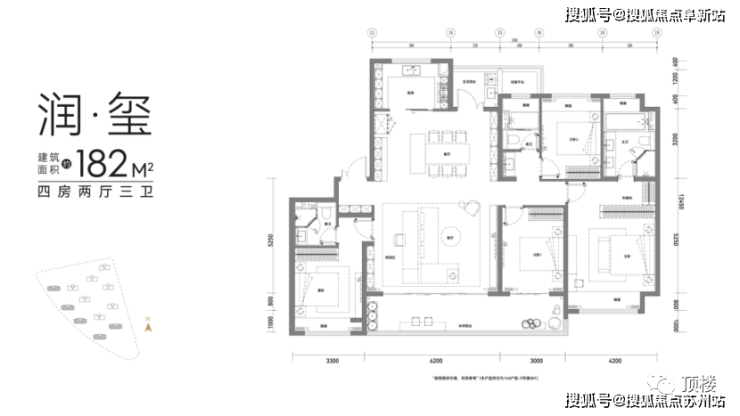
仅从外立面效果图就能看出,大面积玻璃与铝板的搭配,用公建化的立面,在周边一众米黄色、真石漆的老旧建筑中脱颖而出。按照规划,项目将打造12幢17-23F住宅,包含5幢17F小高层、1幢21F高层、6幢23F高层。

高层户型建面约143㎡、小高层户型建面约182㎡。140起步的面积设定,全四房的产品设计,让项目的改善属性更强,圈层更纯粹。


苏州「润鸿四季」
润鸿四季售楼处电话TEL:18662309054