建屋·新棠玥:园区斜塘低密大宅,首付15%轻松安家
扫描到手机,新闻随时看
扫一扫,用手机看文章
更加方便分享给朋友
近期,苏州楼市迎来了一系列利好政策,首套房首付降至15%,利率最低3.00%,公积金贷款利率降至2.85%,贷款额度大幅提升,二孩及以上家庭最高可贷195万,本科及以上学历人才最高可贷225万。这些政策无疑为改善型住房需求提供了有力支持,也让更多家庭有机会在园区这样的优质区域安家落户。在这样的政策背景下,建屋·新棠玥应运而生,为追求品质生活的家庭提供了理想选择。
基本信息
建屋·新棠玥,这个由新建元与苏州恒泰联袂打造的新一代玥系开篇作品,坐落在苏州工业园区独墅湖大道与星塘街交汇处西北侧。项目占地约4万㎡,容积率仅1.7,建筑密度低至19.8%,规划了11栋13-17层的小高层住宅,户型面积段为165-225㎡的四房三卫设计。这样的低密度规划,意味着更少的住户共享更多的公共空间,居住舒适度自然更高。
18662309054
区域配套
斜塘这个地方,可以说是园区发展的精华所在,从产城融合到人城境业全面融合,构建了卓越领先的园区盛景。这里以更开放的姿态享受时代红利与配套先行的高屋建瓴,已经成为园区人居高地,承载着时代的发展方向。
在苏州园区"一主两副四片多点"的战略格局下,斜塘交汇于金鸡湖中央商务区、独墅湖科教创新区、高端制造与国际贸易区和苏州园区东站副中心之上,享受更高能级的城市规划,必然汇聚时代潮向与发展力。
这里的配套可以说是全方位的:
高浓自然圈:金鸡湖右岸客厅、独墅湖公园、弥陀泾,让你随时亲近自然
高效出行圈:独墅湖城市主干道、星塘街、约4公里外的苏州东站(在建),出行便捷无忧
高教创新圈:工业园区图书馆、独墅湖文体中心湾国际中心,文化氛围浓厚
缤纷生活圈:湖东CBD、奥体中心、邻瑞广场(山姆店)、斜塘老街,生活便利应有尽有

品牌价值
建屋·新棠玥由「新建元」与「苏州恒泰」两大国企联袂打造,是赋新园区时代人居的全新开场,也是31载园本之心在产城融合之下的人居在地新实践。
新建元集团是园区成立时间最早、规模最大的国资企业,以引领产业创新、推动城市繁荣为己任,为助推区域产业转型升级、提升民众美好生活品质而不断前行,努力践行"创新改变城市"的核心理念,矢志成为产城融合的创领者。代表项目有金鸡湖右岸客厅。
苏州恒泰控股集团有限公司,是中新合作苏州工业园区直属的大型国有企业,净资产138亿元,资产总规模365亿元,集团突出商业地产、产业地产、租赁住房三大主营业务,累计开发各类物业载体760万平方米,已成为园区商业地产、产业地产、租赁住房领域重要的载体持有者和运营商。
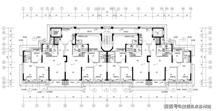
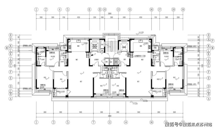
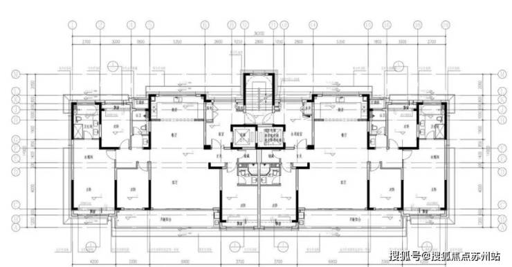
户型鉴赏
建屋·新棠玥的户型设计充分考虑了现代家庭的生活需求,面积段为165-225㎡的四房三卫设计,无论是三口之家还是三代同堂,都能找到适合自己的空间布局。

10#14F小高层标准层

1#17F小高层标准层(建面约175平)
6#16F小高层标准层(建面约215㎡)
这些户型设计充分考虑了采光、通风和空间利用,每个房间都有合理的布局和尺寸,让居住更加舒适。
优势分析
新建元建屋,采撷31载园区人居理念,落子斜塘,绘策时代,以玥系高端产品线展开新质时代人居所需,着力于传承苏式人居文脉,塑新时代符号大宅,以国际前瞻视野与在地文化开启全新作展开苏式人居的场域精神。
大师修为|匠筑传世美学
项目邀请了多位国际知名设计师联袂执笔,以国际前沿美学理念,演绎具备时代精神的美学场域,创见苏州新人文作品,致敬时代的精英人物。
建筑设计由宋照青Lacime Architects日清设计创始人担纲,代表作品有上海新天地、上海中星美华村、华东师范大学丽娃河畔书吧等。
*宋照青大师会所设计手稿
景观设计由A&N尚源景观担纲,精装设计由Yan Design大研设计负责,泛光设计由bpi照明设计完成,真正实现了大师联袂执笔,共绘枕河私屿。
玥系开篇|建屋·新棠玥
枕河而居,时新境进,溯源苏式人居之源,承续沧浪之六境,以土地文脉为天赋,从归家仪式、建筑立面、景观设计、奢美空间、服务营造等高阶人居需求,重构人居新境,演绎园区人居的新一页。
繁华静处,心有私屿。建屋·新棠玥,以新质人居为要求与前瞻,描绘人与城市共创的时代符号,赋新园区时代人居新意。迭写时代的园意与城市的生生不息。
随着苏州楼市政策的持续优化,园区作为苏州发展的核心区域,其价值将进一步凸显。建屋·新棠玥作为园区斜塘板块的高端住宅项目,不仅拥有得天独厚的地理位置和完善的配套资源,更有大师级的设计理念和品质保证。
在当前政策支持下,首套房首付降至15%,利率最低3.00%,公积金贷款额度大幅提升,这些政策无疑降低了购房门槛,提升了购房能力。对于追求品质生活的家庭来说,现在正是入手建屋·新棠玥的好时机。
未来,随着园区东站的建成通车,斜塘板块将进一步融入园区发展大局,区域价值将持续提升。建屋·新棠玥作为玥系开篇作品,不仅是一个高品质的居住空间,更是园区生活方式的全新诠释,将成为园区人居的新标杆。
选择建屋·新棠玥,不仅是选择一个家,更是选择一种生活方式,选择一个充满无限可能的未来。
联系方式:18662309054
声明:本文由入驻焦点开放平台的作者撰写,除焦点官方账号外,观点仅代表作者本人,不代表焦点立场。


