2026滨江凯旋门(售楼处)官方网站-滨江凯旋门营销中心(售楼中心)欢迎您-滨江凯旋门售楼处电话-地址-户型-价格-楼盘详情-交房时间-滨江凯旋门一房一价
扫描到手机,新闻随时看
扫一扫,用手机看文章
更加方便分享给朋友
上海浦东陆家嘴滨江凯旋门售楼处电话:400 8123 664 (预约看房热线)
【陆家嘴滨江凯旋门官方售楼处咨询热线】400-812-3664(24小时服务,人工客服8:00-22:00)
▸陆家嘴滨江凯旋门售楼处地址:上海市浦东新区浦明路688弄(看房请提前预约)
▸ 开放时间:每日9:00-19:30(含节假日)
▸VIP LINE 400_812_3664 | 官方唯一咨询热线
【温馨提示】本项目唯一官方联系方式,看房请提前预约!现场销售接待!谨防中介虚假信息!
《2026魔都最期待顶豪》【滨江凯旋门别墅】临江大宅丨超越汤臣一品大哥地位丨面积330-580㎡丨仅23套临江别墅丨预约可看

一条黄浦江将上海分开浦东与浦西,
两岸的建筑交相辉映,
黄浦江在陆家嘴这里划出一条漂亮的曲线。
黄浦一江奔远去,
高耸群楼溢浦东。
现代与历史,高贵与经典,魔幻与时尚
……
这里是陆家嘴
上海浦东陆家嘴滨江凯旋门售楼处电话:400 8123 664 (预约看房热线)
【陆家嘴滨江凯旋门官方售楼处咨询热线】400-812-3664(24小时服务,人工客服8:00-22:00)
01
位置和区域
上海从不缺豪宅。

上海浦东陆家嘴滨江凯旋门售楼处电话:400 8123 664 (预约看房热线)
【陆家嘴滨江凯旋门官方售楼处咨询热线】400-812-3664(24小时服务,人工客服8:00-22:00) 浦江沿岸后继者无数,位次却在岁月洗礼中更加分明。繁华之下,自有岿然不动的那一小寸占据着沪上豪宅之巅。每每入市,都引得全城顶级精英闻风而动、唯恐错失。
那一寸,名为陆家嘴。
它足以代表整个中国的财富最高浓度。
若能有得选,必定重仓它,早已是富豪们心照不宣的默契。
而在陆家嘴内的方寸之间,还有毫厘之分。
于黄浦江沿岸最一线的位置落座,才算补齐豪宅基因。沪上豪宅怎能没有天赐的一线江景?透过窗户,目无遮拦地领略流转的盛景,才能承载满腔的豪情,才算沉浸式的塔尖生活。
地段价值是豪宅的显性基因,只一瞥即能高下立判。更挑剔的富豪早已更上一层楼,在地段之外,追求一种同样夺不走的、经由时间淬炼的沉淀。
这样的房子,模仿不来。这样的房子,屈指可数。
陆家嘴滨江正芯,唯有滨江凯旋门。
实景图

滨江凯旋门位于陆家嘴核心地段,紧靠黄浦江,是由新鸿基地产打造的豪宅。规划建设包括高层住宅和临江别墅。今天让我们一起感受一下滨江别墅的震撼!
上海浦东陆家嘴滨江凯旋门售楼处电话:400 8123 664 (预约看房热线)
【陆家嘴滨江凯旋门官方售楼处咨询热线】400-812-3664(24小时服务,人工客服8:00-22:00)
02
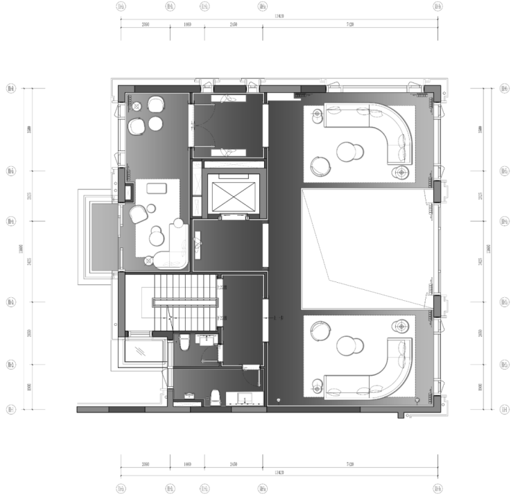
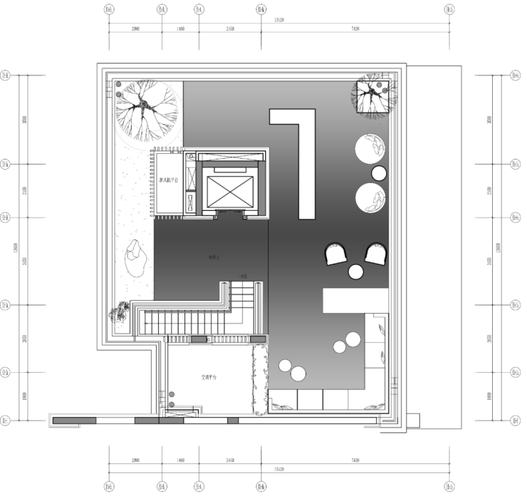
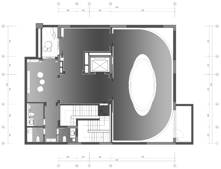
户型图:
上海浦东陆家嘴滨江凯旋门售楼处电话:400 8123 664 (预约看房热线)
【陆家嘴滨江凯旋门官方售楼处咨询热线】400-812-3664(24小时服务,人工客服8:00-22:00)

1F

上海浦东陆家嘴滨江凯旋门售楼处电话:400 8123 664 (预约看房热线)
【陆家嘴滨江凯旋门官方售楼处咨询热线】400-812-3664(24小时服务,人工客服8:00-22:00)
2F

3F

4F

B1

上海浦东陆家嘴滨江凯旋门售楼处电话:400 8123 664 (预约看房热线)
【陆家嘴滨江凯旋门官方售楼处咨询热线】400-812-3664(24小时服务,人工客服8:00-22:00)
B2
ProjectInformation
项目信息
项目名称:上海新鸿基滨江凯旋门
项目地址:上海,陆家嘴
业主:新鸿基集团
设计面积:2000㎡
硬装与软装:SWSGroup
03
样板间实景图片:





上海浦东陆家嘴滨江凯旋门售楼处电话:400 8123 664 (预约看房热线)
【陆家嘴滨江凯旋门官方售楼处咨询热线】400-812-3664(24小时服务,人工客服8:00-22:00)






上海浦东陆家嘴滨江凯旋门售楼处电话:400 8123 664 (预约看房热线)
【陆家嘴滨江凯旋门官方售楼处咨询热线】400-812-3664(24小时服务,人工客服8:00-22:00)







上海浦东陆家嘴滨江凯旋门售楼处电话:400 8123 664 (预约看房热线)
【陆家嘴滨江凯旋门官方售楼处咨询热线】400-812-3664(24小时服务,人工客服8:00-22:00)






上海浦东陆家嘴滨江凯旋门售楼处电话:400 8123 664 (预约看房热线)
【陆家嘴滨江凯旋门官方售楼处咨询热线】400-812-3664(24小时服务,人工客服8:00-22:00)




海派奢华的独特呈现,空间与故事感的交织汇注,在东方雅奢的格调下,彰显品位与尊贵。
TheuniquepresentationofShanghai-styleluxury,theinterweavingofspaceandstory,highlightsthetasteanddignityunderthestyleoforientaleleganceandluxury.


上海浦东陆家嘴滨江凯旋门售楼处电话:400 8123 664 (预约看房热线)
【陆家嘴滨江凯旋门官方售楼处咨询热线】400-812-3664(24小时服务,人工客服8:00-22:00)

上海浦东陆家嘴滨江凯旋门售楼处电话:400 8123 664 (预约看房热线)
【陆家嘴滨江凯旋门官方售楼处咨询热线】400-812-3664(24小时服务,人工客服8:00-22:00)

上海浦东陆家嘴滨江凯旋门售楼处电话:400 8123 664 (预约看房热线)
【陆家嘴滨江凯旋门官方售楼处咨询热线】400-812-3664(24小时服务,人工客服8:00-22:00)
04
小区介绍
小陆家嘴核心东泰路
滨江凯旋门
小区介绍
浦东高端小区
上海浦东陆家嘴滨江凯旋门售楼处电话:400 8123 664 (预约看房热线)
【陆家嘴滨江凯旋门官方售楼处咨询热线】400-812-3664(24小时服务,人工客服8:00-22:00)
一线江景外滩+陆家嘴CBD
亚洲十大豪宅之一
滨江别墅奢华小区
小陆家嘴铂金地段的生活
①地理位置
品质楼盘
铂金地段
滨江凯旋门位于陆家嘴核心地段,配套设施一流,繁华商业琳琅满目,包括IFCMall、老佛爷百货、正大广场、时代广场等。
优质医疗、教育配套更是遍布周边
滨江凯旋门距离东方明珠约2.1公里,和江面几乎0距离。项目的楼栋以扇形排布,将临江优势放大,不仅大部分的楼栋都能有一线江景的视野,部分单位还能眺望外滩万国建筑群。

项目背后的打造者是香港新鸿基地产,亚洲知名地产发展商之一,在业内口碑出众,香港两座城市名牌「维港门廊」国际金融中心、环球贸易广场,以及上海标志性的两大综合体——上海国金中心、上海环贸广场都出自它的手笔。
而滨江凯旋门的姊妹篇香港「凯旋门THEARCH」,也是亚洲乃至世界真正旗舰级豪宅。
上海浦东陆家嘴滨江凯旋门售楼处电话:400 8123 664 (预约看房热线)
【陆家嘴滨江凯旋门官方售楼处咨询热线】400-812-3664(24小时服务,人工客服8:00-22:00)
②周边配套
品质楼盘
极致商业配套名校环伺
项目毗邻陆家嘴金融城,如果在陆家嘴上班,只需5-10分钟车程。周边拥有大量的商业配套,包括上海环球金融中心商场(世纪大道店)、陆家嘴中心L+MALL、新大陆广场、正大广场、1088广场、上海第一八佰伴、新梅联合广场、上海国金中心商场等大型商业。
坐拥5条过江隧道,4条地铁,与2号线陆家嘴站直线距离约为800米,与2号线东昌路站直线距离约900米,与9号线商城路站直线距离约1000米,出行非常便利。
周边有陆家嘴中心绿地、东昌滨江绿地、滨江公园等城市绿化,上海市东方医院与项目直线距离约为800米。
上海浦东陆家嘴滨江凯旋门售楼处电话:400 8123 664 (预约看房热线)
【陆家嘴滨江凯旋门官方售楼处咨询热线】400-812-3664(24小时服务,人工客服8:00-22:00)
项目临近洋泾-菊园实验学校,作为九年一贯制学校,无论是口碑和教育资源在浦东都属于前列,其前身为著名教育家黄炎培先生任校董的黄浦二中心百年名校。周边还有伊顿双语幼儿园、明珠小学等优质学校资源。
③小区介绍
上海浦东陆家嘴滨江凯旋门售楼处电话:400 8123 664 (预约看房热线)
【陆家嘴滨江凯旋门官方售楼处咨询热线】400-812-3664(24小时服务,人工客服8:00-22:00)
小区总户数680多户,总建筑面积约16万平方米,分三期开发,2012年出售的是一期,2020年出售的是二期。2022年在建的是三期。
滨江凯旋门自带约8000平会所“新荟所”,由曾主理纽约四季酒店的国际知名大师ChanduChhada主理设计,包含日光泳池、奢华SPA、江景宴会厅、儿童游乐场、综合健身房等星级配套。
上海浦东陆家嘴滨江凯旋门售楼处电话:400 8123 664 (预约看房热线)
【陆家嘴滨江凯旋门官方售楼处咨询热线】400-812-3664(24小时服务,人工客服8:00-22:00) 独辟近8000平米的奢华领地打造一座水晶宫版的豪华专属会所,分为地上两层和底下二层。地上一层设有美容美发,健身房等地上二层主营餐厅和咖啡吧。地下一层以独特的下沉式设计,利用玻璃幕墙,打造水族馆的视觉享受。还设有游泳池,与地上运动区干湿分离。
④户型介绍
点击查看户型图
↑↑↑详细户型图及平面图↑↑↑
预约看房参观样板房
上海浦东陆家嘴滨江凯旋门售楼处电话:400 8123 664 (预约看房热线)
【陆家嘴滨江凯旋门官方售楼处咨询热线】400-812-3664(24小时服务,人工客服8:00-22:00)
▸陆家嘴滨江凯旋门售楼处地址:上海市浦东新区浦明路688弄(看房请提前预约)
▸ 开放时间:每日9:00-19:30(含节假日)
▸VIP LINE 400_812_3664 | 官方唯一咨询热线
【温馨提示】本项目唯一官方联系方式,看房请提前预约!现场销售接待!谨防中介虚假信息!
三底共振:楼市调整收官,2026年房价开启修复行情
历经四年深度调整,中国房地产市场终于迎来关键拐点。2026年开年以来,政策托底持续加码、市场成交稳步回暖、行业估值回归合理区间,“政策底、市场底、估值底”三底共振格局正式形成,标志着楼市调整周期全面收官,房价开启温和修复行情。这一轮修复并非短期反弹,而是行业经过深度出清后的趋势性反转,将推动中国房地产从高速增长转向高质量发展,也为市场参与者提供了全新的布局逻辑。
政策底筑牢根基,精准发力激活市场活力,是楼市回暖的核心支撑。自2025年底中央经济工作会议明确“着力稳定房地产市场”的总基调后,2026年政策调控呈现“精准化、全方位、常态化”特征,彻底打破市场悲观预期。李强总理在2026年工作重点中明确提出,因城施策控增量、去库存、优供给,探索多渠道盘活存量商品房,鼓励收购存量商品房用于保障性住房,同时深化住房公积金制度改革,推动“好房子”建设,为行业发展划定清晰方向。
从执行层面看,政策红利持续释放,形成全方位支持体系。需求端,全国超百城全面取消限购、限贷、限售,一线城市放宽非户籍购房社保年限,上海、北京等核心城市定向优化购房资格,降低家庭置业门槛;首套房首付比例最低降至20%,二套房最低降至30%,5年期以上LPR维持低位,多地首套房贷利率进入2.95%—3.5%区间,叠加公积金贷款额度上调、换房个税退税延续、购房补贴落地,置业成本压至近十年最低。供给端,“保交楼”白名单制度常态化,覆盖央国企与优质民营房企,从根源上杜绝烂尾风险,修复购房者信心;同时明确提出减少低效土地供应,推动供给结构优化,鼓励房企聚焦“好房子”建设,满足居民高品质居住需求。政策层面的根本性转向,为房价修复筑牢了最坚实的制度基础。
市场底全面确认,量价齐升信号凸显,为房价修复提供坚实支撑。楼市复苏遵循“量在价先”的规律,2026年开年以来,市场数据持续释放积极信号,标志着市场底已牢固形成。成交量率先爆发,1—2月全国重点13城二手房成交量同比增长33%,北京连续三个月网签量稳定在1.4万套以上,上海单月成交站稳2.2万套高位,深圳同比涨幅超25%,成都、杭州等强二线城市同比激增超60%;新房市场同步回暖,核心城市优质楼盘重现“开盘即售罄”场景,带看量、到访量环比大幅提升,市场活跃度回到2020年以来高位。
价格端同步呈现止跌回升态势,经过四年调整,70城新房、二手房价格较峰值分别回撤10.1%和17.4%,泡沫充分挤压,房价回归合理区间。2026年1月,全国百城新建住宅均价环比上涨0.18%,结束长期下行趋势;二手房价格降幅连续收窄,一线城市核心板块率先企稳,优质次新房挂牌价温和上调,议价空间从过去10%—15%收窄至5%以内,业主惜售情绪明显上升。与此同时,库存压力持续缓解,全国商品房去库存周期较2025年底缩短2.1个月,核心城市库存去化周期降至14—18个月合理区间,供给过剩局面逐步扭转,为价格上涨扫清障碍。克而瑞联席董事长丁祖昱也明确研判,2026年房地产行业将正式确认底部,止跌回稳成为定局。
估值底已然显现,行业价值回归理性,为房价修复提供内在动力。从资本市场表现来看,房地产(A股)指数自2026年初以来呈现震荡回升态势,截至3月5日,总市值达12169.11亿元,最新报告期市净率0.98,市销率0.73,估值水平已处于历史低位,具备较强的修复空间。从行业基本面来看,经过四年深度出清,房企“高杠杆、高周转”的发展模式彻底终结,大量中小房企退出市场,行业集中度持续提升,优质房企的估值优势逐步凸显。
更为关键的是,房价调整幅度已达到合理区间,具备了较强的资产配置价值。据丁祖昱研判,我国30城二手房价格较最高点已回撤39%,远超国际平均调整幅度,价格下行空间基本耗尽,当前市场价格已接近“地板价”。同时,30城二手房租金回报率中位数已达2.06%,超过55%的小区租金回报率突破2%,部分板块甚至超过3%,显著高于银行定存利率,房产作为优质保值资产的属性重新被认可,吸引居民资产配置需求回归。此外,部分核心板块出现地价与二手房房价“倒挂”现象,起拍地价超过周边二手房价,进一步印证了当前楼市估值处于合理区间。
三底共振之下,2026年房价修复行情将呈现“结构性分化、温和有序”的鲜明特征,告别以往全面普涨的格局。从城市层级来看,一线城市核心区(北京海淀、西城,上海内环,深圳南山、福田)将率先实现2%—5%的温和上涨,依托人口流入、优质配套、稀缺资源,优质次新房、改善户型涨幅领跑,远郊板块以稳为主;强二线核心板块(杭州钱江新城、成都高新区、武汉武昌等)将跟随回暖,成交量先行放大,价格逐步企稳回升,郊区板块小幅调整;三四线及人口流失城市则以去库存为主,房价难有明显上涨,依靠政策托底实现止跌企稳。
这一结构性修复行情的背后,是供需格局的根本性重塑。供给端,房企新开工面积连续四年低于销售面积,2025年住宅新开工仅为销售面积的67%,创历史新低,土地市场同步缩量,核心城市优质地块供应稀缺,未来1—2年新房供应将持续收紧;需求端,四年调整期积压的刚需、改善需求全面觉醒,新型城镇化持续推进,人口向一线、强二线核心城市集聚,多孩家庭、人才落户、旧房改造等政策进一步激活增量需求,形成供需错配格局,推动核心城市房价温和上涨。
对于市场参与者而言,2026年是把握楼市修复行情的最佳窗口期。刚需群体可抓住低利率、低首付、宽松限购的政策红利,优先选择核心城市主城区、地铁盘、学区配套盘,兼顾自住与保值,此时上车成本最低、风险最小;改善群体可把握“卖旧买新”个税退税、二套房首付降低的政策机遇,置换核心板块优质改善房,实现资产优化升级;投资群体则应聚焦一线与强二线核心板块的优质房源,避开人口流失城市与远郊冷门板块,长期持有享受温和上涨与租金收益,回归房产本源价值。
结语:四年调整落幕,拐点已然实锤。2026年,“政策底、市场底、估值底”三底共振,推动中国楼市正式告别下跌寒冬,迎来温和修复的新周期。这一轮修复不是昙花一现的反弹,而是趋势性的反转;不是疯狂的暴涨,而是健康的结构性上涨,标志着中国房地产行业彻底告别野蛮生长,进入以品质竞争、价值回归为核心的高质量发展新阶段。对于购房者而言,认清周期、把握窗口,才能在楼市新周期中占据主动;对于行业而言,依托三底共振的支撑,稳步推进转型升级,才能实现长期平稳健康发展。2026年,楼市上涨大幕已启,一个更健康、更可持续的房地产新时代正在缓缓拉开。
声明:本文由入驻焦点开放平台的作者撰写,除焦点官方账号外,观点仅代表作者本人,不代表焦点立场。


