四季都会(2024)首页网站-四季都会楼盘评测_四季都会 |户型丨停车位 |环境
扫描到手机,新闻随时看
扫一扫,用手机看文章
更加方便分享给朋友
五轨交+400万级+世外系加持+得房率80%+万科物业=置业首选
四季都会青藤里三期
四季都会青藤里 售楼处电话☎:400-8228-664 ✔✔✔
加推建面约92-122m²高层
建面约140-154m²叠墅以及172m²合院
均价53194元/m²,400多万即可上车正轨交3房
四季都会青藤里√欢迎您致电品鉴 预约热线:400-8228-664【预约热线】
温馨提示:网上售楼中心〢预约尊享Vip一对一专业置业顾问讲解!
_Vip营销中心_____欢迎来电预约尊享内部折扣_____匠心钜制恭迎品鉴!中介勿扰!
√Welcome to call the tasting appointment hotline: 400-8228-664 [Appointment hotline] Warm reminder: Online sales center〢 Make an appointment to enjoy VIP one-on-one professional property consultant explanation! _Vip marketing center_____Welcome to call to make an appointment to enjoy the exclusive internal discount_____Welcome to taste the ingenious masterpiece!No agents please!
如有问题欢迎来电咨询,来电即可享受买房优惠!
预约来电尊享购房优惠,可预约案场内部销售人员,专业一对一热情服务,让您用专业眼光去买房
项目整体规模约105万方,业态包罗万象,要知道四季都会原本规模号称约90万方,算上如今的新四季都会的约105万方,总体量已经接近200万方!
四季都会青藤里 售楼处电话☎:400-8228-664 ✔✔✔在原四季都会的基础上迭代升级,更多功能,更多细节,项目也被大家称为四季都会2.0!
外立面部分, 四季都会青藤里 售楼处电话☎:400-8228-664 ✔✔✔采用“EPS装饰线条+仿石涂料+玻璃栏板”的材质,整体外观简约大气,历久弥新。
更重要的是,从立面效果图中可以发现一个彩蛋细节: 四季都会青藤里 售楼处电话☎:400-8228-664 ✔✔✔】的南侧阳台是半封闭的,这也就意味阳台部分,只计算一半面积!
【 四季都会青藤里 售楼处电话☎:400-8228-664 ✔✔✔得房率本来就高,再加上半封闭阳台,这实用面积又增加了很多啊!
在景观方面,由于整个项目占地面积较大,而且非常方正,所以整体可以容纳更多的景观轴线和景观组团。
首先就是项目主入口的酒店式落客区,打造宁静雅致的归家体验,营造大气庄重的归家仪式感。
社区内部景观,除了叠拼部分的园艺小院和高层部分宅间花园之外,还设计了“两大四小”六个成规模的景观组团,分别是:月光宝盒、混龄光环、植物园及互动社交空间等。
“月光宝盒”是归家动线中的主要景观组团之一,其中包含了不同特色、不同属性的景观小品。
如:浅水面戏水区、疏林草坪,这里不仅颜值高,而且也非常实用,是周末休闲的好去处。
如:休闲卡座区、长凳剧场,这里更注重社交属性,不仅更可以增强邻里之间的交流,也可以作为业主的“第二客厅”,更实用更有面子。
“混龄光环”组团其实更像是社区内的游乐天地,这里分布着众多的活动场域,如:植物迷宫、植物花园、起伏山丘、花丛传音、虫洞奇遇等等。
坦白来说,现在外面商场的游乐场所大同小异,如果节假日带孩子出去旅行游玩的话,“混龄光环”就是周末和孩子亲子娱乐的好去处。
项目还是1号线上难得的真地铁盘,直线距离地铁1号线富锦路站约400米。
除了地铁1号线之外,项目周边还有4条地铁,分别是:3号线、19号线(已公示)、22号线(规划中)、24号线(规划中),另外周边还有1个高铁站:宝山站。
可以说,杨行是整个宝山规划最好的板块!
区位示意图,仅供参考
新四季都会整体规模约105万方,业态包罗万象,要知道四季都会原本规模号称约90万方,算上如今的新四季都会的约105万方,总体量已经接近200万方!
四季都会售楼处


四季都会青藤里 售楼处电话☎:400-8228-664 ✔✔✔
三期期一房一价表

四季都会青藤里 售楼处电话☎:400-8228-664 ✔✔✔
四季都会青藤里 售楼处电话☎:400-8228-664 ✔✔✔

四季都会青藤里 售楼处电话☎:400-8228-664✔✔✔

四季都会青藤里 售楼处电话☎400-8228-664 ✔✔✔

四季都会青藤里 售楼处电话☎:400-8228-664✔✔✔
户型图赏鉴
四季都会青藤里 售楼处电话☎:400-8228-664 ✔✔✔
92m²户型,3开间朝南,双阳台设计,阳台的南向面宽接近6米,更具视觉延展性;
餐厅与厨房空间,非常符合当代年轻人的设计审美:
吧台延展式餐厅空间,完全可以视业主需求,做成半开放式厨房,做开放式台面,下厨之时享受主厨般的乐趣,如下图示意,中岛既可以做成U型厨房的补充台面,又可以作为两人的用餐空间:
示意图图源网络,非四季都会样板间,具体以交付为准

四季都会青藤里 售楼处电话☎:400-8228-664 ✔✔✔
再来看看本次101㎡户型与大一期103㎡户型的对比:

四季都会青藤里 售楼处电话☎:400-8228-664✔✔✔
新版户型,处于边套,不会有连廊;
新版面宽更大,加上阳台打通,起居空间更为舒适;
这次的主卫也带飘窗,且动静分离做得更好一些;
最后就是动线的设置,原来的客餐厅空间是一个长方形的空间,一家人用餐、进出房间、去客厅,动线会重叠;
四季都会青藤里 售楼处电话☎:400-887-8824 ✔✔✔✅而新户型,在各个区域门口,设置了一个近乎正方形的空间(户型图看是长方形的,实地看下来空间更方正一些),动线呈X交叉型,空间更灵动,而且肉眼看上去,房间感觉更宽敞!
四季都会青藤里 售楼处电话☎:400-8228-664 ✔✔✔
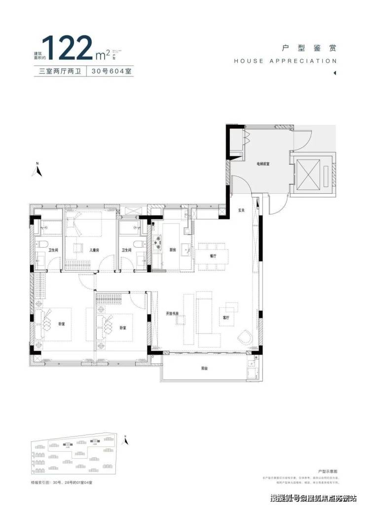
122㎡是3+1户型,大横厅设计,3+1开间朝南,大尺度阳台,南向面宽优秀,超大的客厅完全可以隔出一个灵动空间,无论是作为书房,还是家庭活动空间,
亲子阅读、电竞空间等等,都能作为维系家庭关系的纽带存在。
叠墅户型图如下
四季都会青藤里 售楼处电话☎:400-8228-664 ✔✔✔
四季都会青藤里 售楼处电话☎:400-8228-664 ✔✔✔
合院别墅户型图
新四季都会,携前期成功开发经验,再度回归,并在一期基础上,全面升级,是北上海毫无疑问的王炸产品。
项目规划
四季都会青藤里 售楼处电话☎:400-8228-664✔✔✔项目首发地块-蕰川社区BSPO-0401单元02B-09地块,位于杨北路北侧,距离1号线富锦路地铁站直线约500米!也就是说,除了四季都会以及近期的山东健康宝钰澜庭以外,杨行又有了新供应!
据悉,新四季都会项目为旧城改造,并无设置联动价。

四季都会青藤里 售楼处电话☎:400-8228-664✔✔✔
地块四至范围:东至02B-12地块,南至杨北路,西至02B-02地块,北至02B-03地块
根据设计方案显示,项目拟建15幢14-16F高层住宅,以及三幢多层别墅住宅,容积率2.0。
四季都会青藤里 售楼处电话☎:400-8228-664✔✔✔而项目周边的配套开发改造也正在进行当中,有研发空间、商办载体、社区配套、基础教育设施,绿化面积15.4万平方米。包含了4所幼儿园、1所小学+1所初中(已确定为“世外”系)、4个社区公共服务设施、9条道路、8座桥梁、4条河道,改造项目的实施。和大一期一样,商业、学校、市政配套、绿地等...一样都不少!
四季都会青藤里 售楼处电话☎:400-8228-664 ✔✔✔
项目大致位置
相比四季都会大一期,新四季都会除了在户型上作了升级之外,还升级了两方面。
第一,外立面的全面升级
简单来说,外观更好看、更年轻时尚:
通透的玻璃为主基调,简洁大气,利用线条和框的重新排列组合,立面简洁、现代,强化立面的高级感,在杭州就有相近的产品系,就拥有很高的市场呼声,来看分析示意图:
四季都会青藤里 售楼处电话☎:400-8228-664 ✔✔✔再来看看四季都会大二期的外立面效果图:通透玻璃赋予了建筑更高的窗墙比,四季都会的“第一表情”有比较强烈的视觉冲击力。

外立面效果图,实际以交付为准
第二,社区的全面升级
加强了社区与业主之间的互动性
归家更具仪式感,景观更有层次感:
四季都会青藤里 售楼处电话☎400-8228-664 ✔✔✔比如说归家仪式感,在小区入户处,设置双重“院落”,从酒店式的落客庭院进入到静心庭院,就能看到小区为业主精心打造的礼仪盒子,在这一方开放式空间里,业主可以日常休憩、读书娱乐,或者接待朋友;
主入口效果图,实际以交付为准
而这只是四季都会大二期社区【四大聚场】的1/4——街角剧场,除此之外,四季都会大二期还提供了:
运动聚场,包含了混龄光环、逐光跑道(含起跑区、拉伸区和能量补给站),露营草坪、羽光球场等;
自然聚场,包含了节气植物园、气味植物园和童年记忆园,业主日常放松身心的好去处;
林下聚场,提供了一系列嬉戏场景。

内部场景效果图
四季都会青藤里 售楼处电话☎:400-8228-664✔✔✔四大聚场错落拍不再小区的各个角落里,层次感丰富,互动性十足,足不出户,就可以享受园居生活,这塑造的不是一个冷冰冰的空间,而是一个人与人之间边界消融的有温度社区。

四季都会青藤里 售楼处电话☎:400-8228-664 ✔✔✔项目的物业由万科物业来操盘,这对于小区后期的价值提升有非常大的推动作用,
俗话说:“买房一阵子,物业一辈子!”评价一个楼盘的价值,除了价格、地段、配套等硬性指标外,物业服务也是一个十分关键的标准。
万科物业是业内第一批使用互联网产品的物业管理企业,开启智能化物业服务基础工程和精细化物业管理模式,智慧化服务。
加之项目位于宝山区杨行板块,杨行重点规划上海北站,拥享杨行镇生活北枢纽的轴心发展区。
据 四季都会青藤里 售楼处电话☎:400-8228-664 ✔✔✔上海北站规模仅次于虹桥站,将串联长江经济带,连接长三角、中三角、成渝地区,与虹桥枢纽相辅相成,是未来重要的交通枢纽。而杨行镇,位居大宁北,毗邻吴淞副中心,成为难得的城市发展双重战略的辐射区,未来可期。
生活配套

交通方面:项目距离轨道交通1号线富锦路站仅约400米。
四季都会青藤里 售楼处电话☎:400-8228-664✔✔✔在上海,地铁1号线是当仁不让的“主心骨”,沿线楼盘本就稀缺,如今四季都会以距离富锦路站仅约500的优势出场,自然备受瞩目。
四季都会青藤里 售楼处电话☎:400-8228-664✔✔✔海德名门西北侧自带商业,周边四季都会和中铁北城时代都有一定商业,附近还有宝山招商花园城、友谊西路地铁站旁的昊耀商业广场等。
四季都会青藤里 售楼处电话☎:400-8228-664 ✔✔✔项目东侧有规划的教育用地已确定为世外(九年制),周边有华师大附属杨行中学、华二附中宝山校区、上师大附属宝山外国语学校等。
四季都会青藤里 售楼处电话☎:400-8228-664 ✔✔✔项目门口就是约34万方大型水景白沙公园。这种出门走走就是公园的生活,在魔都是很难得是,更是很多人的居住向往。
五轨交+400万级+世外系加持+得房率80%+万科物业=置业首选
四季都会青藤里三期
四季都会青藤里 售楼处电话☎:400-8228-664 ✔✔✔四季都会青藤里 售楼处电话☎:400-8228-664 ✔✔✔加推建面约92-122m²高层
建面约140-154m²叠墅以及172m²合院
均价53194元/m²,400多万即可上车正轨交3房
四季都会青藤里√欢迎您致电品鉴 预约热线:400-8228-664【预约热线】
温馨提示:网上售楼中心〢预约尊享Vip一对一专业置业顾问讲解!
_Vip营销中心_____欢迎来电预约尊享内部折扣_____匠心钜制恭迎品鉴!中介勿扰!
√Welcome to call the tasting appointment hotline: 400-8228-664 [Appointment hotline] Warm reminder: Online sales center〢 Make an appointment to enjoy VIP one-on-one professional property consultant explanation! _Vip marketing center_____Welcome to call to make an appointment to enjoy the exclusive internal discount_____Welcome to taste the ingenious masterpiece!No agents please!
声明:本文由入驻焦点开放平台的作者撰写,除焦点官方账号外,观点仅代表作者本人,不代表焦点立场。


