苏州【紫金·翡丽甲第】紫金·翡丽甲第择址园区湖东核芯板块,延续园区金鸡湖向东发展的价值金线,精粹湖东的国际化配套资源,同行国际生活范式。在2023年11月29日的苏州第八批集中供地中,北京金隅集团股份有限公司…
2025年新房推荐
苏州【紫金 · 翡丽甲第】
金鸡湖东·建面约190㎡-275㎡世界静奢大宅
咨询热线:18662309054

基本信息
翡丽甲第
地块信息:苏园土挂(2023)04号
项目地址:园区中心大道北、西洛巷南、锦溪街东
项目名称:紫金·翡丽甲第(备案名:紫金翡丽雅筑)
开发品牌:北京金隅&保利置业
地块指标:占地约4.9万方,容积率1.5,总建11.9万方
住宅指标:规划打造6-9F洋房
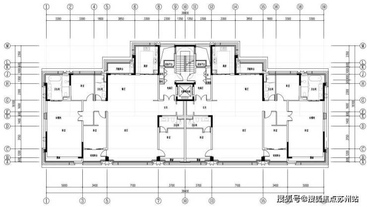
户型配置:约190㎡/225㎡/260㎡
精装标准:装修标准不低于5000元/平
价格信息:23.11.29楼面价39027元/㎡,备案均价63595元/㎡(苏州首个不限价地块)
售楼处电话:18662309054
区域配套
于稀有,终于稀贵。只有一二线城市的核心土地,才会诞生一座甲第。紫金·翡丽甲第择址园区湖东核芯板块,延续园区金鸡湖向东发展的价值金线,精粹湖东的国际化配套资源,同行国际生活范式。


品牌价值
保利置业&金隅地产
双匠联袂 镌刻经典藏品
保利置业&金隅地产,双国匠携手同行呈鉴,精粹经验大成,镌刻苏州经典人居藏品。在2023年11月29日的苏州第八批集中供地中,北京金隅集团股份有限公司。在与15家房企的激烈争夺中,以总价28.97亿元拿下此次出让中唯一溢价地块,成交楼面价39027元/平方米,溢价率超30%。
咨询热线:18662309054

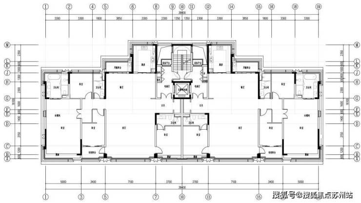
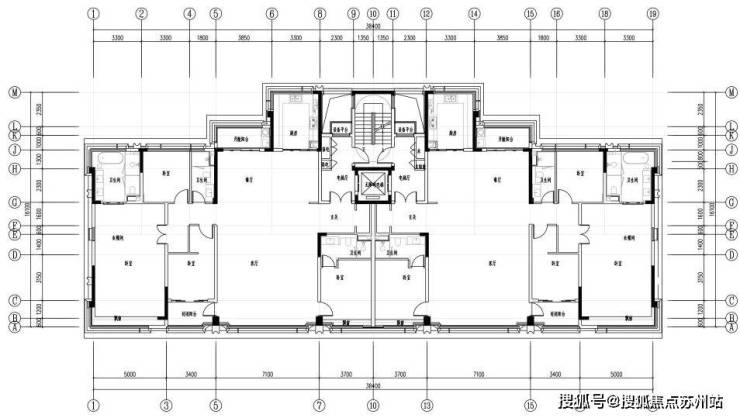
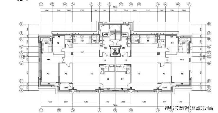
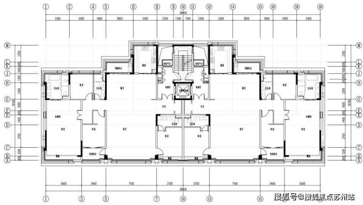
户型鉴赏

▲楼栋布局图
建面约190㎡户型,四房两厅三卫:


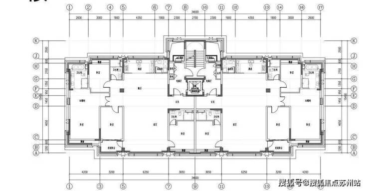
建面约225㎡户型,四房两厅三卫:


建面约290㎡户型,四房两厅三卫:


咨询热线:18662309054