作为苏州的顶豪项目,星合荣域西地块的一举一动注定是全程关注,万众瞩目的,此次规划公示引发市场热议,众说纷纭,误读很多。目前规划争议很大,但不得不说其规划不仅填补了双湖新房空白,更通过洋房与联排的差异化配比,满…
刚刚!万众瞩目
苏州顶豪史诗级王炸
星合双湖荣域西地块规划出炉
1.02容积率!326席联排+洋房
全系230-450㎡终极改善尺度
震撼来袭,预计5月就公开
园区星合荣域西咨询通道咨询热线:18662309054
热议不断,众说纷纭
预计5月公开,全城关注
顶豪盛宴 ,双湖C位,刚刚苏州顶豪史迎来史诗级里程碑!
星合操刀的荣域西地块规划出炉! 1.02超低容积率+双湖绝版一线湖景+新加坡顶奢血统,苏州塔尖圈层今夜无眠!

作为苏州的顶豪项目,星合荣域西地块的一举一动注定是全程关注,万众瞩目的,此次规划公示引发市场热议,众说纷纭,误读很多。
房观此次拿到了项目的一些核心资料,给大家做个独家爆料。
首先是备受争议的建筑立面,其实目前我们看到的不是项目最终稿的效果图,整个画质比较模糊,还是北面立面图,是不能很好的传达项目官方正式立面版本形象的。
房观有幸拿到了项目的南立面图,还是颇有质感的。
咨询热线:18662309054

据悉,整个立面由 新加坡SCDA事务所执笔,材质标准高于常规豪宅,采用 铝板+陶板组合,以银白色为主色调,通过体量错动、悬挑结构与垂直格栅设计,在保障每个单元的最佳景观视野+通透性的同时,更实现了艺术性与私密性的完美平衡。
其次是产品的规划方面,配比其实很有讲究。
此次产品配比,星合荣域西项目1.02的容积率,并没有多度的去开发低密度别墅类产品,是值得让人深思的。
一、是别墅建筑密度过高,会导致绿化率大量减少。
二,这种洋房+联排的配比,更能通过 错落式建筑布局营造无遮挡视野,保证各户型单元充足的日照与景观视野;是实现居住舒适度与园林景观的更好平衡。
三、绿城玫瑰园洋房的供不应求,也足以说明高端客群的喜好。所以房观认为星合此次产品组合,正是对塔尖人群居住偏好的深度思考。
接着是它的户型设计,很有星合特色。
洋房户型, 动静分明,公区足够奢阔,这样一来静态区(卧室+书房)形成隐私缓冲带,家人互不干扰,动态区(客厅+餐厨+阳台)集中一侧,形成" 回字形"动线,家务/会客路径缩短30%以上。

再加上整个户型卫生间全明,独立储藏室,17.3米超大面宽,给与业主不一样的豪宅体验感。
别墅户型,据悉后期会调整为 当下较为流行的大面宽设计,具体等项目公开的资料再做一些解析,所以大家根本不用担心。
作为新加坡综合投资集团,星合在苏州已开发 金湖湾花园、晋园别墅、水巷邻里、洲际酒店、凯悦酒店等10余个项目,以低密豪宅与高端商业见长,有着极高的市场认知度和客户美誉度。

此次,星合荣域西地块以新加坡血统的精工设计、双湖绝版景观及星合的顶豪基因,成为2025年苏州楼市最受瞩目的项目。虽然目前规划争议很大,但不得不说其规划不仅填补了双湖新房空白,更通过洋房与联排的差异化配比,满足塔尖客群对“城市核心低密生活”的终极想象,或将成为长三角顶豪市场的风向标。
同时值得关注的是后期价格可能有惊喜,毕竟要比清盘的绿城玫瑰园(65022元/㎡)地价 少7000+元/㎡,最后给大家剧透下项目的开盘节点, 预计5月份展厅公开,喜欢的提前关注起来。
咨询热线:18662309054
2
联排+洋房!顶豪登场!
园区双湖王炸地块规划出炉
接下来,我们回顾下项目的产品规划细节。
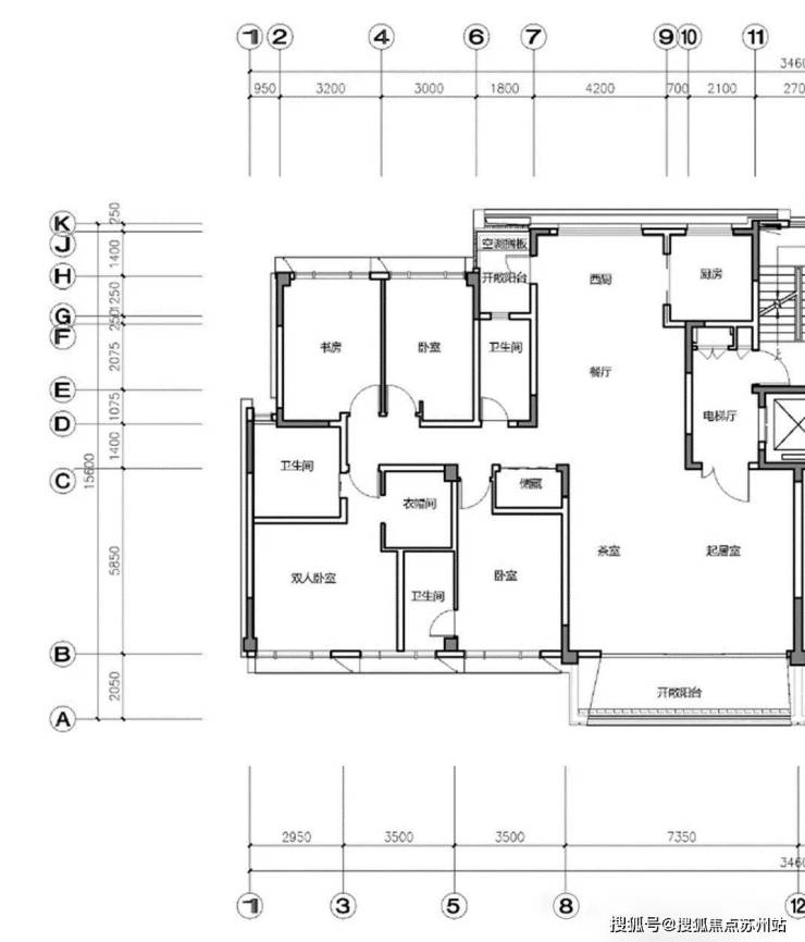
根据规划公示,星 合荣域西项目拟建35栋7F洋房+3F联排产品,其中23栋3F联排、12栋7F大平层洋房,预估326套。
其中据说 洋房面积大概在约230/290/350㎡左右,联排大概约280-450㎡左右!
从总图上看,项目未来社区主入口以及物业配套用房在 西华林街上,延续星合控股“酒店式住宅”基因,物业配套用房包含 泳池会所,风雨连廊等。

B1#洋房南立面,层高3.2米。

户型一梯两户设计

建面 约230㎡户型,4房3卫,南向总面宽达到了17.3米,中西双厨,豪华主卧套。
7.35米的南向宽厅(客厅+茶室厅),豪华双人主卧套面宽接近6米,卫生间全明,绝对是总统级套房居住感受,南北通透,超高得房率。

装标方面,地块要求,全装修住宅,装修标准 不低于5000元/平。

3
双湖核心,配套优越
苏州正宗低密富人区
星合荣域花园西项目,即苏园土挂(2024)03号地块。
咨询热线:18662309054
是2024年9月土拍中,星合控股以总价51.98亿竞得, 成交楼面价楼面价58000元/㎡,与建屋强强联合开发。

星合荣域西地块位于双湖正核, 位于东延路南、西华林街东,是园区双湖最“正统”的富人聚集地。
地块南侧是绿地+低矮建筑,视线无遮挡,正面独墅湖一线湖景!西侧隔湖与五星级金鸡湖大酒店相望,真正的闹中取静,静谧的城市半岛!是苏州公认的低密豪宅区!

配套方面,地块距离在建地铁8号线东延路站,直线距离1km,正对独墅湖隧道;最近的大型商场邻瑞广场直线1.4km;紧邻高教区,苏州大学独墅湖校区、西交利物浦大学等大学林立。 综合来看,这宗地块的整体质量,可谓近几年来园区较高的一宗。
项目预计5月份展厅公开,喜欢的提前关注起来。
