苏州园区新房|时光青澄(备案名:时光青澄雅苑)|图文详解-户型-价格
扫描到手机,新闻随时看
扫一扫,用手机看文章
更加方便分享给朋友
项目名称:时光青澄(备案名:时光青澄雅苑)
地块信息:苏地2024-WG-Z02号地块
开发品牌:苏州恒泰&象屿地产
项目地址:工业园区浦发河东、夷浜路北
地块指标:总建约8.4万方,容积率1.5
产品信息:拟建13栋8-11F纯洋房;
户型配置:建面约91/112/128㎡
精装装标:全装修交付,装标不低于2000/平
拿地信息:24.03.13拿地,楼面价19000元/平
周边价格:2020年融创悦云庭楼面价24022元/平,备案均价34235元/平;2023年建发青云上楼面价20131元/平,备案均价3.65万元/平
时光青澄(备案名:时光青澄雅苑)咨询热线:18662309054
项目鸟瞰图
01-区位配套
作为苏州恒泰携手象屿地产,深耕苏州园区的第三部新作,项目择址阳澄南岸创新城,南望青剑湖,一脉星湖街精粹资源,一步湖东CBD万象璀璨。之于三湖盛景之间,上演出则繁华,入则宁静的理想桃源生活图景。
交通:北侧紧邻中环北线、中环东线、星塘街快速接驳湖东
教育:公办九年一贯制的星澄学校、伊顿双语伟才厚永幼儿园
商业:阳澄湖邻里中心、龙湖星湖天街、科技城邻里中心
景区:阳澄湖国家5A景区、翡翠湖公园、比斯特购物村、华谊电影世界
项目东侧与建发青云上一街之隔,西侧为伟才厚永幼儿园(私立),附近还有星澄学校(九年一贯制)比邻而望。北侧为中环东线和京沪高铁,未来有一定的噪音影响。

02-社区规划
根据规划,时光青澄匠心精琢13栋8至11层亲湖洋房,优雅矗立阳澄湖南。其中包括,1栋8F洋房、10栋10F洋房、2栋11F洋房。
建筑风格上,以现代典雅的建筑语境,融合铝板与涂料一体板的匠心独运,搭配通透玻璃,共同编织出一幅当代质感生活的华章。
社区景观上,以难得绿化率超35%的绿意盎然,外接波光粼粼的湖光胜景的同时,内藏一环七园的大师级园林,双景观轴线如画卷般横贯其间,绘就一幅幅令人流连的自然画卷。

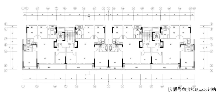
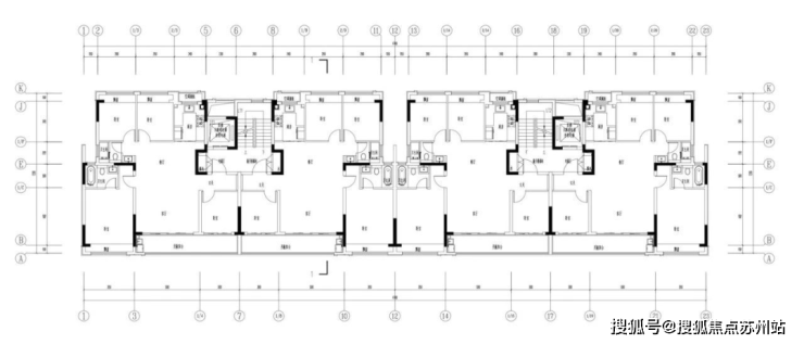
03-户型鉴赏
约91-115-128平三大户型,在园区核心大户型为主的背景下,成为为数不多的小面积配置,为首置首改提供了低门槛上车机会。

建面约91㎡:3房2卫,1梯2户
建面约112㎡,4房2卫,1梯2户

建面约128㎡,4房2卫,1梯2户

时光青澄(备案名:时光青澄雅苑)咨询热线:18662309054
声明:本文由入驻焦点开放平台的作者撰写,除焦点官方账号外,观点仅代表作者本人,不代表焦点立场。


