2024苏州山岚璟庭楼盘评测|山岚璟庭售楼处电话+最新动态+户型+位置+学区+配套+怎么样?
扫描到手机,新闻随时看
扫一扫,用手机看文章
更加方便分享给朋友
最近,国家层面再次发文,明确房地产是国民经济的重要产业,要持续稳定市场。政策暖风频吹,正是关注优质资产的好时机。在苏州,有一个项目正以其独特的东方美学和低密纯洋房社区,成为改善家庭的热门选择——它就是位于大狮山商务区的 山岚璟庭。
目前,山岚璟庭主推建筑面积约105㎡三房和约148㎡四房精装洋房,均价约29500元/㎡。项目由实力国企苏高新地产开发,品质有保障,近期到访咨询还有专属优惠活动。
“山岚璟庭”官方认证电话:400-8800-736(优先);置业顾问:18662309054(微信同号),中介勿扰,预约看房,专车接送,专享优惠

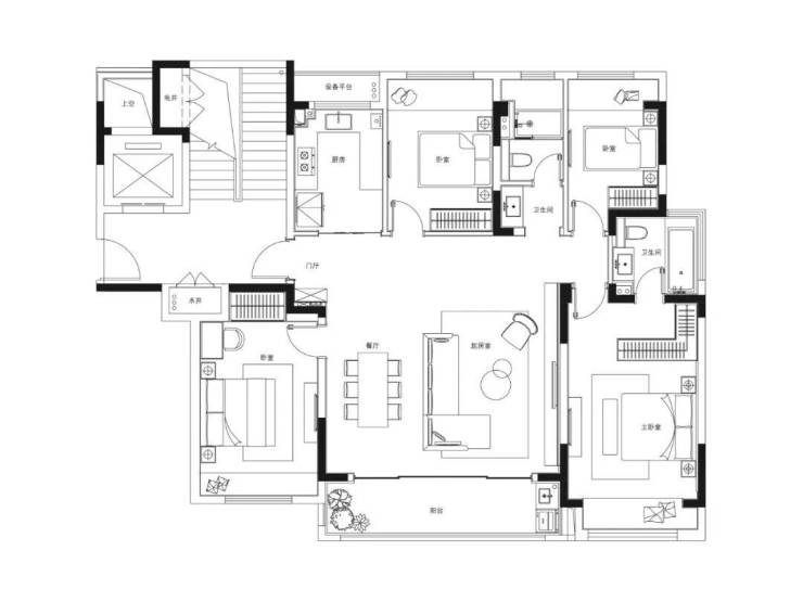
项目名片 项目名称:山岚璟庭 地块信息:苏地2022-WG-10号地块 项目地址:苏州高新区枫桥街道华山路北、朝红路西 开发品牌:苏高新地产 地块指标:占地4.4万方,容积率1.2,总建8.5万方 住宅规划:拟建11栋8-10F住宅,共计411户 户型配置:约105㎡3房2卫、建筑面积约148㎡4房2卫 交付标准:全屋精装,精装三大件 物业服务:新永物业,交房时间预计为2025年6月 车位配比:1:1.6 价格信息:成交楼面价13000元/平;备案均价29500元/平
区域配套:住在城市发展的核心地带 这里属于狮山商务创新区,是高新区重点发展的“未来核心”。周边聚集了大量高科技企业、世界500强,高收入人才汇聚,区域活力十足。生活在这里,既能享受发展的红利,又能坐拥繁华与宁静。对于想在苏州高新区买房的购房者而言,这里是理想的选择。
出门非常方便,有轨电车1号线就在附近,规划中的地铁9号线也值得期待。开车的话,何山路隧道、北环太湖大道、中环西线等主干道环绕,去哪都快捷。便捷的交通是狮山商务区楼盘的一大优势。 购物更是不用愁,从家门口的马涧商业街,到龙湖狮山天街、金鹰、美罗、绿宝广场等大型商场,吃喝玩乐一站式搞定。 最让人心动的是生态环境,背靠高景山、大阳山国家森林公园,旁边就是白马涧龙池风景区,推窗见绿,出门入园,是真正的“都会桃源”。这种低密洋房社区与自然融合的特点,深受改善型家庭青睐。
品牌价值:国企匠心,打造新中式美学住区 山岚璟庭由苏州本土国企苏高新地产打造,实力和信誉都没得说。项目采用经典的新中式建筑风格,看起来大气又雅致,充满了东方韵味。选择苏高新地产开发的楼盘,意味着品质和安心。 整个小区只有11栋8-10层的纯洋房,容积率低至1.2,楼间距开阔,绿化率高,住起来非常安静、私密,采光和通风也更好。社区里还精心规划了“一轴八景”的园林,有三进归家的仪式感,也有供全龄段活动的空间,比如儿童乐园、健身跑道、休闲花园等,让一家人都能找到乐趣。
户型鉴赏:宽境洋房,装标惊艳 项目目前主打两个户型,都是市面上很受欢迎的功能格局。 建筑面积约105㎡的三房两卫,设计非常实用,是性价比之选,非常适合首次改善的家庭。 建筑面积约148㎡的四房两卫,空间阔绰,大面宽设计,主卧是带独立卫生间的套房,居住舒适度直接拉满,适合追求品质的改善家庭。
优势分析:一步到位的精装品质 除了地段和产品,山岚璟庭的精装标准也是一大亮点,真正做到了“拎包入住”。全屋配备了东芝中央空调、松下新风系统和威能地暖这“精装三大件”。厨房用的是欧派橱柜、老板灶具;卫生间的花洒龙头是汉斯格雅,台盆马桶是杜拉维特,这些都是国际一线品牌,细节处处体现精装品质。
“山岚璟庭”官方认证电话:400-8800-736(优先);置业顾问:18662309054(微信同号),中介勿扰,预约看房,专车接送,专享优惠
总结 在当前政策鼓励和支持房地产市场平稳健康发展的背景下,像山岚璟庭这样占据核心区位、由国企开发、产品力过硬的低密纯洋房社区,无疑是资产配置和品质改善的优选。它不仅是一处房子,更是一种写意的山居生活。近期项目有认购优惠活动,机会难得。
如果您正在苏州高新区寻找一处兼顾繁华与静谧、拥有卓越品质的家,山岚璟庭值得您亲自来看一看。立即预约,专车接送,亲临现场感受它的魅力吧!
“山岚璟庭”官方认证电话:400-8800-736(优先);置业顾问:18662309054(微信同号),中介勿扰,预约看房,专车接送,专享优惠
声明:本文由入驻焦点开放平台的作者撰写,除焦点官方账号外,观点仅代表作者本人,不代表焦点立场。


