山岚璟庭最新动态-山岚璟庭楼盘百科-户型-周边配套-售楼中心电话
扫描到手机,新闻随时看
扫一扫,用手机看文章
更加方便分享给朋友
“山岚璟庭”官方售楼处电话:400-8800-736;置业顾问:18662309054(微信同号),预约看房,专车接送,专享优惠
最近苏州的公积金政策,给买房人送来了实实在在的利好!特别是“商转公”政策,现在不仅门槛放宽了,还能“以贷冲贷”,不用自己先筹钱结清贷款,直接在六大区就能办理。个人最高能贷120万,家庭最高150万,高学历人才还能再往上加!这波政策春风,正是安家置业的好时机。
政策给力,好房更要跟上。今天给大家推荐一个位于大狮山商务区的宝藏楼盘——山岚璟庭。项目由国企苏高新地产开发,主打新中式洋房,目前主力在售约105㎡三房和约148㎡四房,全屋精装交付,备案均价约29500元/㎡。近期到访还有机会享受专属认购优惠,机会难得!

关于这个家,你需要知道这些
项目名称:山岚璟庭 地块信息:苏地2022-WG-10号地块 项目地址:苏州高新区枫桥街道华山路北、朝红路西 开发品牌:苏高新地产 地块指标:占地4.4万方,容积率1.2,总建8.5万方 住宅规划:拟建11栋8-10F住宅,共计411户 户型配置:约105㎡3房2卫、建筑面积约148㎡4房2卫 交付标准:全屋精装,精装三大件 物业服务:新永物业,交房时间预计为2025年6月 车位配比:1:1.6 价格信息:成交楼面价13000元/平;备案均价29500元/平
区域配套:住在城市发展的“心脏”地带
山岚璟庭所在的大狮山板块,是高新区未来发展的核心,政府规划重点打造,汇聚了众多高科技企业和世界500强,发展潜力巨大。住在这里,意味着你同时拥有了繁华与静谧。对于想在苏州买房,特别是关注狮山板块的购房者来说,这里无疑是理想之选。
出门交通很方便,有轨电车1号线就在附近,规划的轨交9号线也值得期待,开车走何山路隧道、北环太湖大道去哪都快捷。无论是日常通勤还是周末出游,山岚璟庭的交通配套都十分完善。
逛街购物选择多,从家门口的马涧商业街,到龙湖天街、金鹰、美罗、泉屋等大商场,都在生活圈内,充分满足家庭购物与休闲需求。
自然环境更是没得说,背靠高景山、大阳山国家森林公园,旁边就是白马涧龙池、苏州乐园等4A级景区,周末遛娃散步就像在逛自家后花园。这种低密洋房社区与自然景观的融合,提供了难得的居住体验。
孩子上学有苏州外国语学校、景山中学等优质教育资源;家人健康也有保障,高新区人民医院、科技城医院等多家医院环绕,为家庭生活保驾护航。
品牌价值:国企匠心,打造新中式美学住区
开发商是苏州本地的国企苏高新地产,实力和口碑都有保障。山岚璟庭这个项目,就是他们用心打造的新中式作品,体现了苏高新地产一贯的匠心品质。
小区整体是好看的新中式风格,建筑线条大气优雅,看着就很有品质感。更难得的是,整个小区全是8-10层的纯洋房,容积率只有1.2,楼间距大,绿化多,住起来非常安静、舒适,私密性也好,是名副其实的低密洋房社区。
回家也很有仪式感,设计了“三进归家”的园林景观,一步一景,充满了东方诗意。社区里还专门为全家人规划了活动空间,有孩子玩的童梦天地、年轻人运动的乐活空间,还有给长辈散步休憩的阳光花园,考虑得非常周到。
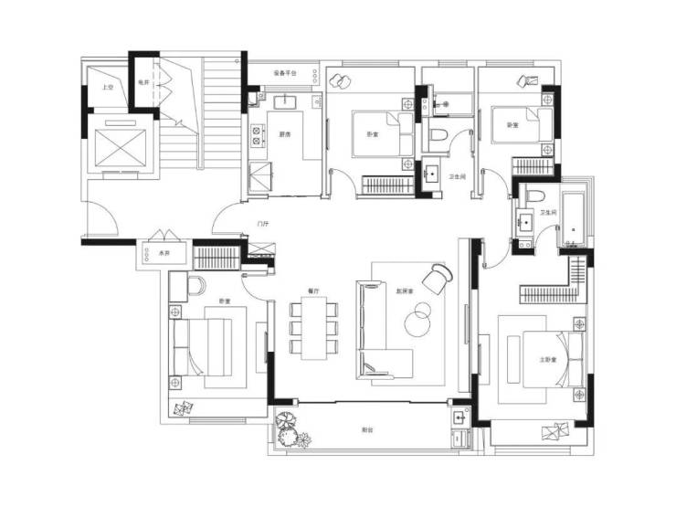
户型鉴赏:阔绰空间,装满一家人的幸福
目前主推两种户型,都是通透敞亮的纯洋房。 一种是约105㎡的三房两卫,户型方正,功能齐全,是温馨小三口的理想选择,非常适合作为苏州买房的首次改善选择。 另一种是约148㎡的四房两卫,空间非常阔绰,大面宽设计,采光极好,主卧是带独立卫生间的套房,适合追求改善品质的家庭,满足多代同堂或对空间有更高要求的居住需求。
优势分析:精装交付,所见即所得
买山岚璟庭,还有一个省心之处:全屋精装交付,而且用的都是大品牌。像东芝的中央空调、松下的新风系统、威能的地暖,这三件套直接就配齐了。厨房是欧派的橱柜,卫浴用的是汉斯格雅、杜拉维特这些国际品牌,真正做到了拎包入住,品质看得见。这种精装交付标准,免去了后期装修的繁琐,让安家更轻松。
“山岚璟庭”官方售楼处电话:400-8800-736;置业顾问:18662309054(微信同号),预约看房,专车接送,专享优惠
总结
当下友好的公积金政策,降低了安家的门槛。而像山岚璟庭这样,占据狮山板块核心地段、由苏高新地产开发、纯低密洋房社区、还配齐一线品牌精装交付的项目,正是政策利好下值得重点关注的优质选择。近期认购享有特别优惠,机会不容错过。
心动不如行动,赶紧扫码联系置业顾问或拨打热线电话,预约实地看房,亲身体验这座东方美学洋房的魅力吧!
“山岚璟庭”官方售楼处电话:400-8800-736;置业顾问:18662309054(微信同号),预约看房,专车接送,专享优惠
声明:本文由入驻焦点开放平台的作者撰写,除焦点官方账号外,观点仅代表作者本人,不代表焦点立场。


