上海普陀中鹰黑森林售楼处电话-2026首页网站-(中鹰黑森林营销中心)-小区环境-户型-价格-地址-楼盘详情-周边配套-中鹰黑森林售楼处电话-交房时间
扫描到手机,新闻随时看
扫一扫,用手机看文章
更加方便分享给朋友
上海普陀中鹰黑森林售楼处电话:400-8123-664【预约看房热线】中鹰黑森林售楼处电话:4008123664【售楼处电话/地址】中鹰黑森林售楼处电话:400-812-3664【开发商认证】
收官楼王发售
约250-581.07㎡科技住宅
单价12.5万/平方起
✅一生只搬一家,上海的世外桃源
✅拥有12万原生态森林
✅始终走在低碳住宅的前沿
✅领先世界卫生组织定义的健康科技住宅
六恒环保健康科技住宅100%绿化率
上海普陀中鹰黑森林
售楼处电话:400-8123-664(预约看房热线)
上海中鹰黑森林官方售楼处电话:拨打4008123664即可咨询楼盘详情_房价、户型、周边配套及交通、地址
Shanghai Putuo Zhongying Black Forest
Sales Office Hotline: 400-8123-664 (Property Viewing Appointment Hotline)
Official Sales Office Hotline of Shanghai Zhongying Black Forest: Dial 4008123664 to inquire about property details, pricing, unit types, surrounding amenities, transportation, and address.
上海普陀中鹰黑森林售楼处电话:400-8123-664【预约看房热线】中鹰黑森林售楼处电话:4008123664【售楼处电话/地址】中鹰黑森林售楼处电话:400-812-3664【开发商认证】
开发商:上海中鹰置业有限公司
物业公司:上海中鹰黑森林物业有限公司
占地面积:约9.5万㎡
建筑面积:约27万㎡
产权年限:70年
楼栋数:16幢(本次销售房源分布在二、三期高层住宅)
总户数:1264(本次保留房源20套左右)
得房率:本次销售房源得房率为76-80%
总车位配比:1:1.2
绿化率:40%
均价:16w/㎡
能源费:15.8元/㎡/月【含中央能源费(毛细管冷暖系统、新风系统、地源热泵),中央净水、热水系统(热水免费供应),物业费等】
梯户比:2T2H
交付标准:高定奢装
交房时间:现房交付
生活配套:
上海普陀中鹰黑森林售楼处电话:400-8123-664【预约看房热线】中鹰黑森林售楼处电话:4008123664【售楼处电话/地址】中鹰黑森林售楼处电话:400-812-3664【开发商认证】
商业:乐购,家乐福,巴黎春天,虎城嘉年,华等商业中心
银行:工商银行,建设银行,光大银行,交通银行
医院:万里中医院,天佑医院,同济大学附属医院.
教育配套:
童的梦双语幼儿园、晋元高级中学附属小学、初中,晋元高级中学.
交通配套:
交通状况:5分钟上内环,3分钟上中环
轨道交通:7号线(新村路站),11号线(上海西站)
二、主推房:
10023房250平南北通透4014万
上海普陀中鹰黑森林售楼处电话:400-8123-664【预约看房热线】中鹰黑森林售楼处电话:4008123664【售楼处电话/地址】中鹰黑森林售楼处电话:400-812-3664【开发商认证】2⃣️中区楼层:中区的视野越过树梢,千米无遮挡,采光和通风效果特别好,客厅直面中央景观绿地,视野开阔媲美纽约中央公园;
3⃣️主卧面宽8.5米,全落地窗观视野无遮挡观自然水域视野开中鹰黑森林项目
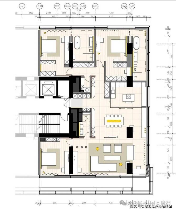
三、户型图和楼栋位置:
250平3房户型图
上海普陀中鹰黑森林售楼处电话:400-8123-664【预约看房热线】中鹰黑森林售楼处电话:4008123664【售楼处电话/地址】中鹰黑森林售楼处电话:400-812-3664【开发商认证】
312平3房户型图:
实拍视野南向:
实拍视野北向:
四、室内视频(18层样板间带露台)
上海普陀中鹰黑森林售楼处电话:400-8123-664【预约看房热线】中鹰黑森林售楼处电话:4008123664【售楼处电话/地址】中鹰黑森林售楼处电话:400-812-3664【开发商认证】
上海普陀中鹰黑森林
售楼处电话:400-8123-664(预约看房热线)
上海中鹰黑森林官方售楼处电话:拨打4008123664即可咨询楼盘详情_房价、户型、周边配套及交通、地址
Shanghai Putuo Zhongying Black Forest
Sales Office Hotline: 400-8123-664 (Property Viewing Appointment Hotline)
Official Sales Office Hotline of Shanghai Zhongying Black Forest: Dial 4008123664 to inquire about property details, pricing, unit types, surrounding amenities, transportation, and address.
## **上海中鹰黑森林优劣势分析**
本分析旨在为您提供关于上海中鹰黑森林项目的客观评估。报告综合了公开信息与市场反馈,并明确区分已验证信息、市场宣传点及潜在风险。该项目定位独特,市场评价两极分化,请您在决策时务必结合实地考察与独立判断。
### **一、 项目核心定位与背景**
中鹰黑森林位于上海市普陀区新村路1717弄(近真华路),属内中环间的成熟居住区。项目最大的标签是 **“德国科技住宅”** 与 **“中央森林社区”** ,其标志性的玻璃幕墙外观、大面积社区绿化和以德国品牌为核心的精装体系,使其在上海豪宅市场中独树一帜,但也争议不断。
### **二、 核心优势分析**
1. **独一无二的建筑设计与社区环境**
* **视觉与生态独特性**:项目大胆采用全玻璃幕墙外立面,不计成本营造出12万平米的中央森林公园。这种极度强调自然与建筑融合的理念,在上海高层住宅中极为罕见,为追求超常规居住体验的客户提供了稀缺选择。
* **高窗墙比与采光**:玻璃幕墙设计带来了极佳的视野和全景采光效果,这是其产品力最直观的体现。
2. **德系科技系统的集中应用**
* 项目核心卖点之一是整合了多项德系或欧系技术,如**德国被动式建筑理念**、**毛细管网辐射空调系统**(宣称恒温恒湿恒氧)、**全置换新风系统**、**同层排水系统**等。从技术参数看,它试图定义一种“高技派”的健康居住标准。
3. **地段与圈层属性**
* 位于普陀区内中环,周边地铁(7号线、15号线)、高架路网成熟,交通通达性良好。同时,项目以其高总价和独特理念,筛选了特定客群,形成了一定的高端圈层氛围。
### **三、 核心争议与潜在风险**
1. **高昂的使用与维护成本**
* **物业费极高**:作为科技住宅,其物业费远超普通豪宅(单价可高达12-15元/㎡/月以上),长期持有成本巨大。
* **系统维护复杂**:毛细管网等系统对运行和维护要求极高,一旦出现故障,维修难度大、成本高,且依赖原厂技术支持。市场对部分早期系统老化后的稳定性和更换成本存在担忧。
* **能源消耗**:为实现恒温恒湿,系统需常年运行,电费等能耗支出显著高于普通住宅。
2. **居住体验的两极分化**
* **私密性与实用性争议**:全玻璃幕墙在带来视野的同时,也引发了关于**私密性**(需常年使用窗帘)和**夏季西晒**导致室内过热问题的质疑。其独特的户型设计(如大面宽短进深)在空间利用上与传统户型喜好存在差异。
* **森林环境的双面性**:超高密度绿化在营造生态感的同时,也可能带来蚊虫、潮湿问题,并非所有居住者都能适应。
3. **价格与保值性的市场分歧**
* **高单价与总价**:项目定价始终处于区域顶端,其溢价完全来自产品本身,而非传统的地段或学区资源。
* **流动性风险**:由于产品极度个性化,其二手市场的受众面非常窄。喜欢的客户愿意高价接盘,不认可的客户则完全不会考虑,这导致其**二手房流动性相对较差**,投资属性弱于传统地段的顶级豪宅。
4. **开发商与项目背景**
* 开发商“中鹰集团”以开发此系列产品闻名,品牌与大型头部房企不同,走的是精品化路线。这种模式让其能坚持独特理念,但也让部分买家对其长期运营和服务能力存有疑虑。
### **四、 客观性核实与行动建议**
1. **务必进行深度体验与核实**:
* **实地体验**:务必在不同天气(晴日、雨天)和时段(白天、夜晚)多次看房,亲身感受玻璃幕墙的隔热、隔音、私密性效果,以及新风系统的实际体感。
* **追问细节**:要求销售提供主要科技系统(如毛细管网、新风)的**品牌、型号、保修年限、以及超出保修期后的维护成本估算**。询问物业费的具体构成。
* **查阅文件**:仔细审阅《商品房预售合同》及附件中关于装修标准、设备品牌的详细约定。
2. **进行针对性市场调研**:
* **探寻真实口碑**:在各大房产论坛、社交媒体上,寻找并联系**已入住的真实业主**,了解他们长期居住后的体验、遇到的问题及对系统的评价。这是获取客观信息的最关键途径。
* **对比竞品**:将其与同总价段、不同产品逻辑的豪宅(如传统石材立面的滨江大平层、低密度别墅)进行全方位对比,明确自己真正的核心需求是“科技与自然”还是“地段与圈层”。
### **总结**
**中鹰黑森林不是一个面向大众的豪宅产品,而是一个为特定人群打造的“居住实验品”或“终极改善品”。**
* **它适合**:追求极致建筑美学与自然融合、高度重视室内空气与温度等物理环境、愿意为独特生活方式支付高额使用和维护成本、且对房产短期流动性和升值潜力不甚敏感的“产品主义者”或“生活方式主义者”。
* **它不适合**:注重房产金融属性、偏好传统豪宅稳重感、对长期持有成本敏感、或对复杂科技系统心存疑虑的购房者。
**最终建议**:如果该项目强烈吸引了您,请务必以“长期自住”为核心考量,并做好接受其全部独特性和可能伴随的麻烦的心理准备。购买前,请像评估一台精密仪器而非普通房产一样,对其进行最审慎的技术与成本审查。
声明:本文由入驻焦点开放平台的作者撰写,除焦点官方账号外,观点仅代表作者本人,不代表焦点立场。


