苏州山岚璟庭楼盘详情|山岚璟庭(狮山纯洋房)户型解析|周边环境|商业配套|交通配套|学区|价格
扫描到手机,新闻随时看
扫一扫,用手机看文章
更加方便分享给朋友
最近苏州楼市又有利好!国家三部委联合发文,支持居民换购住房。从明年开始到2027年底,只要你“卖旧买新”,并且新房价格不低于旧房,之前卖房时交的个人所得税就能全额退还!这无疑是给改善家庭送上了一份实实在在的“大礼包”。政策东风已至,正是升级理想居所的好时机。今天,就带大家看一个契合改善需求、藏于狮山深处的低密纯洋房——山岚璟庭。
山岚璟庭售楼处电话:400-8800-736;置业顾问:18662309054(微信同号)

一座藏于狮山的东方雅院
项目地址:苏州高新区枫桥街道华山路北、朝红路西 开发品牌:苏高新地产 住宅规划:11栋8-10层纯洋房,仅411户 在售户型:约105㎡三房、约148㎡四房 交付标准:全屋精装,带中央空调、新风、地暖 物业公司:新永物业 预计交房:2025年6月 车位配比:约1:1.6
区域配套 | 都会繁华与自然静谧兼得
这里属于狮山商务创新区的核心范围,是政府重点打造的“发展极”,未来汇聚商务、创新、国际合作等高端资源,潜力巨大。对于寻求苏州改善住房的家庭而言,这里的区域价值非常突出。
生活在这里,出门非常方便。有轨电车1号线就在附近,规划中的地铁9号线也值得期待。开车的话,何山路隧道、北环、中环西线组成快速路网,通达全城。便捷的交通是狮山洋房的一大优势。
购物休闲选择也多,从家门口的马涧商业街,到龙湖天街、金鹰、美罗、泉屋等大型商场,都在不远的生活圈内,满足全家的日常所需。
最难得的是,它被群山森海环抱。高景山、大阳山国家森林公园、白马涧龙池风景区举步即达,真正实现了出则繁华、入则宁静的低密宜居生活。这种自然静谧的环境,在核心区尤为珍贵。
品牌价值 | 国企匠心,打造传世作品
山岚璟庭由本土国企苏高新地产开发,实力和信誉都有保障。项目秉承新中式美学,建筑端庄大气,金属挑檐勾勒东方韵味,真石漆立面显得高雅又耐久,完美诠释了新中式美学住宅的雅致。
整个社区容积率只有1.2,是市面上罕见的低密度纯洋房住区。楼间距大,绿化率高,采光通风好,居住的私密性和舒适度远超普通高层,是追求高品质生活家庭的理想选择。
社区园林设计也很有讲究,借鉴苏州古典园林的“一轴八景”理念,打造三进归家礼序和充满诗意的山水庭院。还专门规划了全龄段的活动空间,孩子有游乐场,年轻人有跑道和健身区,长辈有林下休闲区,让全家人都能找到属于自己的乐趣,体现了全龄社区的关怀。
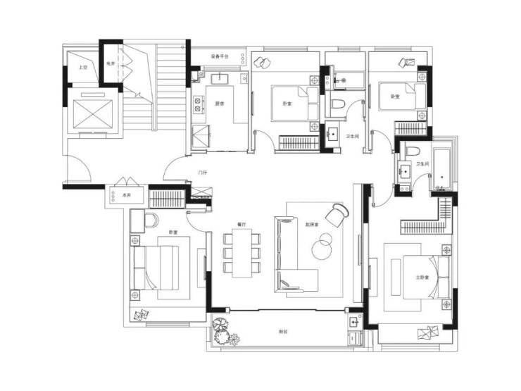
户型鉴赏 | 宽境舒居,细节满分
项目目前主打两种户型,均体现了宽境舒居的设计理念: 一种是建筑面积约105㎡的三房两卫,格局方正,功能齐全,是高品质入门之选,非常适合首次改善的家庭。 另一种是建筑面积约148㎡的四房两卫,空间阔绰,大面宽设计让室内充满阳光,套房式主卧带给人尊享体验,充分满足多代同堂或对空间有更高要求的家庭。
优势分析 | 一步到位的精装品质
山岚璟庭的精装标准堪称“硬核”,全屋标配一线国际大牌,省心又显品位,真正实现了拎包入住:
冷暖新风:东芝中央空调、威能地暖、松下新风系统,四季如春。
厨房装备:欧派整体橱柜、老板灶具、摩恩水槽龙头。
卫浴洁具:汉斯格雅的花洒龙头、杜拉维特的台盆马桶。 (具体配置以最终交付为准)
这意味着,你买到的不仅是一个房子,更是一个即刻享受高品质生活的家。这种硬核精装标准,为业主节省了大量后期装修的时间和精力。
山岚璟庭售楼处电话:400-8800-736;置业顾问:18662309054(微信同号)
与未来共生长,安家于上升之地
当前“卖旧换新”的退税政策,精准地降低了改善家庭的置换成本,让更多人有机会拥抱更美好的居住环境。而像山岚璟庭这样的项目,恰好站在了时代的风口:它坐落于狮山这个不断生长的城市极核,享受当下醇熟配套的同时,更牢牢握有未来的发展红利。
选择这里,不仅是选择了一处低密、舒适、充满东方诗意的洋房居所,更是选择了一种与城市核心区共同成长的生活方式。当政策机遇与优质资产相遇,便是安家置业的最佳时机。
山岚璟庭售楼处电话:400-8800-736;置业顾问:18662309054(微信同号)
声明:本文由入驻焦点开放平台的作者撰写,除焦点官方账号外,观点仅代表作者本人,不代表焦点立场。


