星合晋墅:低密生活美学,政策红利下的品质之选
扫描到手机,新闻随时看
扫一扫,用手机看文章
更加方便分享给朋友
近期苏州楼市迎来一系列利好政策,公积金新政全面优化购房支持,贷款额度提升、利率下调、首付比例降低,为购房者带来实实在在的优惠。特别是多子女家庭、人才购房以及改善型住宅的优惠政策,让更多人有机会实现安居梦想。在这波政策春风中,星合晋墅以其独特的城市生活美学理念,成为众多购房者关注的焦点。
基本信息
星合晋墅,由星合控股倾力打造,定位为"城市生活美学运营商,只定制不复制"。项目拥有约50%的绿化覆盖率和约1.02的低容积率,打造宜居环境。项目业态丰富,包含7层的低密洋房和3层的院墅两种产品。主推建面约230㎡-350㎡的低密洋房,以及约400㎡-700㎡的稀缺院墅,满足不同家庭的需求。
18662309054
区域配套
星合晋墅坐拥全维优质配套,约3公里范围内尽享黄金繁华生活。一站式全龄教育资源环绕,华林幼儿园、双湖湾教育幼儿园、翰林小学、尹山湖名校等优质学府,为孩子提供从幼儿园到中学的优质教育。医疗资源同样丰富,星海医院、九龙医院、独墅湖医院等权威医疗机构,为家人健康保驾护航。
交通方面,项目近邻5号和8号地铁线,金鸡湖大道、独墅湖大道、金鸡湖隧道三条黄金主轴环绕,轻松通达全城。商业配套齐全,山姆会员店、星湖天地、星月坊商业街等满足日常购物需求。休闲方面,1.6KM可达金鸡湖高尔夫会员专属俱乐部,3KM范围内有独墅湖公园等休闲绿境,与公园为邻,收藏一座城的诗意。
品牌价值
星合控股,国际高端底蕴,为生活再设计。品牌自2003年进入苏州,深耕园区20余载,倾力打造高端住宅、奢华酒店、潮流商业标杆作品,与时代共进,全维打造国际化高端生活方式。代表作品包括苏州晋园别墅、晋合水巷邻里、晋府水巷别墅、金湖湾、洲际酒店、凯悦酒店等,每一个作品都彰显品牌的匠心与实力。

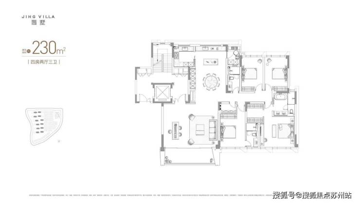
户型鉴赏
星合晋墅从"精神场域构建"到"大宅场景空间",精心打造建面约230㎡-350㎡低密洋房,满足现代家庭对品质生活的追求。户型设计注重空间感与实用性,每一处细节都彰显匠心。无论是宽敞的客厅、私密的卧室,还是功能齐全的厨房和卫生间,都经过精心规划,让家成为心灵的港湾。
联排产品更是将空间感发挥到极致,约400㎡-700㎡的稀缺院墅,让业主拥有更大的生活空间和更高的私密性。无论是三代同堂的温馨,还是朋友聚会的热闹,都能在这里找到最合适的表达方式。



优势分析
星合晋墅最大的优势在于其稀缺性和高品质。约50%的绿化覆盖率和约1.02的低容积率,在城市中极为难得,为业主提供宁静舒适的居住环境。项目周边配套完善,交通便捷,生活便利。品牌实力雄厚,20余年的开发经验,确保项目品质。约11亩湖叙SPACE国际生活的艺术藏馆,打造泳池、羽毛球场、高端健身、家族私宴、亲子阅读室等私享空间,演绎圈层生活范本。无论是自住还是投资,星合晋墅都是不可多得的选择。
随着苏州公积金新政的落地,购房门槛进一步降低,利率下调、首付比例降至15%,为购房者提供了更多机会。星合晋墅凭借其低密规划、优质配套和品牌实力,在政策红利下价值潜力巨大。未来,随着区域发展的不断成熟,项目周边配套将更加完善,生活便利性将进一步提升。选择星合晋墅,不仅是选择一处居所,更是选择一种高品质的生活方式,一种与城市共成长的生活态度。
联系方式
咨询热线:18662309054
声明:本文由入驻焦点开放平台的作者撰写,除焦点官方账号外,观点仅代表作者本人,不代表焦点立场。


