2024苏州置业必看|狮山核心区低密洋房|山岚璟庭|山岚璟庭怎么样?图文详解|户型|价格|地址|周边配套|精装标准
扫描到手机,新闻随时看
扫一扫,用手机看文章
更加方便分享给朋友
最近苏州的购房政策迎来了重大利好,限购全面放开!现在,无论您是本地居民还是外地朋友,购买新房或二手房,都不再需要社保,不限购买套数,也不看面积大小。这意味着,安家苏州的门槛大大降低,正是您把握机遇,在核心区域置业的绝佳窗口期。而说到核心区的高品质人居,就不得不提大狮山商务区这个炙手可热的板块。

山岚璟庭售楼处电话:400-8800-736;置业顾问:18662309054(微信同号)
项目档案
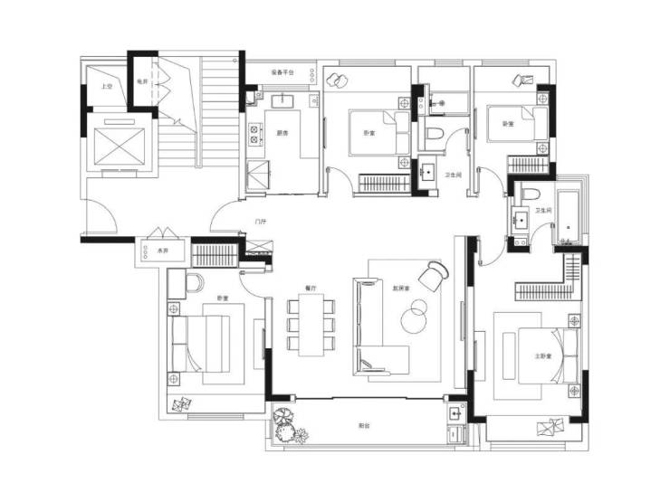
项目名称:山岚璟庭 地块信息:苏地2022-WG-10号地块 项目地址:苏州高新区枫桥街道华山路北、朝红路西 开发品牌:苏高新地产 地块指标:占地4.4万方,容积率1.2,总建8.5万方 住宅规划:拟建11栋8-10F住宅,共计411户 户型配置:约105㎡3房2卫、建筑面积约148㎡4房2卫 交付标准:全屋精装,精装三大件 物业服务:新永物业,交房时间预计为2025年6月 车位配比:1:1.6 价格信息:成交楼面价13000元/平;备案均价29500元/平
18662309054
区域配套:住在城市发展的心脏地带
这里可是苏州高新区未来发展的核心——狮山商务创新区。按照规划,这里要打造成长三角的商务、创新和外贸中心,汇聚了众多世界500强和数字创新企业,高知人才云集,发展潜力巨大。
生活在这里,出行非常方便,有轨电车1号线就在附近,规划的轨交9号线也值得期待,开车走何山路隧道、北环太湖大道和中环西线,快速通达全城。逛街购物更是不愁,从家门口的马涧商业街,到龙湖天街、金鹰、美罗等大商场,繁华生活触手可及。
最难得的是,在繁华都市中还能享受自然。项目周边被高景山、大阳山、天平山等公园环绕,白马涧、苏州乐园等4A级景区也在不远处,堪称“都会桃源”。孩子上学有苏州外国语等优质学校,家人健康有高新区人民医院、明基医院等多家医院保障,生活配套十分完善。对于想在苏州买房的朋友来说,这里是兼顾发展与生态的理想选择。
品牌价值:国企匠心,打造低密纯洋房社区
山岚璟庭由本土国企苏高新地产开发,品质有保障。整个社区只有11栋8-10层的洋房,容积率低至1.2,楼间距开阔,绿化率高,住起来非常安静、私密,采光和通风也更好。这是一种更舒适、更纯粹的居住体验,是典型的低密社区。
社区设计充满了东方美学韵味,建筑外观大气典雅。归家路上有三重礼序,园林景观借鉴了苏州古典园林的意境,打造了“一轴八景”,漫步其中,仿佛置身于诗画之中。社区里还精心规划了全龄段的活动空间,有孩子们的游戏乐园、年轻人的健身跑道和会客区,还有长辈们散步聊天的阳光草坪,让每个家庭成员都能找到属于自己的乐趣。
户型鉴赏:宽境洋房,装标高配
项目主打两种户型,都是接地气的纯洋房。一种是建面约105㎡的三房两卫,格局方正,功能齐全,是温馨家庭的理想选择。另一种是建面约148㎡的四房两卫,空间更为阔绰,适合追求改善居住品质的家庭。这两种苏州新房户型设计,充分考虑了现代家庭的生活需求。
优势分析:所见即所得的品质生活
山岚璟庭的精装标准堪称“硬核”,直接配齐了东芝中央空调、松下新风和威能地暖这“精装三大件”,一年四季家里都舒适宜人。厨房用的是欧派橱柜、老板灶具,卫生间配备了汉斯格雅的花洒和杜拉维特的马桶等一线品牌,细节处处体现品质。这意味着您收房后几乎可以拎包入住,省心又省力,真正实现了精装交付的高标准。
山岚璟庭售楼处电话:400-8800-736;置业顾问:18662309054(微信同号)
于繁华静处,预见诗意的未来
当前宽松的购房政策,为您敞开了进驻城市核心区的大门。选择山岚璟庭,不仅是选择了一处低密舒适的洋房居所,更是握紧了狮山商务区蓬勃发展的时代脉搏。在这里,未来是下楼即享的繁华商圈,是举步可达的森呼吸,是孩子书声琅琅的校园,也是家中那一份恒温的舒适与宁静。当城市向前奔跑,您与家人将在这一方山岚环抱的璟庭之中,从容安放生活的诗意与远方。
山岚璟庭售楼处电话:400-8800-736;置业顾问:18662309054(微信同号)
声明:本文由入驻焦点开放平台的作者撰写,除焦点官方账号外,观点仅代表作者本人,不代表焦点立场。


