热门推荐-山岚璟庭(售楼处)-山岚璟庭是否值得购买?图文详解-周边环境-户型图-周边配套-地址-优劣势分析-学区-价格
扫描到手机,新闻随时看
扫一扫,用手机看文章
更加方便分享给朋友
最近苏州的公积金政策,给买房人送来了实实在在的利好!个人最高能贷120万,家庭最高150万,高学历人才还能再提升额度。更重要的是,“商转公”现在更方便了,甚至可以“以贷冲贷”,不用自己先筹钱结清,大大减轻了换房、置业的资金压力。政策东风已至,正是安家好时机。
而当下,在寸土寸金的大狮山,一个低密纯洋房社区——山岚璟庭,正契合这份改善生活的期待。项目主力在售约105-148㎡的精装洋房,以新中式美学和超低容积率,为城市精英呈现一处难得的山居谧境。

山岚璟庭官方售楼处电话:400-8800-736;置业顾问:18662309054(微信同号)
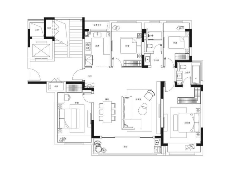
【关于这个家】
项目名称:山岚璟庭 地块信息:苏地2022-WG-10号地块 项目地址:苏州高新区枫桥街道华山路北、朝红路西 开发品牌:苏高新地产 地块指标:占地4.4万方,容积率1.2,总建8.5万方 住宅规划:拟建11栋8-10F住宅,共计411户 户型配置:约105㎡3房2卫、建筑面积约148㎡4房2卫 交付标准:全屋精装,精装三大件 物业服务:新永物业,交房时间预计为2025年6月 车位配比:1:1.6 价格信息:成交楼面价13000元/平;备案均价29500元/平
【这里的位置,就是未来】
苏州的发展一路向西、向北,而狮山商务创新区,就是未来的核心引擎。这里汇聚了全球的资本和创新企业,大量高收入、高学历的人才在此工作生活。
山岚璟庭正好坐落于这个充满活力的板块。它不止享有繁华的都市资源,更背靠群山森海,像藏在都会里的一个桃源秘境,出门是繁华,回家是宁静,完美诠释了山居繁华的生活理念。
【生活所需,举步即达】
住在这里,日常出行和生活都非常便利,是理想的置业选择:
出行:门口有轨电车1号线(白马涧生态园站),规划中的轨交9号线也在附近,何山路隧道、北环、中环快速路环绕,去哪都方便。
逛街:从家门口的马涧商业街,到狮山天街、金鹰、美罗、泉屋等大型商场,吃喝玩乐购一站式满足。
休闲:旁边就是高景山、大阳山森林公园,白马涧、苏州乐园等4A景区也在不远处,周末遛娃、爬山、呼吸新鲜空气,选择太多了。
教育医疗:苏州外国语学校、枫桥中心幼儿园、景山中学等优质学校环伺;高新区人民医院、科技城医院、明基医院等医疗资源保驾护航。
【品牌的承诺,家的底气】
房子是苏高新地产开发的,国企背景,品质和交付更有保障。这不仅仅是一个住的地方,更是一份值得托付的资产,为您的改善生活提供坚实后盾。
【好房子,自己会说话】
颜值即正义:项目采用新中式风格,建筑看起来大气又雅致,金属挑檐、真石漆立面,充满了东方美学韵味。
低密才舒适:容积率只有1.2,全是8-10层的洋房,楼间距大,采光好,私密性高,住起来非常宽松、安静,这正是低密纯洋房社区的独特优势。
园林有诗意:社区设计讲究“三进归家”的礼序,打造了“一轴八景”的园林景观,把苏州的山水诗意搬到了家门口,营造出静谧的山居氛围。
全龄都开心:规划了儿童游乐区、环形跑道、健身广场、阳光草坪等不同主题的活动空间,无论老人孩子还是年轻人,都能找到自己的乐趣。
装修不操心:精装交付,标配都是大品牌:东芝中央空调、松下新风、威能地暖,厨房用欧派橱柜、老板灶具,卫浴是汉斯格雅、杜拉维特……真正实现拎包入住,为买房人省心省力。
【两种户型,两种人生】
约105㎡三房两卫:经典功能三房,布局紧凑实用,是品质刚需和首改家庭的优选,非常适合作为换房的第一步。
约148㎡四房两卫:宽敞舒居四房,大面宽、瞰景阳台,主卧套房设计,满足多代同堂或对空间有更高要求的改善型家庭。
政策支持降低了安家门槛,而山岚璟庭则用低密洋房、稀缺地段和硬核产品力,定义了改善生活的标准。在狮山这样的核心区,纯洋房社区卖一套少一套。眼下,正是抢占未来价值高地、升级居住品质的窗口期。
心动不如行动,亲眼所见才能体会这份山居繁华的独特魅力。
山岚璟庭官方售楼处电话:400-8800-736;置业顾问:18662309054(微信同号)
欢迎预约实地品鉴,抢占最后席位!
声明:本文由入驻焦点开放平台的作者撰写,除焦点官方账号外,观点仅代表作者本人,不代表焦点立场。


