可能有一些人对星河湾比较陌生,这是一家以打造豪宅著称的广州开发商,在广州、北京、上海等地开发过不少豪宅,产品线走的是高端定位,密度较低、品质较高,口碑也还不错,不少项目曾是区域标杆。上海星河湾,最大亮点就是三…
最新消息!木渎豪宅纯新盘, 星瑞雅庭即将正式公开!
打造11栋小高层+高层
层高3.6米,166㎡起步
最大5房,7米主卧开间,南向双套房
小区内部大面积中央水景
“豪宅专家”星河湾首进苏州
又一个标杆级作品来了!
咨询热线:18662309054
项目位于吴中区木渎镇金长路北侧、金枫路西侧,占地面积42931.6㎡,容积率1.8。
全盘打造11栋14-21F住宅,小高层+高层,围合式布局,中央景观和水系非常丰富,包含一个 户外泳池和大片水体。
鸟瞰图:

总平面图:

10#南立面图,层高3米:

10#标准层平面图:2梯2户,层高3米

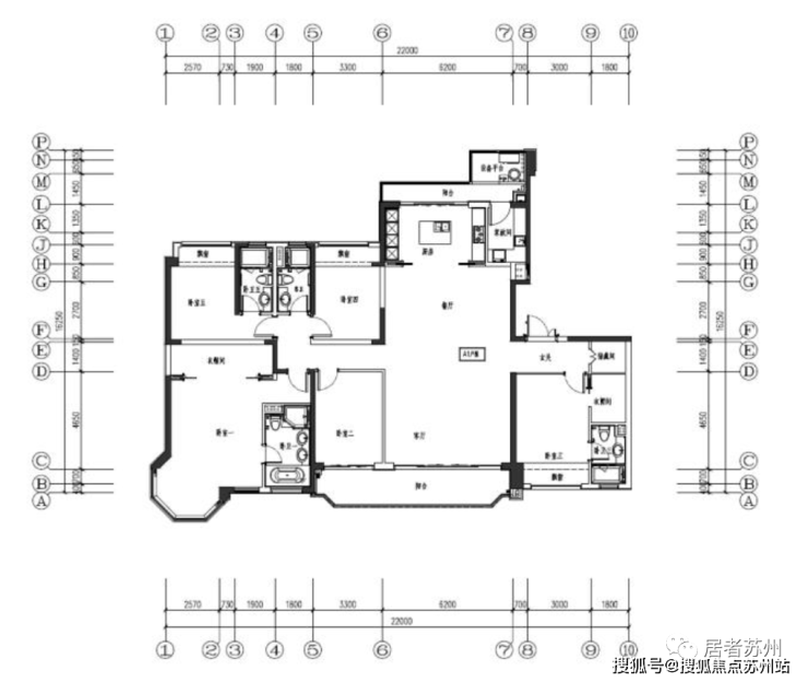
以10#为例, 具体来看A1户型
5房2厅4卫,2梯2户,南向面宽约22米
带独立家政间+南北双阳台+3套房
主卧开间约7米,带独立衣帽间和卫生间
全明卫设计,北向套房,尺度也很阔绰

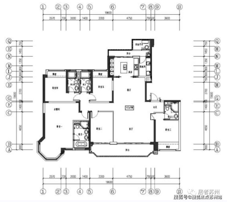
A2户型和A1差别不大
同样是5房2厅4卫,南向近20米面宽

A3户型4房2厅3卫
四开间朝南,南向面宽约17米
带独立家政间+南北双阳台
南向双套房,主卧开间约4.5米

A4户型与A3格局相似,4房2厅3卫
区别是少了一个家政间、
主卧内卫少了一个淋浴间
四开间朝南,南向面宽约16米
南北双阳台+南向双套房
主卧开间约4米

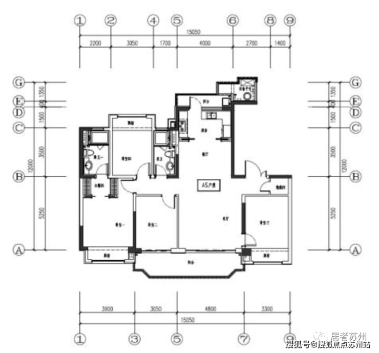
A5户型4房2厅2卫
四开间朝南,约15米南向面宽
主卧套房+南向三房

再来回顾一下拿地经过:
木渎51号地块,在2022年四批次土拍中,被苏州惠润置业以总价11.98亿拿下,成交楼面地价15500元/㎡。
咨询热线:18662309054
后来木渎集团与“豪宅专家”星河湾达成合作,这是 星河湾首进苏州,有望打造苏州豪宅首秀!
可能有一些人对星河湾比较陌生,这是一家以打造豪宅著称的广州开发商,在 广州、北京、上海等地开发过不少豪宅, 产品线走的是高端定位,密度较低、品质较高,口碑也还不错,不少项目曾是区域标杆。
比如 上海星河湾,最大亮点就是三期 水系覆盖占地近1/2,拥有长达1km的湖岸线,这2.3万㎡的宅间水系和3.1万㎡的人工湖,把地块分成1条带状岛链和8座点状岛屿,以品字形的建筑分布,形成“一岛一栋”的独特岛居生活方式。

还有 广州星河湾,甚至出现网签2亿的豪宅!这可能不只是广州最贵豪宅网签新纪录,而是全国最贵平层豪宅网签新纪录。
从一期自然村落式的排列、半围合式的空间布局、错落式的楼间关系,发展至七期的近百米超宽楼距,户户南北对流,充分体现了自由流动的群体组合的建筑美感,与万千风情热带园林相互衬托,构成建筑与环境的和谐统一。


星河湾在江苏已经有过首秀,为 2021年入市的江阴星河湾项目,208-389㎡的豪宅,3.4-3.6m层高,全屋选用 非洲柚木、黑胡桃木、花樟、紫丁香、柏妮丝灰等优质石材木材。


小区园林景观也是融入了东方美学,光是这几点就已经让人眼前一亮,居居找了几张实景图,可以感受一下~


可以看出来,星河湾在自家产品打造上,非常舍得花钱,这几年重点开发了4.0标准“星中式”,尤其是在水系园林打造上,一直是业内观摩学习典范。
屋内用的材料,基本都是顶尖标准,比如像紫檀、黑檀、劳伦白金石等一系列名贵石材,一走进去,就是金碧辉煌、满屋豪气。

这一次,星河湾与苏州木渎集团的合作,将成为在苏州的首秀,未来会在木渎留下什么样的豪宅产品,真的非常让人期待!
最后再来看一下地块周围环境,地块南侧靠近 轨交5号线,西侧是中环西线,出行较为方便。板块内天虹商场、山姆会员店(木渎店)、红星美凯龙等商业齐聚,休闲购物方便。
周边在售新房较多,仁恒溪棠洋房均价3.1万/㎡,此外还有璟翠雅园、大境风华等,均价在2.6万-2.8万/㎡左右,
项目楼面地价和仁恒溪棠一样,都是15500元/㎡,不过以小高层为主,你觉得未来价格会在多少?
咨询热线:18662309054