龙盛湾上(上海静安)首页网站-2025楼盘评测_龙盛湾上|最新价格|配套户型
扫描到手机,新闻随时看
扫一扫,用手机看文章
更加方便分享给朋友
上海静安龙盛湾上售楼处电话:400-8828-814✔✔【预约热线】龙盛湾上售楼处营销中心:400-8828-814龙盛湾上售楼处电话/地址☎:400-882-8814(开发商热线)如有问题欢迎来电咨询,专业一对一热情服务,让您用专业眼光去买房。静安苏河湾全新地标豪宅,建面约138-194-248㎡,均价13.46万/㎡,目前“样板间”已开放。
上海静安龙盛湾上售楼处电话☎:400-8828-814(售楼处预约看房热线)138㎡户型方正,在视觉上显得宽敞大气,功能分区合理,空间利用率高,三开间朝南,确保了室内充足的自然采光。主卧套房设计,全屋配置了充足的收纳空间,并通过设计做到了三个房间与两个卫生间的全明,为居住者提供了更为舒适的生活体验。
龙盛湾上售楼处电话:400-882-8814
上海静安龙盛湾上售楼处电话☎:400-8828-814(售楼处预约看房热线)

龙盛湾上售楼处电话:400-882-8814
上海静安龙盛湾上售楼处电话☎:400-8828-814(售楼处预约看房热线)
(项目实景图)
建面约194㎡3房2厅3卫
上海静安龙盛湾上售楼处电话☎:400-8828-814(售楼处预约看房热线)边套户型横厅设计,客厅约5.3米的面宽保证了空间的尺度感,客厅及南侧卧室的大面积落地窗,加上北面大面积飘窗,约270度的采光+视野,保证了室内充足的自然光线。两南一北的卧室布局,尽可能把南向尺度给到卧室,提高居住的舒适性。宽敞的步入式衣帽间,主卫双台盆和宽敞的淋浴区,每一个清晨都是感官的享受,每一个夜晚都是身心的彻底放松。上海静安龙盛湾上售楼处电话☎:400-8828-814(售楼处预约看房热线)
龙盛湾上售楼处电话:400-882-8814
上海静安龙盛湾上售楼处电话☎:400-8828-814(售楼处预约看房热线)
(项目实景图)
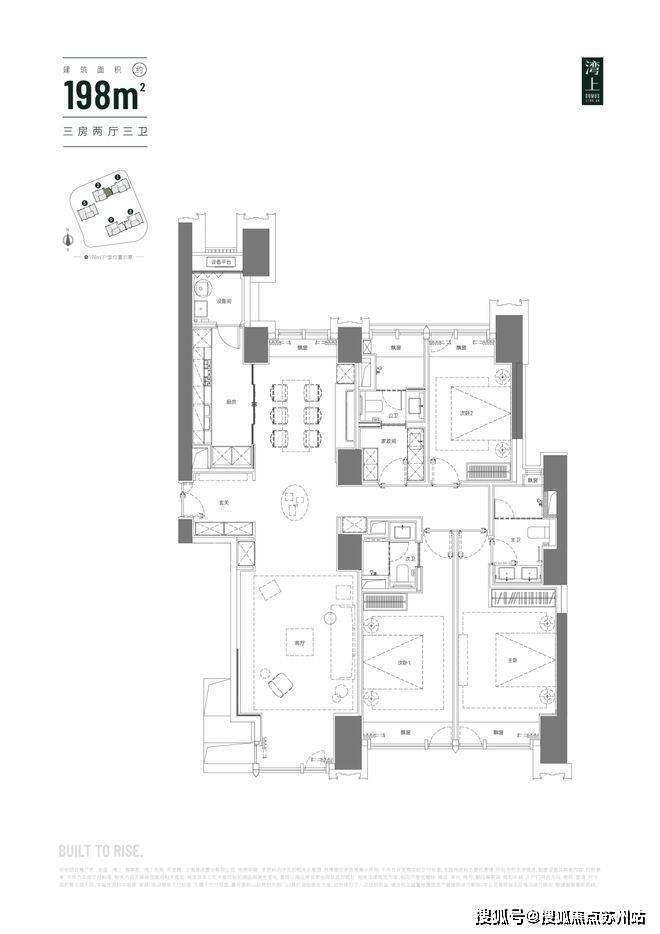
建面约198㎡3房2厅3卫
上海静安龙盛湾上售楼处电话☎:400-8828-814(售楼处预约看房热线)三开间朝南,标准动静分离户型,进门十字中轴,南北通透,客餐厅有足够长的纵深,极大提高了生活舒适感。主卧和次卧双套房设计,室内5飘窗1阳台,更增加了198户型的空间延展度。未来还可以根据家庭结构的变化,上海静安龙盛湾上售楼处电话☎:400-8828-814(售楼处预约看房热线)自行改造室内空间布局。
建面约248㎡4房2厅3卫
上海静安龙盛湾上售楼处电话☎:400-8828-814(售楼处预约看房热线)建面约248㎡4房2厅3卫更是别出心裁!是今年上海豪宅市场首次出现的定制户型,龙盛为业主定制了2+1+1房,3+1房,及纯4房三种自由交付选择,满足了现代家庭多元化的居住需求。
上海静安龙盛湾上售楼处电话☎:400-8828-814(售楼处预约看房热线)该户型将西厨、岛台、餐厅、客厅进行一体化打造,能够大大增强家庭成员之间的互动;西面大面积落地窗搭配北面大面积飘窗,实现270度的宽阔城市视野。
上海静安龙盛湾上售楼处电话☎:400-8828-814(售楼处预约看房热线)
上海静安龙盛湾上售楼处电话☎:400-8828-814(售楼处预约看房热线)
龙盛湾上一期于今年5月开盘,首开房源216套,产品建面约149-210公寓,均价约13.3万/㎡。开盘当日劲销48.6亿,共售出205套,去化率约95%。
内环内新房均价破17w
上海静安龙盛湾上售楼处电话☎:400-8828-814(售楼处预约看房热线)今年内环重磅事件:新房均价突破17w+大关,并且销售情况都十分震撼!中海顺昌玖里17.2w的均价,200亿货值当天售罄!同样内环内的「龙盛·湾上」一期才13.3w/㎡,价格优势突出!(数据来源于网上房地产,仅供参考)
数据来源于网上房地产,仅供参考
苏河湾板块价格洼地!
「龙盛·湾上」所在的苏河湾板块,上海静安龙盛湾上售楼处电话☎:400-8828-814(售楼处预约看房热线)次新房挂牌均价势头依旧迅猛,普通次新房的链家挂牌均价在15w/㎡左右,而品质次新豪宅已经达到18.8w/㎡以上而「龙盛·湾上」一期均价仅约13.3w/㎡,与其品质相当的次新豪宅相比存在约66%的倒挂率。(数据来源于链家网,截止于5月17日,仅供参考)
数据来源于链家网,截止于5月17日,仅供参考
上海静安龙盛湾上售楼处电话☎:400-8828-814(售楼处预约看房热线)「龙盛·湾上」身处苏河湾板块内,自带不凡商业地盘+刷新静安城市天际线的地标级办公楼,可以预见的是,未来这里的生活方式必将是高效、精致又别具一格~
约55w方地标综合体:博懋广场
上海静安龙盛湾上售楼处电话☎:400-8828-814(售楼处预约看房热线)项目自身处于约55.2万方博懋广场城市地标综合体内,其中包含一栋约320米超高层塔楼,一栋约150米副塔楼及裙房商业建筑,石库门商业街区,三栋约150米超高层住宅及低密风貌别墅,集合了高端办公、奢华酒店、摩登商业、精品住宅等多元业态。
上海静安龙盛湾上售楼处电话☎:400-8828-814(售楼处预约看房热线)其中,超高层主塔楼约320米,未来建成后将成为静安第一高楼新地标,也为浦西地区带来一个全新的标志性建筑
主塔顶端引入国际奢华酒店品牌瑰丽,也是上海首家瑰丽酒店(拟引入)
上海静安龙盛湾上售楼处电话☎:400-8828-814(售楼处预约看房热线)对于这种国际顶尖酒店品牌选址于此,一方面得益于苏河湾“一江一河”的独特地理位置,另一方面不得不提到项目的开发商:龙盛
上海静安龙盛湾上售楼处电话☎:400-8828-814(售楼处预约看房热线)作为深耕苏河湾的豪宅专家,龙盛不仅打造了福新里等高端改善标杆住区,还是一个专注苏河湾的城市运营商。
上海静安龙盛湾上售楼处电话☎:400-8828-814(售楼处预约看房热线)不同于别的开发商,龙盛所秉承的城市运营,是通过好的空间吸引好的内容打造好的邻里,形成一个良性循环,带来区域价值的体现。
目前板块内我们熟知的法拉利亚太定制中心、法拉利意特展厅、Liaigre、苏富比空间、Poltrona Frau等国际顶尖资源,背后的推手都是龙盛。

上海静安龙盛湾上售楼处电话☎:400-8828-814(售楼处预约看房热线)凭借龙盛在苏河湾多年深耕的运营实力与对创新资源的卓越整合能力,我们有理由相信,龙盛亦将在博懋广场地标综合体项目中会有更加亮眼的表现。
“一江一河”世界级滨水中央活动区
上海静安龙盛湾上售楼处电话☎:400-8828-814(售楼处预约看房热线)根据“上海2035规划”,苏河湾板块划入中央活动区,未来将与陆家嘴、外滩等共同承载上海参与全球竞争的核心功能。
上海静安龙盛湾上售楼处电话☎:400-8828-814(售楼处预约看房热线)在上海“一江一河”十四五规划中,苏河湾是“十四五”期间上海重点建设的板块。2023年市政府工作报告提出:着力优化城市空间格局,打造城市发展新的增长极。
上海静安龙盛湾上售楼处电话☎:400-8828-814(售楼处预约看房热线)加强中央活动区功能复合,推动苏河湾等区域打造世界级滨水区。“十四五”期间,苏河湾功能区将通过推动总部经济中心建设、焕活历史文化底蕴魅力等举措,努力打造成为世界级滨水中央活动区、世界级“城市会客厅”。
上海静安龙盛湾上售楼处电话☎:400-8828-814(售楼处预约看房热线)
正在进行大规模城市更新的苏河湾,必将成为上海未来的高端产业聚集地,也或将成为魔都“超高层建筑最密集的区域”。
上海静安龙盛湾上售楼处电话☎:400-8828-814(售楼处预约看房热线)未来将建成约10栋“超高天际建筑”,其中至少有2栋建筑高达300米以上,其中一栋规划建筑高度更是达到320米,与目前“浦西第一高楼”白玉兰广场一样高,就是龙盛湾上地块内主塔博懋广场!
上海静安龙盛湾上售楼处电话☎:400-8828-814(售楼处预约看房热线)苏河湾,坐落于苏州河北岸,根据苏州河的流向,亦即苏州河之左岸。而在规划中,苏河湾被定位为“上海文化左岸”。
“左岸”一词,源自巴黎塞纳河左岸,上海静安龙盛湾上售楼处电话☎:400-8828-814(售楼处预约看房热线)如今已成为城市公共活力的象征,苏河湾作为上海的新“左岸”,承载着相似的城市文化使命。
如果说,塞纳河左岸犹如巴黎艺术生命的脉搏;那苏州河左岸则浓缩着上海文化的精华。
内环内高密度生活配套资源
上海静安龙盛湾上售楼处电话☎:400-8828-814(售楼处预约看房热线)项目坐拥苏河湾,板块内的苏河湾中心万象天地、静安大悦城商业早已成为地区商业中心,步行可至,周边直线距离3km范围覆盖市中心各大顶层地标商圈、文化设施、生活配套资源相当丰富。(百度地图测距)
项目直线距离人民广场仅约1.5公里,外滩、南京东路和南京西路都在2公里范围之内!(百度地图测距)上海大部分核心的城市地标、商业配套和文化资源几乎都步行可至,宛如自家的配套!
上海静安龙盛湾上售楼处电话☎:400-8828-814(售楼处预约看房热线)
上海静安龙盛湾上售楼处电话☎:400-8828-814(售楼处预约看房热线)项目周边南北高架、西藏北路,北横通道环伺,上下班、聚会、旅行处处快人一步。
轨交方面,项目约1公里范围内可选择3/4/8/10/12号线五条轨道交通,轻松通达各个城市节点。(百度地图测距)
项目与苏州河直线距离仅约750米,距离黄浦江也不到2公里,非常适宜Citywalk或者晨跑
上海静安龙盛湾上售楼处电话☎:400-8828-814(售楼处预约看房热线)值得一提的是,在《上海市静安区单元规划》中明确,未来湾上西北侧的上海火车站的铁轨道,规划为约17.5万方城市绿地,土地属性调整为市区级文化设施,为未来业主提供一个散步的好去处。
示意图,图源《上海市静安区单元规划》
上海静安龙盛湾上售楼处电话☎:400-8828-814(售楼处预约看房热线)苏河湾作为上海工商业的发源地,项目周边的历史底蕴也非常丰富,坐拥四行仓库、慎余里、天后宫、上海总商会旧址等约50万方保留保护建筑、17个风貌保护街坊体量超越了新天地与田子坊的总和!
上海静安龙盛湾上售楼处电话☎:400-8828-814(售楼处预约看房热线)除了历史底蕴之外,项目周边还环绕着上海博物馆、上海大剧院等文化资源,以及尤伦斯当代艺术中心、上海苏富比空间、外滩艺术馆、外滩美术馆、上海展览中心等艺术空间,艺术文化氛围也是相当浓厚。
无论是摩登的商业、自然的风光、历史的厚重,还是文化的瑰丽,都在这里得到了完美的融合。
「龙盛·湾上」特邀国际大师团队合力打造:
上海静安龙盛湾上售楼处电话☎:400-8828-814(售楼处预约看房热线)
住宅建筑设计——天华建筑设计有限公司
商办建筑设计——Foster + Partners福斯特建筑事务所
景观设计团队——Belt Collins 贝尔高林
室内&会所设计——W.DESIGN 无间设计
由此得出「龙盛·湾上」惊艳的产品力~
劲性柱结构实现超高得房率
上海静安龙盛湾上售楼处电话☎:400-8828-814(售楼处预约看房热线)相较于传统的超高层剪力墙结构,湾上所采纳的劲性柱结构设计,特色在于其室内几乎无承重墙。
示意图,仅供参考
上海静安龙盛湾上售楼处电话☎:400-8828-814(售楼处预约看房热线)不仅解决了传统超高层在实际使用中空间受限的问题,更赋予了项目室内空间极高的可变性,实现了空间布局的多样性和灵活性,为业主提供了更高程度的个性化居住体验。
同时也解决了超高层得房率低的壁垒,据了解项目预测得房率高达约78%!(数据仅供参考,具体以购房合同约定为准)
数据仅供参考,具体以购房合同约定为准
高审美外立面
上海静安龙盛湾上售楼处电话☎:400-8828-814(售楼处预约看房热线)选用低饱和度的橙色深灰色作为主基调色,使用复合铝板结合深灰色门窗线条,形成简约高奢的风格。
更是采用了LOW-E涂层中空钢化夹胶玻璃,部分采用全落地窗室内设计,大幅提高节能、采光及遮阳效果。
高奢度假风格中央景观花园
上海静安龙盛湾上售楼处电话☎:400-8828-814(售楼处预约看房热线)「龙盛·湾上」社区由3幢超高层住宅错落分布,实现了栋距达到75米惊艳尺度,有足够的空间做社区景观~
特邀贝尔高林设计的中央主题景观,配合分布式的泛会所打造“公园式度假生活”主题景观;社区外还有北站规划的大面积集中公共绿化,在寸土寸金的内环,实在是奢侈。上海静安龙盛湾上售楼处电话☎:400-8828-814(售楼处预约看房热线)
上海静安龙盛湾上售楼处电话☎:400-8828-814(售楼处预约看房热线)社区入口采用了酒店式环岛落客区设计,并且中庭配备了约3500㎡具有“公园感”的中央庭院,社区内利用不同的植物形态表现提升景观空间的品质,营造典雅精致的植物景观,将归家仪式和日常休闲的体验感拉满。
高效智能梯控、精致入户大堂
上海静安龙盛湾上售楼处电话☎:400-8828-814(售楼处预约看房热线)为保证业主生活私密性与便捷性,「龙盛·湾上」将电梯厅远离户内,并且在三梯三户的优质高梯户比标准下,引入迅达智能梯控系统,让未来业主在日常高峰期间等候梯时间不超过1分钟,确保未来业主在高峰时段内享受高效的电梯服务。(数据来源于迅达测试,预计高峰期间平均等候梯时间为47秒)
精致入户大厅+架空层+社区会所
上海静安龙盛湾上售楼处电话☎:400-8828-814(售楼处预约看房热线)「龙盛·湾上」采用地上+地下三层同标准精装入户大堂,大堂选用有着媲美艺术品表现力的亚马逊绿天然奢石,而且地上地下一脉相承、华贵一致,结合仿古铜不锈钢、艺术壁灯为点缀,将上海的摩登气息注入归家大堂,给业主更强烈的入户仪式感。
上海静安龙盛湾上售楼处电话☎:400-8828-814(售楼处预约看房热线)大堂除了给业主带来更强的仪式感外,项目还打造了架空层泛会所空间,并且将室内精装标准延伸至架空层内部,结合约5.1米的层高,打造了能满足业主足不出楼的多元化社交空间。
上海静安龙盛湾上售楼处电话☎:400-8828-814(售楼处预约看房热线)为了契合高净值业主的生活方式,项目还打造了一个具有会客区、恒温泳池、瑜伽健身的多元化私享会所,给业主带来更加便捷且潮流的生活方式。
「龙盛·湾上」在产品力打造上相当出众!在豪宅遍地的苏河湾依然名列前茅!
项目层高突破传统住宅达到约3.3米,空间感十足!搭配墙面、地面选用的米白色天然石材,以及顶部特殊的圆弧造型,通透造型空间尽显塔尖气质。上海静安龙盛湾上售楼处电话☎:400-8828-814(售楼处预约看房热线)
不断提高装修标准提升生活品质
上海静安龙盛湾上售楼处电话☎:400-8828-814(售楼处预约看房热线)样板房智能化设计上,室内采用永诺Jung(或同档品牌)德国进口智能面板,可集中控制电动遮阳百叶、空调、灯光等设备。
除了大金+威能(或同档品牌)的中央空调、地暖、曼瑞德新风系统(或同档品牌)“三件套”之外,开发商还特地升级了厨房直热饮水龙头、滨特尔净水、送asko全套洗烘、嘉格纳6件套(或同档品牌)等;
上海静安龙盛湾上售楼处电话☎:400-8828-814(售楼处预约看房热线)项目精装标配意大利排名第一的威乃达橱柜(或同档品牌),主卫次卫全部采用杜拉维特的台盆和当代龙头(或同档品牌),主卫更是采用了TOTO智能马桶(或同档品牌),连主卧也增添了意大利LEMA衣柜(或同档品牌),质感表现力相当强,妥妥塔尖住宅的水准。
上海静安龙盛湾上售楼处电话:400-8828-814✔✔【预约热线】龙盛湾上售楼处营销中心:400-8828-814龙盛湾上售楼处电话/地址☎:400-882-8814(开发商热线)如有问题欢迎来电咨询,专业一对一热情服务,让您用专业眼光去买房。静安苏河湾全新地标豪宅,建面约138-194-248㎡,均价13.46万/㎡,目前“样板间”已开放。
声明:本文由入驻焦点开放平台的作者撰写,除焦点官方账号外,观点仅代表作者本人,不代表焦点立场。


