苏州顶级豪宅—苏州拙政别墅:28墅孤品-700平 6000万-图文详解-电话-位置
扫描到手机,新闻随时看
扫一扫,用手机看文章
更加方便分享给朋友
拙政别墅位于苏州古城核心地段百家巷99号,与拙政园一墙之隔,并且建于拙政园旧址之上,经苏州市文物局、江苏省文物局、国家文物局三级严格审批,与拙政园一脉相承,其地段不可再生、不可复制。由于其特殊的地理位置,2012年4月苏州市地名办同意本项目正式命名“拙政别墅”,与世界文化遗产齐名,在国内尚属首例,是真正值得传世收藏的文物级国邸。
限量珍罕 无价之宝
拙政别墅仅28栋,可以算是全国乃至世界罕见的绝世作品!它已远远超越了常规住宅的居住功能,是真正值得收藏和传承的古董级建筑。它不仅是建筑领域的绝版传承,更是留给后人的一份无价的文化遗产,是物质和精神的双重财富。
拙政别墅是苏州市中心唯一在售纯独栋别墅社区,仅28栋。
建筑面积670—4400平米,占地1-1.5亩左右,
主力面积670—3400平米,目前总价6000万—1.1亿。
拙政别墅距离苏州最繁华商业街观前街仅1.5公里交通便利,出行方便高铁至上海28分钟,开车至上海虹桥机场50分钟,开车至苏南硕放机场40分钟。开车至沪宁高速口5分钟,开车至苏州火车站仅10分钟。
苏州园林文化的传承 中国传统建筑的复兴
拙政别墅是原创苏式古典园林大宅,是对中国传统建筑的复兴和传承,古今结合,中西合璧,处处体现现代人居住的舒适性和精致度。拙政别墅执着传承纯正苏州古典园林营造手法拙政别墅传承了即将失传的香山帮技艺。
香山帮:世界非物质文化遗产香山帮匠人作为紫禁城皇家园林建筑和苏州园林的缔造者,精湛技艺世代相传。在建筑技艺上形成了一个集木作、瓦作、砖雕、彩绘、石作、油漆、叠山、铺地等多工种为一体的建筑群体,堪称“八大作”。
香山帮已被列为世界级非物质文化遗产,非物质文化传承人在全国屈指可数。香山帮在全球著名中式建筑施工中大放异彩,曾雕琢的项目:北京钓鱼台国宾馆、西藏布达拉宫、美国纽约大都会艺术博物馆中国花园“明轩”联合国教科文组织巴黎总部内的“易园”美国洛杉矶圣玛利诺市亨廷顿艺术博物馆、图书馆及植物园内的“流芳园”世界贸易组织的“瑞苏园”“一户一会所”——至高规格的园林会客厅。
对于中国家族而言,一处华贵的私家园林会客厅,无疑是身份与地位的象征,“谈笑有鸿儒,往来无白丁”。在苏造园林府邸中待客,即使最高礼节也不过如此。拙政别墅注重于在传统园林中诠释现代生活,二十八栋别墅,每一栋都是一处会所,承载着主人修身养性与社交功能的双重需求。不仅可以自住,而且可以作为公司企业接待会馆。在这里,名门翘楚可静默养气,安身立命;有十二般景致,可招朋呼友,游园品茗,听曲观戏。堂会、雅集,或者party在拙政别墅都是再恰当不过了。
荣誉加身 硕果累累
拙政别墅荣膺奖项:
“2012年时代楼盘第七届金盘奖 ——最佳年度中式别墅一等奖”
2012年“最具投资价值城市豪宅”
“2012年度最具典藏价值城市大宅”
2013年度荣获有地产界奥斯卡之称的“国际地产大奖”。
开发商:苏州赞威置业有限公司
物业地址:苏州市姑苏百家巷99号(拙政园东北100米)
占地面积:34908平方米
建筑面积:41665平方米
容积率:0.588
绿化率:40%
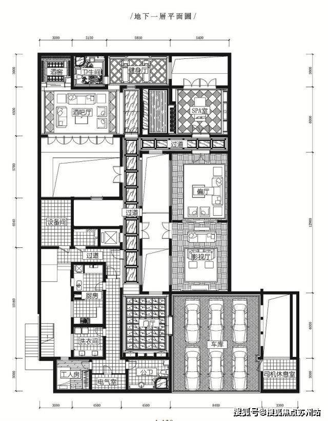
拙政别墅,位于世界四大园林文化遗产之首苏州拙政园旁的中心位置,北临北园路、东临百家巷,既具有士大夫择址造园所看重的大好风水,又被赋予了浓重的江南历史人文色彩。拙政别墅项目仅仅规划有28栋独栋别墅,面积从660-4000平米,私享1亩左右私属园林。别墅用料之考究,精选百年高级木材及石材,每幢别墅均为全套房、双客厅、男女主人独立会客空间、双厨房、室内游泳池、3-9个地下车位等。
苏州拙政别墅产品分析
基地
拙政别墅所处地块为苏州古城核心,拙政园旁,地势略高于四周,状如龟背。江南土软,为实现“地下景观动线”,避免建筑不均匀沉降,提高别墅居所的抗震性,使得28座独栋别墅连为一体。
规划——U子型布局
为避免园内现代交通与古典园林的冲突,拙政别墅将车行路放置地下,主人通过地下车库大堂直达府中,最大程度上保证了居住者的安全性与私密性。阳光经过独特设计的花窗被引入地下动线,旧日苏式园林“深宅大院”的繁华记忆在这里被重新寻回。拙政别墅私属内庭院背西朝东,而厅堂坐北朝南。苏州位于东南季带,此种朝向的U子型摆布,保证冬季采光与夏季通风。
有故事的主题园林及细节
拙政别墅主入口大门采用以全东南亚进口柚木为主,木柱直径达35厘米,整体跨度6米,直追紫禁城6.5米的皇室标准。订制铜徽、筒瓦为辅。拙政别墅门庭所用将军门,以进口东南亚柚木内包铜边。门上铜徽定制自铜业翘楚朱家,将别具江南韵味的青花瓷镶嵌于铜中。大门两侧镶嵌石刻麒麟,置坤石与石狮,是江南审美与传统技艺的珠联璧合。拙政门庭定制的专属筒瓦,颜色质地与柚木结构门庭相映成辉。
刻石
由非物质文化传承人、皇家园林建筑和苏州园林的缔造者——香山帮亲手打造,是对土地的尊重,更是对古园的保护。
围合
拙政别墅东、北围墙因临近白家巷与北园路,故高达6米,从而最大限度的围合了园内景观,屏蔽行人视线;南侧围墙略低,在视线上联通拙政园,更能保证采光。围墙上端设苏州样式花窗,为传统围墙的呆板注入灵韵。
园林
拙政别墅沿袭中国私家园林气脉,在庭院、天井以及路径用石材与砖材铺设成十字海棠、冰格、梅花等寓意吉祥的传统文祥,是“拙政十二景”意境的延伸。
选石
主入口选用一块体积巨大的金山石老料,切割拼接成石板,辅以香山帮手工石刻;园区内铺地选用香山帮珍藏多年的古城墙砖;园中碎石铺地,采用香山帮特有的工艺,将石块牢固的固定在路面,采用青草点缀其间,营造出一种包含光阴洗礼的生机盎然。拙政别墅的假山湖石皆来自明间收藏,极具美感的太湖石3000吨。经香山帮非物质文化遗产传承人、叠山工艺大师之手,将传统叠山手法与中国审美结合,师法自然,缔造独峰、小品、驳岸、璧山、拼峰等,遍布园中。
桥·水
拙政别墅园中多用曲桥和拱桥,或用廊桥,借水生景,虚实相接。园中水系抛缺旧园中用水井相连的方法,采用现代科技的整体水循环系统,时刻清洁水系,减少蚊虫滋生。
内庭院入户门
门头木饰板装饰以纯金金箔,两侧墙上镶嵌汉白玉石雕“五福捧寿”,下置坤石与石狮,集传统礼序与姑苏特色与一身。
细节
气孔—苏州金砖砖雕出气孔
水孔—金山石石雕“富贵有鱼”出水孔
飞檐—极具古典苏式建筑特色的飞檐
户型设计理念
尊礼重序,古意今扬。拙政别墅注重礼序、注重专用、注重个人的私密性和尊贵感。
双门厅:普通别墅重门厅轻车库。但如今主人出入,车库反而常用。创立双门厅,既显文化尊贵,更显生活优雅,各得其所。
双客厅:双客厅设计,普通别墅的双客厅仅仅是大客厅加家庭起居,而如今别墅生活大多女主人打理。拙政别墅独创女性空间,将大客厅定义为男性空间,展示国宅贵胄。男性空间隔着庭院相望是尺度精致,装饰华丽精巧的女性空间,更有定制香氛,展示国宅雅趣。
双厨房:双厨房是垂直分区。地下室设置粗加工厨房。半成品借食梯输送到一楼精加工厨房,精加工厨房则可展示私家料理。双流线设计:主人和服务动线绝对分离,5个入户门使其各自出入,不相干扰。保证主人私密的独享空间。
多庭院设计:每户不仅有前院、中院和后院,极尽园林钩心斗角之精美,而且边院也别有洞天。即便地下室,也有下沉庭院借的日光入地来。全套房设计:套房其实就是楼中楼,盍门而自有起居、步入衣帽间、卫生间和大卧室。
五星服务用房:不仅重视主人,而且五星打造服务人员的生活服务空间,鼓励平等快乐工作。
科技
门窗:纯正苏式园林国邸的门窗,皆为原创研发、少量定制而成。以冰裂纹等传统窗棂花纹体现纯正苏式韵味;以独有的门芯板技术解决防火、防潮、保温、节能问题;以德国进口五金件保证开关顺畅与安全。
保温:A外墙保温,航天飞机专用的真空隔热板,被用于拙政别墅的外墙保温,实现真正意义上的“低碳环保生活”。 B内保温系统 别墅内保温系统绿色环保,同时具有呼吸性能,可以有效调节室内湿度与温度,最大程度的减少室内空间热量流失,可以在极端天气情况下保证室内空间的体感舒适度。
防水:地下室采用国家最高一级的防水标准,第一层,混凝土自密性防水;第二层,采用进口防水涂料;第三层,采用进口防根穿刺卷材,预防园林树木对建筑的损害。
安保:特别甄选与上海世博会中国馆同样的安防系统。
电梯:私家电梯为居住着带来便利性与专属感。
声明:本文由入驻焦点开放平台的作者撰写,除焦点官方账号外,观点仅代表作者本人,不代表焦点立场。


