最新动态:姑苏建发金门迎全新改善产品,户型图首次曝光,联排+洋房!
扫描到手机,新闻随时看
扫一扫,用手机看文章
更加方便分享给朋友
昨日(5月20日),苏地2024-WG-Z08号地块项目批前规划公示。该地块于2024年7月,被瑞嘉商业发展以13197万元竞得。
项目拟建5幢3-7F住宅,产品为联排+洋房,预计今年5月开工,2026年9月完工。
作为该项目信息首次曝光,本次同步释出了7#洋房和5#联排的户型图,洋房南向双套房、三阳台设计,联排带有露台,亮点十足,一起来先睹为快!咨询热线:18662309054


洋房、叠墅、别墅!拟建5幢3-7F产品
2024年7月,苏地2024-WG-Z08号地块被瑞嘉商业发展以13197万元竞得,成交楼面价20500元/㎡。

地块航拍图,未经允许,严禁转载
点击进入【土拍小程序】查看详情
地块位于姑苏区桐泾北路西、东沁苑东,占地0.53万㎡,体量很小,拟打造5幢3-7F住宅,其中4栋3F联排,及1栋7F洋房,小区在桐泾北路设有出入口。咨询热线:18662309054


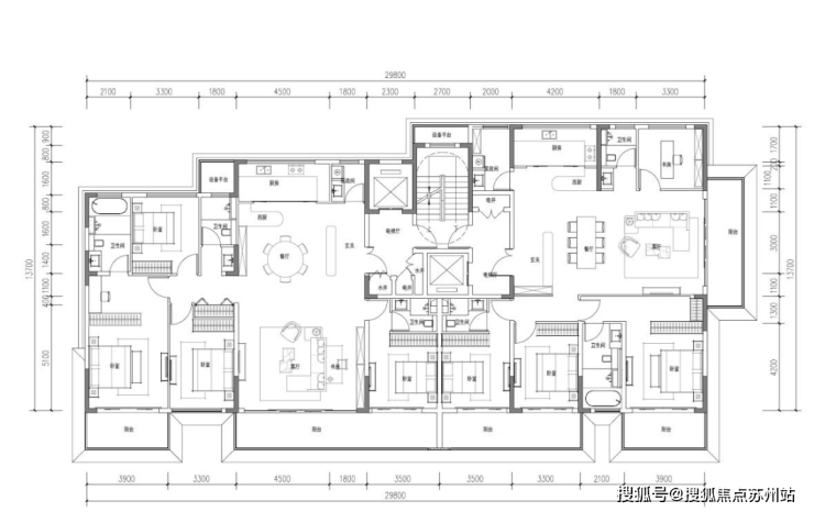
本次同步释出了7#、5#楼的户型标准层示意图。
7#:7F洋房,2梯2户
标准层立面图如下:2个户型产品

西边户:4房2厅3卫设计,南向面宽约17m,南向双阳台,分别9.8m、3.9m;中西双厨设计,带独立家政间,空间功能合理规划;客厅开间6.3m,外接阳台;南向三房,其中双套房设计,主卧开间约3.9m。
东边户:4房2厅3卫设计,南向面宽约12.8m,三阳台设计,南向双阳台+东向阳台,开间分别为6.8m、3.9m、7.6m;中西双厨配备家政间;南向三房,其中双套房设计,主卧开间约3.9m。
5#:3F联排
户型设计上为5房4卫,整体面宽约12.5m,带露台。
一层立面图:
一楼设计有客厅、餐厅及卧室,宽厅开间8.6m,客餐厅一体,面积约44㎡;卧室面宽3.9m,卧室带有卫生间;客厅和卧室可直达前院,舒适性很高。

二层立面图图:
二楼为2个套房设计,面积较大的套房约25㎡,设有衣帽间和卫生间。

三层立面图:
二楼2个房间设计,房间均连通阳台;主卧为大套房,南北通透大套房面积约44㎡,南向带阳台,北向带露台,面宽高达8.6m,卫生间大浴缸配双台盆;次卧连接南阳台,整体居住舒适度很高。


古城优质醇熟配套环绕,区域内改善需求旺盛
地块位于金门路北侧,靠近西环路和市政府,地块1公里范围内有1号线桐泾北路站,出行便利。
教育方面,金阊实验小学分校、苏州金阊外国语实验学校等优质教育资源环伺。商业方面,即将开业的华贸中心、天虹商场、石路国际商城、西城永捷等商业综合体可满足衣食住行一站式需求。
金门板块老小区众多,区域内改善需求较大。本案地块旁边就是保利姑苏瑧悦、建发Z47号地块。
保利姑苏瑧悦项目于2024年6月开盘入市,备案价4.6万+/㎡,打造7栋6-10F洋房和3栋16F小高层,户型建面约143m²、160m²、180㎡,目前少量房源在售。
建发Z47号地块规划已经出炉,打造8幢4-6F宋风叠墅。该地块于今年4月份出让,成交总价5.3亿,成交楼面价26054元/㎡,溢价23.77%。
咨询热线:18662309054如今,本案地块规划也已经出炉,区域内两大纯新盘待售,均为低密墅类产品,值得期待。
声明:本文由入驻焦点开放平台的作者撰写,除焦点官方账号外,观点仅代表作者本人,不代表焦点立场。


