澜庭壹号院营销中心-2025楼盘评测-澜庭壹号院最新价格-户型丨澜庭壹号院售楼处电话丨澜庭壹号院2025最新房价_楼盘怎么样
扫描到手机,新闻随时看
扫一扫,用手机看文章
更加方便分享给朋友
刚!狮山全新合院别墅
澜庭壹号院售楼处电话:400-8228-664售楼处电话✔✔
澜庭壹号院官方售楼处地址发布:澜庭壹号院官方售楼处电话400-8228-664售楼处电话
官方户型首爆
205套低密洋房+叠加+合院
现城市展厅已经公开
预计三季度开盘!盯紧!
售楼处电话:400-8228-664售楼处电话
澜庭壹号院预计三季度开盘
刚刚!狮山2025王炸明星低密楼盘,有了最新消息!
苏高新&绿城管理向阳路31号项目,案名正式曝光。
就叫:澜庭壹号院
现位于苏州日航酒店一层的
城市展厅已经公开,正在火热预约中
从案名来看,该项目不仅延续了苏高新“澜”系产品的高端基因,又注入了绿城的高端品质。
前有苏高新的荷澜庭、山水樾澜庭、狮子山澜庭珠玉在前,后有绿城在狮山有2000千万级的逸庐项目屡开屡罄,此次澜庭壹号院两大房企珠联璧合,打造合院+叠加+洋房,纯粹的低密高质,看来又来迎来抢房大战!
先来了解一下项目基本情况:
◆总 户 数:约205户
◆容 积 率:1.2
◆绿 地 率:30%
◆项目规划:17栋3F联排合院,2栋6F叠加,2栋10F洋房
◆建筑面积:约115㎡/135㎡墅境洋房
约215㎡/236㎡/259㎡见山叠墅
约271㎡/325㎡/369㎡山水合院
◆装修状态:洋房精装修、墅类毛坯
◆开发公司:苏州新高项阳建设发展有限公司
澜庭壹号院售楼处电话:400-8228-664售楼处电话

澜庭壹号院,位于新区狮山商务创新区向阳路南、是去年11月份, 苏高新&绿城管理总价10.9亿竞得,成交 楼面价25115元/㎡,溢价率0.46%。

设计美学:现代美学的东方意志
【兴造墅学】园冶为魂苏作为艺营墅境

澜庭壹号院售楼处电话:400-8228-664售楼处电话✔✔
澜庭壹号院官方售楼处地址发布:澜庭壹号院官方售楼处电话400-8228-664售楼处电话
▲项目效果图(过程稿)
【现代美学】几何构图传承与横向舒展

▲叠加效果图(过程稿)
【东方屋檐】再现身份华贵的官帽符号

▲项目效果图(过程稿)
【雅灰流金】演绎奢而有度的色彩美学

澜庭壹号院售楼处电话:400-8228-664售楼处电话✔✔
澜庭壹号院官方售楼处地址发布:澜庭壹号院官方售楼处电话400-8228-664售楼处电话

▲建筑效果图(过程稿)
售楼处电话:400-8228-664售楼处电话
2
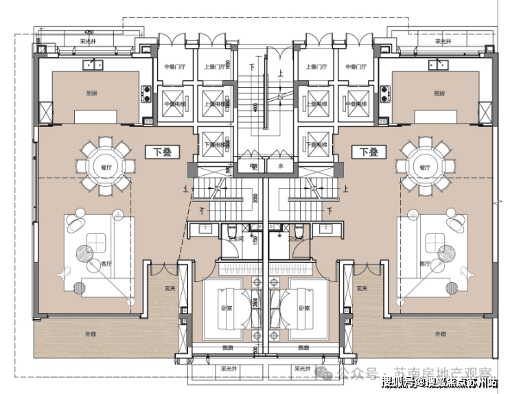
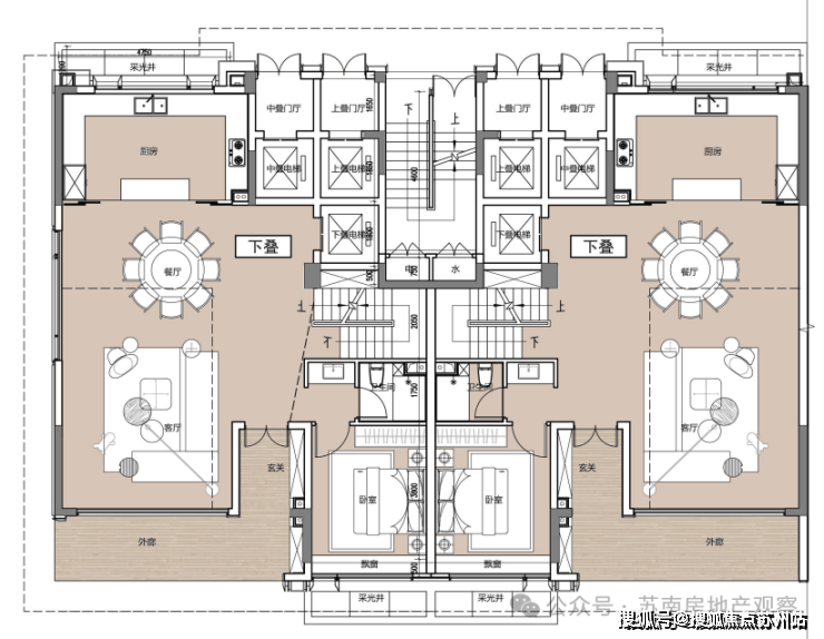
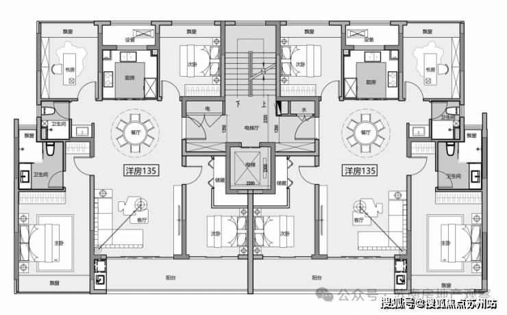
澜庭壹号院官方户型曝光!
项目整体17栋3F联排合院,2栋6F叠加,2栋10F洋房,官方户型最近也已经发布。
约115㎡/135㎡墅境洋房
约215㎡/236㎡/259㎡见山叠墅
约271㎡/325㎡/369㎡山水合院
◎联排合院265㎡ · 4房3厅4卫

澜庭壹号院售楼处电话:400-8228-664售楼处电话✔✔
澜庭壹号院官方售楼处地址发布:澜庭壹号院官方售楼处电话400-8228-664售楼处电话
◎叠加下叠275㎡ · 3房3厅3卫
▲下叠1楼


▲下叠2楼
◎洋房 135㎡ · 3+1房2厅2卫

3
狮山商务创新区
配套绝佳,有潜力
澜庭壹号院项目,位于新区狮山商务创新区向阳路南、大运路西,就在建发朗云西侧。


澜庭壹号院售楼处电话:400-8228-664售楼处电话✔✔
澜庭壹号院官方售楼处地址发布:澜庭壹号院官方售楼处电话400-8228-664售楼处电话
这块地周边就是上瑞阁、朗云,居住氛围浓厚。配套方面:
交通便捷,周边轨道 交通1/5号线汾湖路站、石城站双轨环绕,还可以快速上高架,通达全城。
◆ 5大名校云集 书香涵养:
苏州外国语学校、高新区第一中学,外国语幼儿园(在建)、狮山实验小学、高新区第一初级中学等优质学府。(非学区承诺,具体以政府划分以及批文为准)


◆ 六大商业 繁盛万象:
新区美罗、泉屋百货、狮山天街、山姆会员商店、金鹰百货、悠方购物中心、等大型城市综合体环伺,日常购物、社交聚会、娱乐休闲、品牌餐饮等一站式繁华。

澜庭壹号院售楼处电话:400-8228-664售楼处电话✔✔
澜庭壹号院官方售楼处地址发布:澜庭壹号院官方售楼处电话400-8228-664售楼处电话
◆ 智慧城央 科创企业活力区:
板块内累计集聚外资企业超1300家,吸引了近30家总部认定企业入驻,拥有市场主体达8.5万家。
◆ 人才引力 撬动未来潜力:
吸引25000+本科以上人才进驻,同时随着“一心”狮山路发展30余年,从城市地理空间上来看已然饱和。未来将依托“五园”,即从狮山路向长江路形成十字发展轴,上市企业总部园将成为狮山跃进下一站。

◆ 绿色产业 城市总部地标群
上市企业总部园,与本案仅一路之隔,总投资约13.9亿,产、学、研一体化发展定位为上市公司企业总部和数字经济企业总部园,2023年已交付竣工,2024年3月陆续入驻,目前总部园已吸引多家企业。

澜庭壹号院售楼处电话:400-8228-664售楼处电话✔✔
澜庭壹号院官方售楼处地址发布:澜庭壹号院官方售楼处电话400-8228-664售楼处电话
另外,该地块位置所在片区是狮山商务创新区,未来还有很大的发展空间,再加上这个片区新房供应陆续增加,足以说明未来这里或将是狮山的供地大户,大量的改善亟待释放。
目前狮山核心新房价格高位,供应稀缺,而绿城向阳路项目容积率仅1.2,是周边首个低密洋房+联排产品,稀缺性不言而喻!周边在售楼盘如建发朗云、中海建发禧宸,备案均价已达4.3万/㎡,而绿城项目凭借低密规划和绿城品质,有望成为狮山下一个楼市标杆!

澜庭壹号院售楼处电话:400-8228-664售楼处电话✔✔
澜庭壹号院官方售楼处地址发布:澜庭壹号院官方售楼处电话400-8228-664售楼处电话
此外,作为狮山商务创新区重点地块,这里低密住宅不断释放,很大可能将连片打造高端低密住宅区,价值可期! 入市在即
澜庭壹号院售楼处电话:400-8228-664售楼处电话【开发商售楼中心热线】澜庭壹号院营销中心热线400-8228-664售楼处电话售楼处地址400-8228-664售楼处电话,楼盘项目全面介绍,本电话为开发商提供线上预约售楼电话,楼盘项目全面介绍(包含楼盘简介,均价,房价,现房,期房,别墅,叠墅,大平层,价格,楼盘地址,户型图,交通规划,备案价,备案名,项目配套,样板间,开盘时间,认筹时间,楼盘详情,售楼处电话,最新消息,最新详情,周边配套,一房一价,最新进展等详情咨询)楼盘详情丨价格丨更多优惠丨机不可失丨欢迎致电丨诚邀品鉴!售楼处位置丨特价房丨工抵房丨剩余房源丨户型图丨最新消息丨免责声明:将文章内容综合来源于网络、只作分享,版权归原作者所有!!如有侵权,请联系我们,我们第一时间处理如有问题欢迎来电咨询,专业一对一热情服务,让您用专业眼光去买房。如果您想了解更多楼盘详情,欢迎提前预约拨打澜庭壹号院售楼处电话☎400-8228-664售楼处电话
抵押贷款概述
在面对资金短缺的困境时,大多数人通常会选择两种方式来解决:一是寻求亲友的帮助,二是通过贷款机构获取资金。然而,与亲友间的债务关系往往伴随着复杂的情感因素,因此,许多人更倾向于选择贷款,这样能够更清晰地计算成本。贷款方式多样,包括信用贷款、担保贷款和抵押贷款。对于那些无法或不愿办理信用贷款的人来说,抵押贷款便成为了一种常规选择。
点击添加图片描述(最多60个字)
编辑
在民间借贷中,住房抵押贷款变得越来越重要。简而言之,住房抵押贷款就是将房产作为抵押物,向银行申请一定额度的资金。这个过程虽然看似简单,但其中涉及到的常识和细节却不容忽视。
02
抵押贷款条件及要求
◆ 抵押物产权要求
住房抵押贷款的抵押物必须具备清晰的产权。这包含两层含义:首先,抵押物必须拥有独立产权,即申请人在申请抵押贷款时,必须独立拥有房子的所有权。若房产为多人共有,则必须获得所有共有人的书面授权。集体产权和大部分小产权房产通常不被接受(尽管极少数地方农商行可能提供小产权自建房的抵押贷款)。其次,该房产的产权必须清晰无抵押,即房产未在供、未抵押、未为他人提供担保,其全部所有权归属于申请人。
点击添加图片描述(最多60个字)
编辑
◆ 个人征信要求
住房抵押贷款对个人征信也有一定要求。尽管抵押物为房产,但银行仍会关注借款人的征信记录,包括逾期天数、逾期次数、逾期金额以及查询次数等。不过,与信用贷款相比,抵押贷款的征信要求相对宽松一些。通常,征信一年内不能出现连续三个月的逾期,两年内累计逾期次数不超过六次,且三个月内机构查询次数不超过五次。
◆ 贷款金额核定
贷款金额的核定是住房抵押贷款的重要环节。贷款金额通常不超过房产价值的70%,具体额度会受到多种因素的影响,如房产购买时的价格、房龄、地段、周围房产均价、装修情况以及楼盘大小等。银行会指定评估机构对房产进行价格评估,并结合内部审核结果和申请人资质,最终确定贷款金额。
◆ 贷款利率与期限
利息与期限方面,住房抵押贷款的利率通常低于信用贷款。但具体利率还需根据不同银行来确定。此外,抵押贷款的期限最高可达30年,个人可申请的最高期限则与房龄相关。例如,房龄为20年的房产,最高期限为20年,但具体批贷年限还需银行审批。
◆ 贷款手续及时间
办理住房抵押贷款的手续相对繁琐,办理时间较长。由于涉及房产评估和产权抵押等环节,整个流程通常需要10个工作日到一个月不等。然而,某些商业银行已简化程序并与房管局建立特殊审批通道,从而缩短了审批时间至3个工作日左右。
◆ 还款方式选择
在还款方式上,住房抵押贷款提供了多种选择。除了常见的等额本息和等额本金外,许多银行还推出了先息后本的还款方式。这种方式的优点在于提高资金使用率,但利率可能会相对较高。申请人应根据自身资金安排和利益考量来选择合适的还款方式。
03
点击添加图片描述(最多60个字)
编辑
贷款用途及影响
◆ 贷款用途分类
贷款用途对住房抵押贷款而言具有显著影响,它不仅关乎贷款额度、期限,还直接影响贷款利率。目前,贷款用途主要分为个人消费、生意经营及投资三类。个人消费通常最受银行青睐,因其风险较低;而生意经营用途则可能面临银行更严格的审核。至于投资用途,一般包括商品房投资和其他投资。
◆ 贷款用途对审批的影响
需注意的是,国家禁止将贷款资金挪作首付款,并严格控制贷款资金流入房地产市场。同时,对于股票、外汇、期货等高风险投资,银行通常持禁止态度,因此投资用途通过审批的概率较低。银行在审批时也会考虑借款人的职业背景,例如企业法人一般不适宜申请消费贷。此外,借款人还需提供明确的用途证明。
04
申请材料及其他注意事项
◆ 申请材料要求
房产抵押贷款的申请资料与其他贷款类型基本一致,包括身份证明、工作与收入证明、婚姻状况证明、贷款用途证明以及其他财产证明(如有)。特别需要强调的是,工作与收入情况不仅对贷款的成功申请至关重要,而且对贷款额度和期限的确定也具有重大影响。在评估抵押贷款时,除了考虑房龄因素外,工作和收入证明也是银行决策的关键依据。
◆ 其他注意事项
A、一旦房产抵押贷款办理完毕,房产的所有权将转归银行,而申请人仅享有使用权,直至贷款全部清偿。
B、房屋抵押贷款的申请人必须符合一定的年龄要求,通常介于18至65岁之间。因此,在确定贷款期限时,不仅需要考虑房龄,还需同时考虑申请人的年龄,例如,一位50岁的申请人,即便其房龄仅2年,其贷款期限也可能最多只有15年。
C、许多银行对房屋抵押贷款的提前还款设有条件。符合条件的申请人可以享受免违约金及后续不再计息的优惠。因此,在办理贷款时,务必咨询清楚相关政策,并仔细核对合同条款,以便根据个人情况选择合适的贷款期限。例如,对于提前还款条件较为宽松或代价较低的申请人,可以选择较长期的贷款期限,从而既提高资金的使用效率,又能减轻每月的还款压力。
购房指引如下:
前期准备
1.明确购房资格:
符合上海最新的购房资格,详情可拨打售楼处电话:400-8228-664售楼处电话咨询置业顾问做最终的确认
2.确定预算:
根据自己的经济实力,确定购房预算,包括首付、贷款金额以及未来的还款能力等。
3.准备材料:
身份证、户口本、结婚证(已婚人士)、收入证明、银行流水、社保或纳税证明等相关材料,以备认购和贷款时使用。
看房选房
4.电话预约:
拨打售楼处电话:400-8228-664售楼处电话,与工作人员沟通预约看房的具体日期和时间段。
5.线上官网预约:
在浏览器搜索 “古北悦公馆官方网站”,进入官网首页,找到 “预约看房” 板块,点击进入预约页面,依次填写真实有效的个人信息,然后选择预约看房的日期和时间,提交预约申请。
6.微信公众号预约:
在微信搜索 “古北悦公馆” 官方公众号并关注,进入公众号后,在菜单栏中查找预约看房的入口,点击进入预约界面,填写个人信息以及预约看房的时间,提交预约内容。
7.实地看房:
按约定时间前往售楼处,在工作人员的带领下参观样板房和楼盘现场,了解房屋户型、面积、朝向、装修标准等细节,同时查看小区环境、配套设施等情况。
8.选房:
了解清楚项目情况后,结合自己的需求和预算,选择心仪的房源。
认购签约
9.认购:
项目开启认购后,在规定时间内,携带身份证、户口本、结婚证、收入证明等材料前往售楼处进行认购,同时缴纳一定金额的认购金。
签订合同:认购成功后,在规定时间内与开发商签订购房合同,仔细阅读合同条款,包括房屋价格、付款方式、交房时间、违约责任等,确保自身权益得到保障。
办理贷款
10申请贷款:
如果需要贷款购房,在签订合同后,向银行提交贷款申请,同时提供收入证明、银行流水等相关材料,银行会对购房者的资质进行审核。
等待审批:银行审核通过后,会与购房者签订贷款合同,并确定贷款金额、利率、还款方式等。
放款:银行完成放款手续后,购房者需要按照贷款合同约定的时间和方式进行还款。
11.交房验收
交房通知:开发商在交房前会提前通知购房者交房时间和相关事宜。
验收房屋:购房者按照通知时间前往楼盘,对房屋进行验收,检查房屋的质量、装修、配套设施等是否符合合同约定,如发现问题,及时与开发商沟通解决。
办理交房手续:验收合格后,办理交房手续,缴纳契税、维修基金等相关费用,领取房屋钥匙,正式完成购房流程。
澜庭壹号院售楼处电话400-8228-664售楼处电话【营销中心】
声明:本文由入驻焦点开放平台的作者撰写,除焦点官方账号外,观点仅代表作者本人,不代表焦点立场。


