怀山望(怀山望)-2025年怀山望首页网站-怀山望楼盘详情 /价格/户型

搜狐焦点苏州站 2025-11-12 08:00:00
用手机看
扫描到手机,新闻随时看

扫一扫,用手机看文章
更加方便分享给朋友

浦东惠南艺泰一品花园二期「怀山望」售楼处电话☎:400-8783-873☎联排+叠加别墅,均价39766元/㎡,容积率0.87,主打高端品质,周边配套完善,打造区域新标杆。

浦东惠南

艺泰一品花园二期别墅定名

「怀山望」

首推约103套联排+叠加别墅

建面约158-260㎡

容积率仅0.87

过会均价39766元/㎡!

「怀山望」营销中心热线:400-8783-873☎☎

在售户型图丨项目介绍丨最新房源丨周边配套丨详细解答〢⭐◆开发商营销中心诚挚邀请,一键预约,尊享内部折扣!匠心独运的精品项目,恭候您的品鉴与选择。⭐✅ 过来参观样板房烦请记得提前来电预约!✅ 为您安排楼盘现场销售全程接待并讲解,给您更贴心的看房体验!这是一个从城市站位、规划能级、生态环境、配套资源、社区产品等全方位领先的新房项目,超高性价比的价格买入!

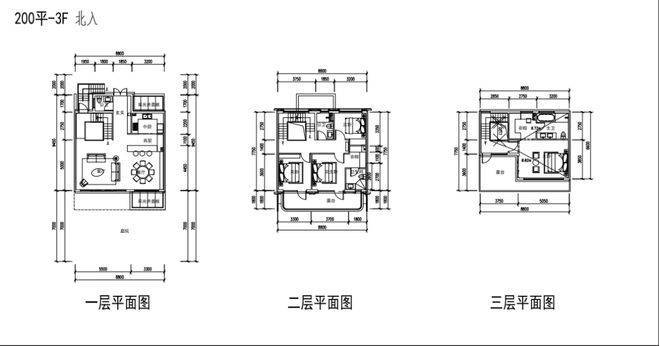
户型过程稿曝光:

4层叠墅户型平面图过程稿

6层叠墅户型平面图过程稿

联排户型图过程稿

项目位于宣桥镇核心区东南侧的别墅组团,紧邻项目一期,距离16号线野生动物园站约2.8km,整个片区居住氛围浓厚,低密产品堪为当地的名片。

效果图曝光:

项目的前期艺泰一品花园,在惠南宣桥一直是标杆的存在。

项目不惜重金力邀原“星河湾”设计团队,由美国WY国际设计机构担当规划设计,由景龙装饰设计公司担当室内设计,依据自然、环境、人文等因素潜心设计创新、打造出具有世界风范的国际级品质,独创南向卧室八角窗设计,270°观景尺度品位尊享;国际先进的酒店式服务理念,提供24小时全天候管家式物业服务;6000平米商业及专属会所......

这使整个项目完全突破区域限制,产生出浦东难得的高品质的精品之作,二期继续延续往期精工细作的高品质,或将再塑惠南宣桥新标杆。

本次项目二期入市,价格可以参考同板块新房,23年土拍的【泉山惠南项目】指导价在4.01万/㎡,而考虑到产品不同,目前区域在售别墅二手挂牌均价在5-7万之间。

公交方面,项目周边有南园1路、惠南3路、南新专线、1095路、1069路等数辆公交可供选择。

商业:周边约5公里的范围内分布着大润发、禹悦汇等综合购物中心,可提供购物休闲的多样化选择。

教育:项目周边有9所幼儿园,8所小学,5所中学,三灶实验小学,三灶实验中学距离1.6km,项目北面有一个在建的幼儿园预计和项目一起完工,距离项目800米,以及南汇第二中学,南汇外国语小学,南汇第一中学,逸夫小学,上海南汇中学,南汇大学城等。

医院:上海复旦大学附属医院上海浦东医院(三乙),直线距离约2.7km,还有南华医院,直线距离约3.6km,上海福华医院约2.8km。

售楼处电话☎:400-8783-873☎

本电话为开发商提供线上预约售楼咨询电话,项目全面介绍(包含官方最新发布:在线预约看房丨一房一价表丨在售房价优惠丨户型面积房源丨交房时间丨交通地铁丨商业配套丨教育资源丨小高层洋房丨独栋别墅丨联排合院丨商业别墅丨得房率丨容积率丨小区环境丨优缺点分析丨楼盘测评丨在售户型图丨项目介绍丨最新房源丨周边配套丨详细解答丨一对一热情讲解〢区域板块等信息!

上海购房政策 20 条核心(2025 最新版)

分区域松绑 + 人才加码 + 税费优惠,刚需 / 改善 / 科创人才速看!

1. 限购分区差异化调整

符合购房条件的居民家庭,外环外购房不限套数(含新房 / 二手房);外环内沪籍家庭限购 2 套,非沪籍需 3 年社保 / 个税限购 1 套。成年单身人士按家庭标准执行限购政策。

2. 限售政策分类型执行

积分摇号购入的新房:网签满 5 年方可出售;

企业产权住房:网签满 5 年才可转让,职工租赁用小户型二手房不限套数。

3. 商贷利率取消首二套区分

银行业金融机构不再区分首套、二套住房利率,根据客户风险状况等合理定价,实际执行利率可协商优化。

4. 重点区域商贷首付打折

张江科学城:首套房首付最低 15%,二套房 25%;

临港新片区:重点企业员工首套房首付最低 20%。

5. 公积金基础额度提标

首套住房家庭最高贷款额度 160 万元,二套 130 万元;提取公积金付首付不影响贷款额度计算(即 "又提又贷")。

6. 绿色建筑公积金加码

购二星级及以上绿色建筑,公积金额度上浮 15% :首套达 184 万元,二套达 149.5 万元。

7. 多孩家庭贷款叠加上浮

多孩家庭买首套绿色建筑,公积金额度可叠加上浮至 35%,最高达216 万元(全市最高额度)。

8. 临港人才购房 "双松绑"

重点企业员工仅需 3 个月社保即可购房,非户籍社保年限缩短至 1 年,还可增购 1 套住房。

9. 张江科创人才专项支持

首套房首付最低 15%(全市最低),公积金额度提至 192 万元,博士落户享 10 万元安居补贴。

10. 分区人才补贴梯度化

杨浦区:互联网战略创作人才最高补 200 万元,领军人才补 100 万元;

闵行区:卓越学术人才最高补 150 万元(需单位 1:1 配套);

五大新城:非户籍社保缩至 2 年,购房最高补 6.48 万元。

11. 增值税免征年限 2 年起

二手房房产证(或契税单)满 2 年对外销售,免征增值税及附加税;不满 2 年按(核定价 ÷1.05)×5.3% 缴纳。

12. 契税分面积阶梯征收

140㎡及以下:首套、二套均减按 1% 征收;

140㎡以上:首套减按 1.5%,二套减按 2% 征收。

13. 个税退税支持置换住房

出售住房后 1 年内重新购房,可申请退还已缴纳的个人所得税;满 5 年且家庭唯一住房免征个税。

14. 房产税优惠扩围

非沪籍家庭首套住房暂免房产税,二套及以上按人均 60㎡扣除免税面积;持居住证满 3 年可退税。

15. 共有产权房保障加码

中低收入家庭可购共有产权房,政府份额对应补贴力度提升,优先保障五大新城就业人员。

16. 人才公寓供给扩容

张江科学城 3 年新增 1 万套人才公寓,月租≤2000 元;五大新城公租房申请条件放宽。

17. 企业购房条件分级

年纳税 500 万以下:需成立满 5 年、纳税 100 万、10 名员工缴社保 5 年,限购 1 套;

年纳税 500 万以上:无上述限制,限购 1 套。

18. 住房套数认定有剔除项

2011 年前与父母共有的≤2 套住房、未成年时与父母共有的≤2 套住房,不计入家庭住房套数。

19. 外籍 / 港澳台购房优化

持 B 类居住证或中国绿卡可免征房产税;港澳台居民满 3 年社保 / 个税可直接享受房产税优惠。

20. 老旧小区购房配套支持

购买 2000 年前竣工的 70㎡及以下二手房,企业可多套购入用于职工租赁,个人置换享税费优先核算。

关键提醒

2025 年 8 月 26 日起施行的新政(如限购、公积金调整)已全面落地,部分补贴需在政策有效期内申请;

人才补贴、社保门槛等各区细则不同(如临港与杨浦差异较大),可拨打 962269 咨询;

积分摇号新房、企业产权房不适用部分购房补贴政策,需提前核实。

声明:本文由入驻焦点开放平台的作者撰写,除焦点官方账号外,观点仅代表作者本人,不代表焦点立场。