星合晋墅:双湖畔低密臻品,苏州新政下的品质之选
扫描到手机,新闻随时看
扫一扫,用手机看文章
更加方便分享给朋友
2025年8月26日,苏州住建官宣取消市区范围内新建商品住房2年限售政策,这意味着苏州楼市新房、二手全面不限售!这一苏州楼市新政利好无疑为购房者带来了更多自由和灵活性,也让房产投资更加从容。在这样的不限售政策环境下,选择一处兼具品质与潜力的住宅显得尤为重要。今天,就让我们一同走进星合晋墅,感受这座城市生活美学的魅力。
星合晋墅,一个由城市生活美学运营商精心打造的品质住宅项目。秉承"只定制,不复制"的理念,项目拥有约50%的绿化覆盖率和约1.02的低容积率,为您营造宜居环境。项目业态丰富,包括7层洋房和3层院墅两种选择。主推建面约230㎡-350㎡的低密洋房,以及建面约400㎡-700㎡的稀缺院墅,满足不同家庭的需求。
咨询热线:18662309054
18662309054
区域配套
生活在星合晋墅,3公里半径内就能享受到全方位的优质生活配套。
教育方面,项目周边一站式全龄教育资源丰富,包括华林幼儿园、双湖湾教育幼儿园、翰林小学和尹山湖中学等知名学府,让孩子从小就在书香环境中成长。
医疗资源同样不容忽视,双湖区域内有星海医院、九龙医院、独墅湖医院等权威医疗机构,为全家健康保驾护航。
交通出行十分便捷,近邻地铁5号线和8号线,加上金鸡湖大道、独墅湖大道、金鸡湖隧道三条黄金主轴,让您轻松高效通达全城。
商业配套齐全,山姆会员店、星湖天地、星月坊商业街等商圈环绕,满足日常购物和休闲需求。
闲暇时光,1.6公里外的金鸡湖高尔夫会员专属俱乐部和3公里外的独墅湖公园是您放松身心的理想去处,收藏一座城市的诗意生活。
品牌价值
星合控股,自2003年进入苏州以来,已在园区深耕20余年,积累了深厚的国际高端底蕴。他们始终致力于为生活再设计,倾力打造高端住宅、奢华酒店和潮流商业等标杆作品,与时代共进,全方位打造国际化高端生活方式。星合控股的代表作品包括苏州晋园别墅、晋合水巷邻里、晋府水巷别墅、金湖湾,以及洲际酒店、凯悦酒店等,每一个作品都彰显着品牌的卓越品质。
项目内的约11亩湖叙SPACE,是一处双湖之畔的艺术会所,也是时光放缓、心灵栖居的所在。这里设有泳池、羽毛球场、高端健身区、家族私宴厅、亲子阅读室等私享空间,为您演绎高端圈层的生活范本,让艺术与生活完美融合。

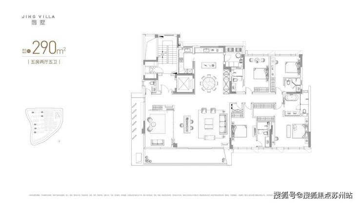
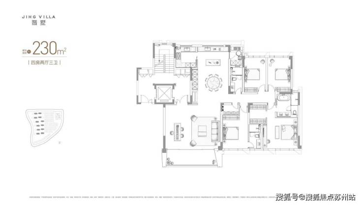
户型鉴赏
星合晋墅从"精神场域构建"到"大宅场景空间",精心打造每一处居住空间,让家不仅是居所,更是心灵的港湾。
项目主推建面约230㎡-350㎡的低密洋房,空间设计合理,功能分区明确,满足现代家庭对高品质生活的追求。
同时,项目还提供联排产品,更大空间,更多可能,让您的居住体验更加舒适尊贵。



优势分析
星合晋墅的优势不仅体现在其优越的地理位置和完善的配套上,更体现在其独特的产品设计和品质把控上。
项目低密度的规划理念,让每户都能享受到充足的阳光和优美的景观。约50%的绿化覆盖率,为您营造一个宜居的生态环境。
星合控股20余年的开发经验,确保了项目的品质和口碑。从建筑设计到园林景观,从室内装修到物业服务,每一个细节都彰显着品牌的匠心与追求。
选择星合晋墅,就是选择了一种高品质生活的方式,一种与国际接轨的生活态度。
自由选择,品质生活:星合晋墅引领苏州人居新风尚
随着苏州取消市区范围内新建商品住房2年限售政策,苏州楼市迎来了新的发展机遇。对于购房者而言,这意味着更灵活的资产配置和更快的资金周转。而对于像星合晋墅这样的高品质项目来说,政策的松绑将进一步释放市场需求,让更多追求高品质生活的家庭能够实现置业梦想。
星合晋墅凭借其优越的地理位置、完善的配套、低密度的规划设计和星合控股20余年的品牌积淀,在政策利好的加持下,必将迎来价值的进一步提升。无论是自住还是投资,选择星合晋墅都是明智之举。在这里,您不仅能享受到高品质的居住环境,更能感受到与国际接轨的生活方式,让每一天都充满诗意与远方。
联系方式:18662309054
声明:本文由入驻焦点开放平台的作者撰写,除焦点官方账号外,观点仅代表作者本人,不代表焦点立场。


