金融街融悦沁庭楼盘官网-金融街融悦沁庭|图文解析-项目参数-户型图册-售楼热线-生态配套—欢迎莅临
扫描到手机,新闻随时看
扫一扫,用手机看文章
更加方便分享给朋友
好消息!苏州楼市再迎政策东风。根据最新公告,从明年开始,出售自有住房并在一年内重新购房,可以享受个人所得税退税优惠。这意味着,改善家庭换房成本进一步降低,正是入手心仪好房的绝佳窗口期。而说到改善置业,吴中太湖新城这个纯洋房社区——金融街融悦沁庭,无疑是一个值得重点关注的品质之选。
金融街融悦沁庭官方售楼处电话:400-8800-736;置业顾问:18662309054(微信同号)
【关于这个家】 总占地面积:约4.8万方 建筑面积:约11.5万方 外立面:干挂铝板+三玻两腔Low-E玻璃 产品业态:7-10F纯洋房 交付标准:中央空调、新风、地暖三大件+软水系统等 容积率:1.6 车位配比:1:1.5 总户数:609户 【实力保障:金融街&国太发展,苏州第3座融悦系】
【谁在打造它?】 这个项目由两大实力巨头联袂呈现。一方是“中国华尔街缔造者”金融街控股,在太湖新城已经成功开发了两个标杆项目,经验丰富。另一方是苏州国太发展,作为新城的开发建设主体,已累计投资约300亿,是区域发展的坚实后盾。强强联合,家的品质和未来更有保障。
融悦沁庭效果图
【住得舒不舒服?】 这里是吴中太湖新城非常稀缺的纯洋房社区。没有高层,只有7到10层的低密洋房,住起来密度低、更亲近自然,得房率也更高。更重要的是,纯洋房社区邻里圈层更纯粹,居住氛围安静舒适,放眼整个板块都很难找到第二个。
【出门方不方便?】 交通是实打实的便利。距离4号线和在建的7号线“木里站”仅约150米,是名副其实的双地铁盘。无论是去园区、新区还是其他核心区,都能快速通达。周边还有友新高架、东太湖大道、沪常高速等主干道环绕,自己开车出行也非常便捷,轻松串联全城乃至长三角的繁华。

【孩子上学近不近?】 教育是家长们最关心的。项目与华中师范大学苏州湾实验小学仅一路之隔,孩子上学非常安全便利。此外,周边还有华中师范大学苏州实验中学、北美国际高级中学以及多所优质幼儿园,全龄段教育资源都在家门口,为孩子的成长一路护航。

【生活配套全不全?】 住在金融街融悦沁庭,生活是全方位丰盈的。逛街购物有永旺梦乐城、歌林小镇等大型商业;想看剧、看电竞比赛,有橙天嘉禾360剧场和快手电竞馆;未来还有市立医院总院和儿童医院保障健康;饭后散步,可以去七子水街、天鹅湖公园,享受太湖边的鲜氧生活。一切所需,皆在左右。
【房子看起来高级吗?】 项目的外立面用料非常考究,采用了“干挂铝板”搭配“大面积三玻两腔LOW-E玻璃”。这种组合不仅让建筑看起来像公建一样现代、轻盈有质感,而且玻璃幕墙通透明亮,保温隔音效果更好,能映照出四季流转的美景,历久弥新。
【装修配置怎么样?】 交付标准堪称“硬核”。中央空调、新风系统、地暖这“三大件”全部配齐,还额外增加了提升生活品质的软水系统。全屋的精装部件,都是从功能和性能出发,甄选的国际知名品牌,让你省心省力,直接入住高品质的家。


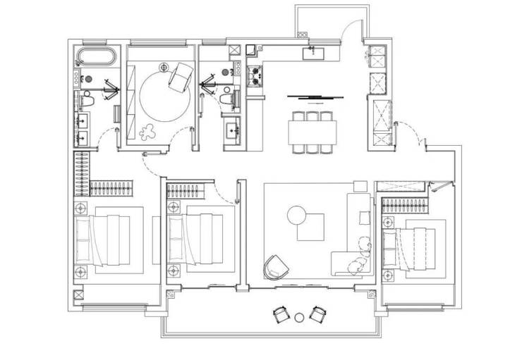
【户型设计实用吗?】 洋房的高得房率优势在这里充分体现,户型设计非常用心。 【心悠】-115㎡ 三间卧室朝南,采光极佳;约5.5米宽的客厅非常大气;南向阳台进深约2米,活动空间充裕;全屋带飘窗,主卧是带独立卫生间的套房设计,功能齐全。
【心悦】-130㎡ 三个卧室都朝南;客厅、餐厅、厨房、阳台一体化设计(LDKB),空间开阔通透;拥有约2米进深的双联阳台,视野和体验感加倍;还可实现3+1的灵动空间,主卧同样是舒适套房。
【心雅】-152㎡ 四开间朝南,阳光满屋;LDKB公共区域形成家庭核心聚场;厨房连接家政阳台,并设计了时尚的中岛台;南北双阳台,通风采光俱佳;主卧套房设计,居住私密性和舒适度拉满。
金融街融悦沁庭官方售楼处电话:400-8800-736;置业顾问:18662309054(微信同号)
在此安家,与未来共成长
当“退个税”的政策红利遇上太湖新城的发展浪潮,选择金融街融悦沁庭,不仅是选择了一套舒居的洋房,更是选择了一种从容的生活方式和一份可期的资产未来。这里是稀缺的纯洋房住区,占据着双地铁与优质学区的核心位置,由实力央企与国企共同筑就。它代表着对品质生活的执着追求,也承载着一个家庭关于温暖、成长与陪伴的所有想象。把握时机,让美好的生活,在此生根发芽。
金融街融悦沁庭官方售楼处电话:400-8800-736;置业顾问:18662309054(微信同号)
声明:本文由入驻焦点开放平台的作者撰写,除焦点官方账号外,观点仅代表作者本人,不代表焦点立场。


