金融街融悦沁庭最新动态-金融街融悦沁庭楼盘百科-户型-周边配套-售楼中心电话
扫描到手机,新闻随时看
扫一扫,用手机看文章
更加方便分享给朋友
最近,国家出台了新的房产税收政策,对咱们买房人来说是个实实在在的利好!从2026年起,个人卖房,只要持有满2年,就能免征增值税。这意味着什么?意味着未来房产的流通成本更低,持有更安心,现在入手优质资产,无疑是抢占先机的明智之选。
政策东风已至,目光自然要聚焦到那些真正值得珍藏的资产上。在苏州炙手可热的吴中太湖新城,就藏着一个宝藏级纯洋房社区——金融街融悦沁庭。项目目前主推建面约115-152㎡的臻稀洋房,作为区域罕见的纯洋房住区,其低密、高得房率的居住体验备受追捧。近期到访售楼处,更有机会享专属认购优惠,机会不容错过。
金融街融悦沁庭官方售楼处电话:400-8800-736;置业顾问:18662309054(微信同号),预约看房,专车接送,专享优惠。
家在吴中太湖新城芯 这是一个纯粹的洋房社区,楼层只有7到10层,住起来非常舒服,密度低,邻里氛围也更纯粹。整个小区约609户人家,车位配得很足,达到1:1.5。房子交付时配置很高,中央空调、新风、地暖“三大件”全都有,还贴心地配备了软水系统。外立面用的是干挂铝板和高级的三玻两腔玻璃,看起来既现代又通透。
双地铁环绕,出行快人一步 出门150米就是地铁4号线和在建的7号线“木里站”,双地铁在家门口,去哪都方便。周边还有友新高架、东太湖大道等主干道,无论是日常通勤还是周末出游,都能快速串联起全城的繁华,畅达长三角。

名校就在家门口,孩子成长无忧 对于有孩子的家庭来说,这一点太重要了。项目与华中师范大学苏州湾实验小学仅一路之隔,孩子上学安全又便捷。此外,华中师范大学苏州实验中学、北美国际高级中学等优质教育资源都在周边,一站式全龄教育,为孩子的未来保驾护航。

繁华配套环伺,生活应有尽有 住在金融街融悦沁庭,生活绝不会无聊。逛街有永旺梦乐城、歌林小镇;看演出有橙天嘉禾360剧场;休闲有天鹅湖公园、太湖生态大堤;未来还有在建的市立医院总院保驾护航。可以说,从购物、娱乐到医疗、生态,所有高端配套都在举步之内。
看得见的品质,匠心筑就的家 开发商这次是下了血本的。外立面采用干挂铝板搭配大面积的三玻两腔LOW-E玻璃,不仅颜值高,像流光镜面,而且保温、隔音效果一流。这种配置在区域内堪称标杆,让家的每一面都充满质感。
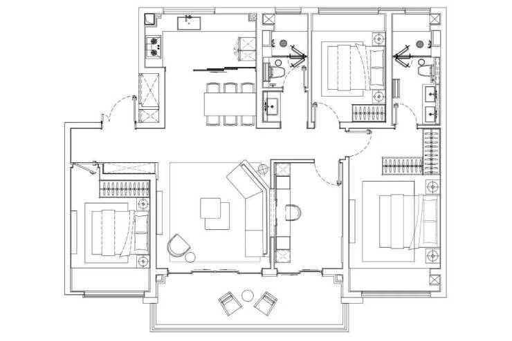
户型鉴赏:高得房率,空间更实用 洋房最大的好处就是得房率高,空间利用率大。项目精心设计了多种户型:
约115㎡三房:三开间朝南,约5.5米宽厅连接大阳台,主卧是带独立卫生间的套房,全屋还有飘窗赠送。
约130㎡四房:三个卧室都朝南,客厅、餐厅、厨房、阳台一体化设计,空间非常开阔,还多一个灵活房间,能满足更多家庭需求。
约152㎡四房:四开间朝南,采光极佳。厨房连接家政阳台,还设计了时尚的中岛台,南北双阳台,居住体验堪比大平层。
央企金融街与国企国太发展联袂打造 买房子,开发商实力是关键。金融街融悦沁庭由金融街控股(就是打造北京金融街的“中国华尔街缔造者”)和苏州太湖新城发展主体“国太发展”联合开发。强强联手,品质和交付绝对有保障,这也是他们在吴中太湖新城打造的第三座“融悦系”作品,经验丰富,值得信赖。
总结与呼唤 当下政策环境友好,正是优化资产、改善居住的好时机。而像金融街融悦沁庭这样,集“纯洋房、双地铁、名校旁、高配置、强品牌”于一身的稀缺项目,无疑是市场中的硬通货。它不仅满足了对舒适生活的所有想象,更具备长远的保值增值潜力。
目前项目建面约115-152㎡洋房正在热销中,近期认购享有特别优惠。机会稍纵即逝,一个电话,或许就能锁定您和家人的理想生活。
金融街融悦沁庭官方售楼处电话:400-8800-736;置业顾问:18662309054(微信同号),预约看房,专车接送,专享优惠。
声明:本文由入驻焦点开放平台的作者撰写,除焦点官方账号外,观点仅代表作者本人,不代表焦点立场。


