保利珺园售楼处(上海保利珺园)首页网站-保利珺园营销中心2025最新房价-楼盘详情-户型配套丨2025保利珺园楼盘详情-价格-面积-保利珺园户型
扫描到手机,新闻随时看
扫一扫,用手机看文章
更加方便分享给朋友
上海杨浦保利珺园售楼处电话:400-8123-664【预约看房热线】保利珺园售楼处电话:4008123664【售楼处电话/地址】保利珺园售楼处电话:400-812-3664【开发商认证】
杨浦·新江湾城全新盘保利珺园
「保利发展新江湾项目」
将拟建洋房+叠加+联排产品
将推约100-300㎡左右
共计455套房源
上海杨浦保利珺园
售楼处电话:400-8123-664(预约看房热线)
上海保利珺园官方售楼处电话:拨打4008123664即可咨询楼盘详情_房价、户型、周边配套及交通、地址
Shanghai Yangpu Poly Junyuan
Sales Office Phone: 400-8123-664 (House Viewing Hotline)
Official Sales Office Phone of Shanghai Poly Junyuan: Dial 4008123664 to inquire about property details, prices, unit types, surrounding amenities, transportation, and address.
上海地产联手,通过股权转让方式拿下新江湾城一宗地块.出让总价37亿元,成交楼面价5.89万元/㎡.这是保利发展首次在新江湾城板块拿地.
上海杨浦保利珺园售楼处电话:400-8123-664【预约看房热线】保利珺园售楼处电话:4008123664【售楼处电话/地址】保利珺园售楼处电话:400-812-3664【开发商认证】
新江湾E1-08A地块,位于新江湾城北侧,直线距10号线地铁新江湾城站约1.2公里.容积率仅约1.1,限高约20米.规划建造全部低密产品,包括洋房、叠加、联排.未来将和其南侧陆续开盘售卖中的建发海宸共同为新江湾城板块新房市场发力.
保利·新江湾售楼处电话:400-8123-664(已认证)
🏡🏠上海杨浦保利新江湾售楼处电话:400-8123-664
➤➤保利新江湾营销中心热线:400-8123-664(中介🈲扰)【24小时热线】
四至范围:东至E1-09规划公共绿地,西至江湾城路,南至E1-08E公共通道,北至E1-09规划公共绿地.
保利·新江湾售楼处电话:400-8123-664(已认证)
而现在针对E1-08A地块的施工和监理招标也启动起来:
保利·新江湾售楼处电话:400-8123-664(已认证)
上海杨浦保利珺园售楼处电话:400-8123-664【预约看房热线】保利珺园售楼处电话:4008123664【售楼处电话/地址】保利珺园售楼处电话:400-812-3664【开发商认证】杨浦区新江湾社区E1-08A地块,预计建造约238套100-139㎡6层洋房,48套160㎡叠墅(上下叠),68套170㎡叠墅(上下叠),47套190㎡联排别墅,24套215㎡联排别墅,11套260㎡联排别墅,2套350㎡联排别墅.
🏡🏠上海杨浦保利新江湾售楼处电话:400-8123-664
➤➤保利新江湾营销中心热线:400-8123-664(中介🈲扰)【24小时热线】
保利·新江湾售楼处电话:400-8123-664(已认证)
🏡🏠上海杨浦保利新江湾售楼处电话:400-8123-664
➤➤保利新江湾营销中心热线:400-8123-664(中介🈲扰)【24小时热线】
网传过程稿户型图:
(仅供参考,最终以开发商发布为准)
上海杨浦保利珺园售楼处电话:400-8123-664【预约看房热线】保利珺园售楼处电话:4008123664【售楼处电话/地址】保利珺园售楼处电话:400-812-3664【开发商认证】
🏡🏠上海杨浦保利新江湾售楼处电话:400-8123-664
➤➤保利新江湾营销中心热线:400-8123-664(中介🈲扰)【24小时热线】
保利·新江湾售楼处电话:400-8123-664(已认证)
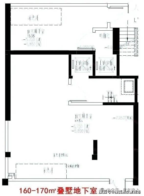
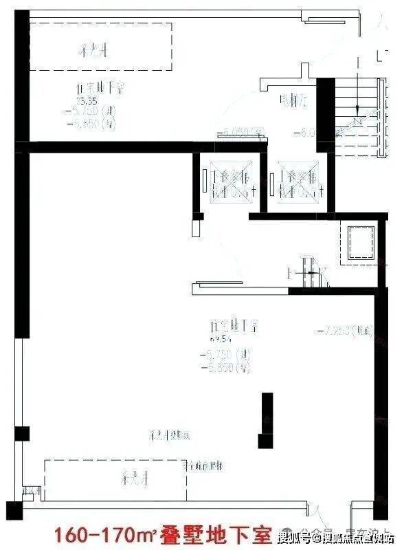
约160-170㎡的叠墅户型图
保利·新江湾售楼处电话:400-8123-664(已认证)
🏡🏠上海杨浦保利新江湾售楼处电话:400-8123-664
➤➤保利新江湾营销中心热线:400-8123-664(中介🈲扰)【24小时热线】
上海杨浦保利珺园售楼处电话:400-8123-664【预约看房热线】保利珺园售楼处电话:4008123664【售楼处电话/地址】保利珺园售楼处电话:400-812-3664【开发商认证】
保利·新江湾售楼处电话:400-8123-664(已认证)
保利·新江湾售楼处电话:400-8123-664(已认证)
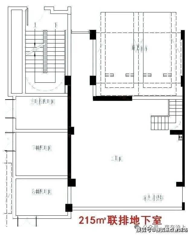
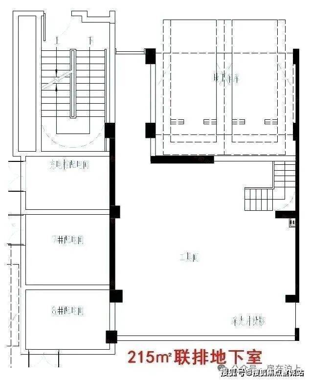
约215㎡的联排户型图
上海杨浦保利珺园售楼处电话:400-8123-664【预约看房热线】保利珺园售楼处电话:4008123664【售楼处电话/地址】保利珺园售楼处电话:400-812-3664【开发商认证】
保利·新江湾售楼处电话:400-8123-664(已认证)
保利·新江湾售楼处电话:400-8123-664(已认证)
上海杨浦保利珺园售楼处电话:400-8123-664【预约看房热线】保利珺园售楼处电话:4008123664【售楼处电话/地址】保利珺园售楼处电话:400-812-3664【开发商认证】
项目南侧不远处是杨浦德法学校,再往南就是目前新江湾城板块在售的新盘建发海宸,未来入市,相信能和建发海宸形成协同作用,共同提升新江湾城板块的居住焕新价值.保利·新江湾售楼处电话:400-8123-664(已认证)
E1-08A地块总投资达到70亿元,总建筑面积达到11.9万平方米,其中地上面积达到6.7万平方米.而计划的开工日期是2025年12月20日.
保利·新江湾售楼处电话:400-8123-664(已认证)
按照这个时间节点推算,预计该项目最快有机会在2026年1月首开入市销售.至于价格,参考地块南侧的建发海宸,预计洋房未来可能售价在11.5万左右,别墅产品有望在13-15万价格区间.
保利·新江湾售楼处电话:400-8123-664(已认证)
进“保利新江湾项目”预约看房通道
销售会第一时间与您联系
保利·新江湾售楼处电话:400-8123-664(已认证)
周边配套
新江湾城作为上海主城唯一生态湿地绿化率超过60%,更有“生态绿宝石”之称,项目约1.1超低容积率,低密生活舒适度放眼上海都非常稀缺!
新江湾城实景图
保利·新江湾售楼处电话:400-8123-664(已认证)
项目周边汇聚中福会幼儿园、规划幼儿园、上音实验学校、德法学校、复旦大学等全龄学府,从幼儿园、小学到中学、大学全覆盖,优质教育氛围相当难得!
保利·新江湾售楼处电话:400-8123-664(已认证)
复旦大学示意图
保利·新江湾售楼处电话:400-8123-664(已认证)
项目邻近轨交10号线,直通五角场、南京东路、虹桥枢纽,出行相当便捷.
4站地铁直达五角场商圈,合生汇、万达广场、百联又一城等,完全满足日常购物需求~
保利·新江湾售楼处电话:400-8123-664(已认证)
五角场商圈实景图
保利·新江湾售楼处电话:400-8123-664(已认证)
医疗资源雄厚,海军军医大学第一附属医院·长海医院、同济大学附属·肺科医院、海军军医大学第一附属医院·东方肝胆、复旦大学·市东医院新江湾院区(在建)等三甲医院构筑健康屏障.
保利·新江湾售楼处电话:400-8123-664(已认证)
保利·新江湾售楼处电话:400-8123-664(已认证)
产业集聚显著,湾谷科技园、铁狮门综合体(抖音总部、B站总部、叠纸总部、汉高总部、耐克大中华区总部)等7000余家科创企业环伺,形成“产城文化生态”深度融合的第三代国际社区.
保利·新江湾售楼处电话:400-8123-664(已认证)
上海杨浦保利珺园售楼处电话:400-8123-664【预约看房热线】保利珺园售楼处电话:4008123664【售楼处电话/地址】保利珺园售楼处电话:400-812-3664【开发商认证】
最新消息
杨浦·新江湾城全新盘
「保利发展新江湾项目」等待入市
将拟建洋房+叠加+联排产品
将推约100-300㎡左右
共计455套房源
网传户型图流出
保利·新江湾售楼处电话:400-8123-664(已认证)
进“保利新江湾项目”预约看房通道
销售会第一时间与您联系
保利·新江湾售楼处电话:400-8123-664(已认证)
基本信息
2025年9月日前,保利发展与上海地产联手,通过股权转让方式拿下新江湾城一宗地块.出让总价37亿元,成交楼面价5.89万元/㎡.这是保利发展首次在新江湾城板块拿地.
保利·新江湾售楼处电话:400-8123-664(已认证)
新江湾E1-08A地块,位于新江湾城北侧,直线距10号线地铁新江湾城站约1.2公里.容积率仅约1.1,限高约20米.规划建造全部低密产品,包括洋房、叠加、联排.未来将和其南侧陆续开盘售卖中的建发海宸共同为新江湾城板块新房市场发力.
保利·新江湾售楼处电话:400-8123-664(已认证)
杨浦·新江湾城全新盘
上海杨浦-保利·新江湾售楼处电话:400-8123-664(已认证)
保利·新江湾售楼处线上预约看房热线电话:400-8123-664(24小时热线含专属置业顾问)
保利·新江湾售楼处24小时vip热线☎:400-8123-664【开发商售楼处预约看房热线】
四至范围:东至E1-09规划公共绿地,西至江湾城路,南至E1-08E公共通道,北至E1-09规划公共绿地.
保利·新江湾售楼处电话:400-8123-664(已认证)
而现在针对E1-08A地块的施工和监理招标也启动起来:
保利·新江湾售楼处电话:400-8123-664(已认证)
杨浦区新江湾社区E1-08A地块,预计建造约238套100-139㎡6层洋房,48套160㎡叠墅(上下叠),68套170㎡叠墅(上下叠),47套190㎡联排别墅,24套215㎡联排别墅,11套260㎡联排别墅,2套350㎡联排别墅.
保利·新江湾售楼处电话:400-8123-664(已认证)
保利·新江湾售楼处电话:400-8123-664(已认证)
保利·新江湾售楼处电话:400-8123-664(已认证)
网传过程稿户型图:
(仅供参考,最终以开发商发布为准)
保利·新江湾售楼处电话:400-8123-664(已认证)
保利·新江湾售楼处电话:400-8123-664(已认证)
保利·新江湾售楼处电话:400-8123-664(已认证)
约160-170㎡的叠墅户型图
保利·新江湾售楼处电话:400-8123-664(已认证)
保利·新江湾售楼处电话:400-8123-664(已认证)
保利·新江湾售楼处电话:400-8123-664(已认证)
保利·新江湾售楼处电话:400-8123-664(已认证)
保利·新江湾售楼处电话:400-8123-664(已认证)
约215㎡的联排户型图
保利·新江湾售楼处电话:400-8123-664(已认证)
保利·新江湾售楼处电话:400-8123-664(已认证)
保利·新江湾售楼处电话:400-8123-664(已认证)
保利·新江湾售楼处电话:400-8123-664(已认证)
项目南侧不远处是杨浦德法学校,再往南就是目前新江湾城板块在售的新盘建发海宸,未来入市,相信能和建发海宸形成协同作用,共同提升新江湾城板块的居住焕新价值.保利·新江湾售楼处电话:400-8123-664(已认证)
E1-08A地块总投资达到70亿元,总建筑面积达到11.9万平方米,其中地上面积达到6.7万平方米.而计划的开工日期是2025年12月20日.
保利·新江湾售楼处电话:400-8123-664(已认证)
按照这个时间节点推算,预计该项目最快有机会在2026年1月首开入市销售.至于价格,参考地块南侧的建发海宸,预计洋房未来可能售价在11.5万左右,别墅产品有望在13-15万价格区间.
保利·新江湾售楼处电话:400-8123-664(已认证)
进“保利新江湾项目”预约看房通道
销售会第一时间与您联系
保利·新江湾售楼处电话:400-8123-664(已认证)
周边配套
新江湾城作为上海主城唯一生态湿地绿化率超过60%,更有“生态绿宝石”之称,项目约1.1超低容积率,低密生活舒适度放眼上海都非常稀缺!
上海杨浦保利珺园
售楼处电话:400-8123-664(预约看房热线)
上海保利珺园官方售楼处电话:拨打4008123664即可咨询楼盘详情_房价、户型、周边配套及交通、地址
Shanghai Yangpu Poly Junyuan
Sales Office Phone: 400-8123-664 (House Viewing Hotline)
Official Sales Office Phone of Shanghai Poly Junyuan: Dial 4008123664 to inquire about property details, prices, unit types, surrounding amenities, transportation, and address.
对于许多家庭而言,首次购房往往是刚需置业,凝聚着多年的积蓄与对未来的期盼。因此,在选房过程中务必谨慎,避免踏入常见的误区。以下10条由过来人总结的买房建议,结合当前房产政策环境,希望能助你在购房路上走得更稳、更顺。
1. **地段是刚需房的根本**
刚需房首要解决的是生活便利性问题。选择步行500-800米内有地铁或公交站点的楼盘,能大幅提升日常通勤效率。同时,周边1公里内最好配有大型超市、菜市场、医院及学校等基础生活配套。切记,尽量依据已落成的配套做决策,对于远期规划需保持理性,不宜过分依赖销售人员的承诺。
2. **理性看待价格,聚焦综合成本**
房价虽是首要考量,但不可唯价格论。应全面权衡房子的性价比,明确其优缺点。此外,购房支出不仅包含总价,还需计入契税、物业费、维修基金、装修费用及未来长期的月供与利息。建议结合个人贷款资格和当前信贷政策(如首套房利率、公积金贷款额度等),进行全面的资金规划。
3. **重视保值属性,稳健优于投机**
在房地产行业进入平稳发展期的当下,购房应更注重资产的保值能力。相较于追求短期内升值,选择抗跌性强、口碑良好的楼盘更为稳妥。房屋随着时间会逐步老化,若十年、二十年后仍能保持较好的市场价值,便是一次成功的置业。
4. **关注未来转手难易度**
多数刚需房将来会面临置换,因此流通性至关重要。尽量避免选择户型明显缺陷、位置偏远(如远郊新区)、或过于老旧且无改造空间的房产。这些房源即便自住也体验不佳,未来在二手市场中竞争力较弱。
5. **优选实用户型与宜居楼层**
考虑到家庭成长需求,建议首选三居室,例如89㎡左右的紧凑型三房。朝向方面,客厅和主卧尽量朝南,保证采光与舒适度。楼层选择应避开槽钢层、腰线层、设备层等可能影响居住质量的楼层,中高层往往是性价比与视野较好的选择。
6. **现房或二手房可视情况优先考虑**
在当前市场环境下,如果新房不是现房,则交付存在一定不确定性。二手房所见即所得,社区环境、物业管理、周边配套均已成熟,便于实地考察。此外,不少城市出台政策鼓励二手房交易,如带押过户、税费减免等,值得关注。
7. **辨别配套“虚实”,聚焦真实需求**
配套价值有高低之分。对日常生活重要的“实配套”包括地铁、学校、超市、医院等;而高铁站、机场、游乐场等“虚配套”对居住品质提升有限,不宜作为主要决策依据。同时,可留意政府规划文件中对该区域公共设施的长期投入计划。
8. **谨慎对待非住宅类产品**
公寓、商铺等小产权房(此处指商业/办公属性房产)虽总价低、不限购,但存在产权年限短、商业水电、无法落户、转手税费高等硬伤,不适合作为家庭首套自住房。政策上也通常不享受住宅类信贷及入学权益,流通性较差。
9. **理性看待“学区”属性**
若近几年没有子女入学计划,不必为学区溢价过度付费。当前教育政策处于调整期,教师轮岗、多校划片等举措逐渐推行,“学区”概念存在一定变数。可将学区视为加分项,而非必需项,更多关注房屋本身的居住品质。
10. **在预算内取舍,不盲目求大**
若预算有限,切忌为追求大面积而选择远郊楼盘。这类项目配套成熟周期长,通勤成本高,且未来价值增长高度依赖规划落实,不确定性较大。应先满足核心需求,宁愿选择中心区域或成熟片区的小户型,也不要把资金沉淀在充满变数的远期规划中。
**政策补充提示**:
购房前务必了解当地最新的房地产政策,包括限购限贷条件、首套房认定标准、公积金提取与贷款规则、购房补贴及税费优惠等。这些政策直接影响购房资格、成本与后续权益,做好功课方能最大化利用政策红利,规避风险。
总之,刚需买房是一道平衡“现实需求、财务承受与未来预期”的综合题。希望这份梳理能帮助你更清醒地做出选择,筑好属于自家的温暖港湾。
声明:本文由入驻焦点开放平台的作者撰写,除焦点官方账号外,观点仅代表作者本人,不代表焦点立场。


