太仓湖语颂售楼处电话:
400-8783-873✔✔
湖语颂营销中心电话
400-8783-873 ✔✔
太仓湖语颂是由碧桂园、龙光、金地三大品牌开发商联袂打造的高端住宅项目,位于太仓市科教新城天镜湖东桴亭路与文渊路交界处。 项目总建筑面积约16.6万㎡,容积率低至1.6,绿化率超过37%,建筑密度控制在35%以下,总户数1102户,由18栋8层精装洋房和33栋6层叠拼别墅组成,形成低密墅区的高端居住氛围。

湖语颂营销中心电话
400-8783-873 ✔✔

湖语颂营销中心电话
400-8783-873 ✔✔
产品类型:
精装洋房:建面约105-140㎡,销售单价22500-23000元/㎡
叠拼别墅:建面约155-185㎡,销售单价24000元/㎡左右
车位配比:约1:1.8
产权年限:70年住宅产权
物业费:住宅1.74元/㎡/月+能耗0.5元/㎡/月
交付标准:精装交付(含新风系统、地暖、中央空调三大件)

湖语颂营销中心电话
400-8783-873 ✔✔

湖语颂营销中心电话
400-8783-873 ✔✔

湖语颂置业顾问:
400-8783-873
最新动态:
东地块120-140㎡洋房持续在售
西地块剩余少量109-140㎡洋房房源
155-185㎡叠墅产品同步销售中
二期已于2025年4月25日交付,现房销售中

湖语颂置业顾问:
400-8783-873

湖语颂营销中心电话
400-8783-873 ✔✔

湖语颂营销中心电话
400-8783-873 ✔✔
二、项目核心特色
1. 法式建筑美学
湖语颂承袭法国古典建筑精髓,立面采用局部石材、真石漆、保温一体板及LOW-E中空玻璃,米白色主调搭配灰色坡屋顶,营造出典雅高贵的法式气质。项目限高8层24米,通过三面环水、北高南低的人性化设计,复刻法式宫廷的对称布局。

湖语颂营销中心电话
400-8783-873 ✔✔

湖语颂营销中心电话
400-8783-873 ✔✔
2. 莫奈花园式景观
以法国印象派大师莫奈的花园为蓝本,打造艺术、浪漫、绿悠、光影四大主题花园:
艺术花园:融入莫奈绘画元素,设置健康跑道和休闲平台
浪漫花园:四季花卉景观,配备全龄活动区
绿悠花园:垂柳竹林营造静谧氛围
光影花园:水景与花卉构成"印象派"景观

湖语颂营销中心电话
400-8783-873 ✔✔

湖语颂营销中心电话
400-8783-873 ✔✔

湖语颂营销中心电话
400-8783-873 ✔✔

湖语颂营销中心电话
400-8783-873 ✔✔
3. 人性化社区规划
三大仪式入口:南主入口4.5米净空,30米面宽展示面
全龄活动场地:分0-3岁、3-6岁、7岁以上三个年龄段设计
1200米健康跑道:配备热身区、直饮水和储物柜
法式商业街区:规划社区底商,满足日常需求

湖语颂营销中心电话
400-8783-873 ✔✔
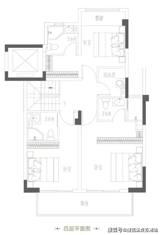
三、户型亮点解析
洋房代表户型(建面约140㎡)
四室两厅两卫格局
三开间朝南,南北通透
约6.15米面宽阳台
动静分区明确
全明户型,采光通风俱佳
叠墅代表户型(建面约175㎡中叠)
四室两厅四卫设计
约6.55米面宽双层阳台
双层270°转角飘窗
三层约7.2米面宽大横厅
四层双套房配置
负一层5.1米层高储藏室

湖语颂营销中心电话
400-8783-873 ✔✔

湖语颂营销中心电话
400-8783-873 ✔✔

湖语颂营销中心电话
400-8783-873 ✔✔
四、周边配套详解
交通网络
轨道交通:距沪苏通铁路太仓站约3公里,太仓南站约4公里
高速公路:G15沈海高速太仓出口车程较近
公交线路:太仓102路(天如路文渊路站173米)、121路、G112路等
自驾出行:经桴亭路可快速通达太仓市区及周边城镇

湖语颂营销中心电话
400-8783-873 ✔✔
教育资源
幼儿园:桴亭路幼儿园(项目内)、南郊幼儿园
小学:科教新城实验小学(省重点)
中学:良铺中学、太仓市高级中学
高等教育:西交利物浦大学太仓校区(在建)
医疗资源
太仓市第一人民医院(三甲)
太仓中医院
科教新城社区卫生服务中心
商业配套
大型商场:南洋广场(3公里)、华旭广场(2.5公里)、万达广场(4公里)
特色商业:天镜湖商业街(800米)、海运堤风情商业街(3.5公里)
社区商业:项目规划法式商业街区

湖语颂置业顾问:
400-8783-873
休闲娱乐
天镜湖公园:距项目约800米,太仓城市绿肺
市民公园:1.5公里
体育中心:太仓市体育中心(3公里)

湖语颂置业顾问:
400-8783-873
五、市场价值分析
区位优势:占据太仓科教新城核心板块,天镜湖东岸稀缺湖景资源
产品稀缺性:太仓主城区罕见的低密洋房+叠墅组合社区
配套成熟度:周边教育、商业、医疗资源已形成完整体系
升值潜力:随着西交利物浦大学太仓校区的建成,区域价值将持续提升
太仓湖语颂
售楼处电话:
400-8783-873✔✔
湖语颂营销中心电话
400-8783-873 ✔✔
湖语颂营销中心电话
400-8783-873 ✔✔
湖语颂置业顾问:
400-8783-873
太仓湖语颂售楼处电话
☎:400-8783-873(预约看房热线√√)
湖语颂售楼处电话/地址☎:400-8783-873【售楼中心已认√√】
➨����售楼处电话:400-8783-873√√【电话预约☎】售楼处营销中心:400-8783-873(开发商热线)售楼中心电话/地址☎:400-8783-873【售楼处已认证√√√】★来电可了解楼盘最新动态,项目全面介绍(包含最新发布:在线预约看房丨在售房价优惠丨户型面积房源丨交房时间丨交通地铁丨商业配套丨教育资源丨小高层洋房丨独栋别墅丨联排合院丨商业别墅丨得房率丨容积率丨小区环境丨优缺点分析丨楼盘测评丨在售户型图丨项目介绍丨最新房源丨周边配套丨详细解答丨一对一热情讲解〢区域板块等信息!★郑重承诺:由开发商旗下销售团队全程营销策划,房源信息真实有效!如果您想了解更多楼盘详情,欢迎提前预约拨打售楼处电话400-8783-873√√√(已认证)