星合晋墅:园区低密生活典范,政策春风下的品质之选
扫描到手机,新闻随时看
扫一扫,用手机看文章
更加方便分享给朋友
近期,楼市利好政策频出,首套房贷款利率持续下调,为刚需购房者减轻了不小的经济压力;部分城市适度放宽了限购政策,让更多家庭有机会置业安家;契税补贴和人才购房补贴等政策也相继出台,为购房者提供了实实在在的优惠。这些政策的叠加效应,无疑为房地产市场注入了新的活力,也为有置业需求的朋友创造了更好的购房环境。
在这样的政策背景下,选择一处既能满足生活品质,又具备升值潜力的苏州园区楼盘显得尤为重要。今天,就为大家介绍一个位于苏州园区的优质项目——星合晋墅,它不仅拥有得天独厚的地理位置,更以其独特的产品设计和完善的配套,成为当下置业的热门选择。
基本信息
【星合】城市生活美学运营商 只定制 不复制
【项目】约50%绿化覆盖率/容积率约1.02
【业态】洋房(7F)+院墅(3F)
【面积】主推建面约230㎡-350㎡低密洋房;约400㎡-700㎡稀缺院墅。
咨询热线:18662309054
星合晋墅项目位于苏州园区,是一个真正意义上的低密度社区。整个小区的绿化覆盖率达到了50%,这意味着你走在小区里,就像漫步在一个大花园里。容积率只有1.02,这在寸土寸金的园区来说是非常难得的,意味着每户都能享受到更宽敞的空间和更好的采光通风。项目由7层的洋房和3层的院墅组成,面积从230平方米到700平方米不等,无论是三代同堂还是追求品质生活的家庭,都能找到适合自己的户型。
18662309054
区域配套
全维优质配套随心享 约3公里黄金繁华境
一站式全龄教育 书香涵养未来
涵盖幼小初知名学府,华林幼儿园(东华林街)、双湖湾教育幼儿园、翰林小学、尹山湖中学等。
优质医疗资源 全时护航健康
双湖区域内,集聚星海医院、九龙医院、独墅湖医院等权威医疗。
双轨三轴枢纽 高效通达全城
近邻5号&8号地铁,金鸡湖大道、独墅湖大道、金鸡湖隧道三条黄金主轴。
文娱商圈荟萃 国际生活的烟火气
山姆会员店、星湖天地、星月坊商业街等。
与公园为邻 收藏一座城的诗意
1.6KM金鸡湖高尔夫会员专属俱乐部、3KM独墅湖公园等休闲绿境。
住在星合晋墅,生活真的太方便了!孩子上学不用愁,家门口就有华林幼儿园、双湖湾教育幼儿园,还有翰林小学和尹山湖中学,从幼儿园到中学都能就近解决。健康方面也不用担心,星海医院、九龙医院、独墅湖医院都在附近,看病就医非常方便。出行更是四通八达,5号和8号地铁线就在附近,加上金鸡湖大道、独墅湖大道和金鸡湖隧道这三条主干道,无论去哪里都很便捷。周末想逛街购物,山姆会员店、星湖天地、星月坊商业街都在3公里范围内,满足你的一切购物需求。喜欢运动的朋友有福了,1.6公里外就是金鸡湖高尔夫会员专属俱乐部,3公里外还有独墅湖公园,平时散步、运动都非常方便。这里正是苏州园区房产的理想选择,完善的配套让生活更加便利。
品牌价值
星合控股 国际高端底蕴 为生活再设计
2003年进入苏州,深耕园区20余载,倾力打造高端住宅、奢华酒店、潮流商业标杆作品,与时代共进,全维打造国际化高端生活方式。代表作品:苏州晋园别墅|晋合水巷邻里|晋府水巷别墅|金湖湾|洲际酒店|凯悦酒店等
说起星合控股,在苏州可以说是家喻户晓了。他们从2003年就开始在苏州发展,到现在已经有20多年的历史了,可以说是真正懂苏州、懂园区的开发商。星合控股一直专注于打造高端住宅、奢华酒店和潮流商业,他们的作品在苏州都是标杆级别的,比如晋园别墅、晋合水巷邻里、晋府水巷别墅、金湖湾,还有大家熟知的洲际酒店、凯悦酒店等。选择星合晋墅,就是选择了一种高品质的生活方式,选择了一种有保障的居住体验。作为苏州园区楼盘的佼佼者,星合控股的品牌实力为房产增值提供了有力保障。
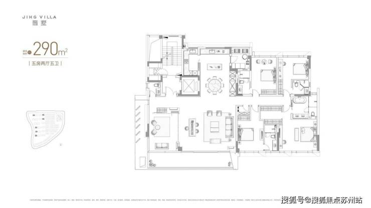
户型鉴赏
从"精神场域构建"到"大宅场景空间"
建面约230㎡-350㎡低密洋房
联排产品



星合晋墅的户型设计真的让人眼前一亮!他们不只是简单地盖房子,而是从"精神场域构建"的角度出发,打造真正适合现代家庭生活的"大宅场景空间"。低密洋房面积从230平方米到350平方米,空间布局非常合理,无论是三代同堂还是多孩家庭,都能找到最适合自己的生活方式。每一户都做到了南北通透,采光和通风都非常好,而且每个房间的大小和位置都经过精心设计,确保每个家庭成员都有自己的私密空间。
院墅产品更是让人惊叹,面积从400平方米到700平方米,每一套都是稀缺的珍品。想象一下,拥有一个带花园的院子,平时可以在里面种花养草,周末约上三五好友在院子里烧烤聊天,这种生活真的是太惬意了!而且院墅的设计充分考虑了现代人的生活需求,无论是老人房、儿童房还是主人套房,都做到了极致的舒适和私密。作为苏州园区楼盘中的精品,星合的户型设计充分体现了高端住宅的品质。
优劣势分析
优势:
低密度社区,绿化率高,居住舒适度极佳
地理位置优越,配套完善,生活便利
开发商品牌实力强,品质有保障
户型设计合理,空间利用率高
周边环境优美,公园、高尔夫等休闲设施丰富
劣势:
价格相对较高,适合有一定经济实力的购房者
项目体量不大,选择相对有限
部分户型面积较大,可能不适合小家庭
总的来说,星合晋墅项目是一个定位高端的优质楼盘,适合追求生活品质、有一定经济实力的家庭。虽然价格相对较高,但从长远来看,无论是自住还是房产投资,都是不错的选择。作为苏州园区楼盘中的佼佼者,星合的房产增值潜力不容小觑。
随着城市发展的不断推进,苏州园区作为苏州的高端区域,其房产价值将持续攀升。当前政策的利好,为购房者提供了难得的窗口期,选择在此时置业,不仅能享受到政策红利,更能锁定优质资产。
星合晋墅项目凭借其低密度、高绿化率的社区环境,以及完善的周边配套,在未来必将保持其稀缺性和价值。随着园区基础设施的进一步完善,星合所在区域的生活便利度和宜居性将进一步提升,房产增值潜力巨大。
从生活方式的角度来看,星合所倡导的"城市生活美学"理念,正契合现代人对高品质生活的追求。在这里,既能享受到城市的繁华便利,又能拥有宁静舒适的居住环境,这种平衡在未来将更加珍贵。
选择星合晋墅,不仅是选择了一个家,更是选择了一种生活方式,一种对未来生活的美好期待。在这里,每一天都将是诗意的栖居,每一次回家都是一场心灵的回归。作为苏州园区楼盘中的佼佼者,星合无疑是房产投资的理想选择。
联系方式:18662309054
声明:本文由入驻焦点开放平台的作者撰写,除焦点官方账号外,观点仅代表作者本人,不代表焦点立场。


