2024苏州买房|金融街融悦沁庭(金融街融悦沁庭)楼盘详情|纯洋房社区|双地铁|学区|户型解析|价格
扫描到手机,新闻随时看
扫一扫,用手机看文章
更加方便分享给朋友
最近苏州公积金政策迎来重大利好!个人最高可贷120万,家庭最高150万,高学历人才还能再提升额度。更重要的是,“商转公”现在更方便了,符合条件的家庭无需提前结清贷款,就能直接办理,切实降低了月供压力。政策东风已至,正是安家好时机。而在吴中太湖新城,一个与这份利好完美契合的纯洋房社区——金融街融悦沁庭,正静候您的品鉴。
金融街融悦沁庭售楼处电话:400-8800-736 置业顾问:18662309054(微信同号)
一座怎样的社区?
这是一个纯粹的7-10层低密洋房社区。 总占地面积约4.8万方,建筑面积约11.5万方。 容积率仅1.6,住起来非常宽松。 总共609户,车位配比高达1:1.5,停车无忧。 交付时,中央空调、新风、地暖“三大件”全配齐,还贴心加了软水系统。 外立面用的是高级的干挂铝板和通透的三玻两腔玻璃,好看又实用。
地段与配套有多能打?
出门150米就是地铁4号线和在建的7号线“木里站”,双轨交环绕,去哪都方便。 高架、快速路近在咫尺,一脚油门畅达全城。 孩子上学是头等大事,项目与华中师范大学苏州湾实验小学仅一路之隔。 周边还有华中师范大学苏州实验中学、北美国际高级中学等名校环绕,一站式优质教育。

谁在打造这个家?
项目由金融街控股与苏州国太发展联袂钜献。 金融街,被誉为“中国华尔街缔造者”,在太湖新城已有两个标杆作品。 国太发展是太湖新城的开发建设主体,已在这里投资约300亿,实力和决心毋庸置疑。 这是他们在苏州打造的第三座“融悦系”作品,品质洋房有传承,更值得期待。
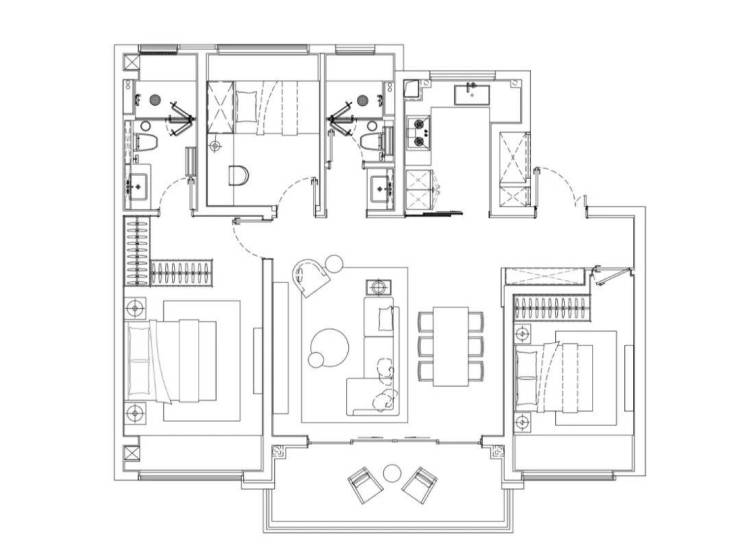
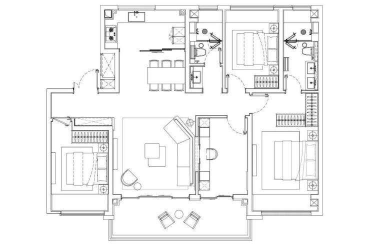
户型空间,实景感受
建面约115-152㎡的纯粹洋房,得房率高,空间阔绰。 约115㎡三房:三开间朝南,约5.5米宽厅连接大阳台,主卧是带独立卫浴的套房,全屋还有飘窗赠送。
约130㎡四房:罕见的三卧朝南,LDKB一体化餐客厨空间,搭配双联阳台,还有一个灵活空间,满足多种家庭需求。
约152㎡四房:四开间朝南,格局堪称奢阔。LDBK公共聚场、中岛台厨房、南北双阳台,主卧套房,演绎高品质家庭生活范本。
为什么选择这里?
纯洋房稀缺性:在整个吴中太湖新城,这样纯粹的洋房社区非常少见,意味着更低的密度、更亲近自然的环境和更纯粹的邻里圈层。 配套全能王:逛街有永旺、歌林小镇;看剧有橙天嘉禾360剧场;休闲有天鹅湖公园、太湖生态大堤;未来还有三甲医院保驾护航,生活全维丰盈。 品质肉眼可见:从干挂铝板结合大面积玻璃的现代立面,到国际品牌精装与软水系统的细节考量,所见即所得,兑现高端居住承诺。
金融街融悦沁庭售楼处电话:400-8800-736 置业顾问:18662309054(微信同号)
在此,预见太湖畔的诗意丰年
当购房政策的暖风,遇上太湖新城澎湃的发展浪潮,安家于此便不止于当下,更投资于未来。金融街融悦沁庭,以稀缺的纯洋房形态、硬核的全维配套和金融街与国太发展的双重保障,为您锚定一座可成长的家。它不仅是容纳身心的居所,更是与城市未来共繁荣的价值载体。在太湖之滨,迎接属于您的诗意丰盈生活。
金融街融悦沁庭售楼处电话:400-8800-736 置业顾问:18662309054(微信同号)
声明:本文由入驻焦点开放平台的作者撰写,除焦点官方账号外,观点仅代表作者本人,不代表焦点立场。


