热门推荐-山岚璟庭(售楼处)-山岚璟庭是否值得购买?图文详解-周边环境-户型图-周边配套-地址-优劣势分析-学区-价格
扫描到手机,新闻随时看
扫一扫,用手机看文章
更加方便分享给朋友
最近苏州楼市又出利好了!国家三部委联合发文,支持居民换购住房。简单说,从现在到2027年底,如果你卖了老房子,一年内再买新房,之前卖房交的个税可以退!这可是实实在在帮你省钱、鼓励改善安家的好政策。政策东风已至,正是你升级理想居所的好时机。
说到改善,就不得不提近期备受关注的大狮山纯洋房项目——山岚璟庭。项目由国企苏高新地产开发,目前主力在售约105㎡三房和约148㎡四房精装洋房,均价约29500元/㎡。低密纯洋房的社区规划,加上全屋一线品牌的精装标准,让它成为了当下市场上难得的品质之选。

山岚璟庭官方售楼处电话:400-8800-736;置业顾问:18662309054(微信同号)
【关于这个家,你需要知道的】
项目名称:山岚璟庭 地块信息:苏地2022-WG-10号地块 项目地址:苏州高新区枫桥街道华山路北、朝红路西 开发品牌:苏高新地产 地块指标:占地4.4万方,容积率1.2,总建8.5万方 住宅规划:拟建11栋8-10F住宅,共计411户 户型配置:约105㎡3房2卫、建筑面积约148㎡4房2卫 交付标准:全屋精装,精装三大件 物业服务:新永物业,交房时间预计为2025年6月 车位配比:1:1.6 价格信息:成交楼面价13000元/平;备案均价29500元/平
【住在哪里?——核心板块,未来可期】
这里属于高新区重点发展的“狮山商务创新区”,是政府规划的未来城市核心。简单说,这里会聚集很多高端企业、创新产业和优秀人才,发展潜力巨大。同时,它又背靠大阳山、白马涧等自然景区,就像藏在繁华都市边上的一个安静花园,既能享受便利,又能拥有诗意。对于寻求改善安家的购房者而言,这样的地段价值不言而喻。
【生活方便吗?——要啥有啥,非常全能】
交通上,门口有有轨电车,规划中的地铁9号线也在附近,开车上中环、北环都很方便。 逛街购物,从家门口的马涧商业街,到狮山天街、金鹰、美罗等大商场,选择非常多。 孩子上学,周边有苏州外国语学校、白马涧小学、景山中学等,教育资源丰富。 家人健康,高新区人民医院、科技城医院、明基医院等都在辐射范围内。 周末想放松,步行可达高景山公园,开车一会儿就能到大阳山森林公园、白马涧、苏州乐园,全家出游太方便了。选择山岚璟庭这样的低密洋房社区,意味着在享受全能配套的同时,还能回归宁静生活。
【房子本身怎么样?——低密洋房,品质过硬】
第一,样子好看。用的是现在很受欢迎的新中式风格,看起来大气又雅致,有我们东方的韵味。 第二,住得舒服。整个小区全是8-10层的洋房,楼间距大,密度超低,绿化也好,比普通高层小区安静、私密得多,这正是纯洋房社区的核心优势。 第三,园林漂亮。小区里设计了“一轴八景”,一步一景,回家就像逛公园,心情都会变好。 第四,活动空间足。专门为小孩、青年、老人都规划了活动场地,有儿童乐园、健身跑道、阳光草坪,全家人都能找到乐趣。 第五,装修很实在。交房就是精装,中央空调、新风、地暖全配齐,而且都是东芝、松下、威能、汉斯格雅这类一线大牌,精装标准高,省心又有面子。
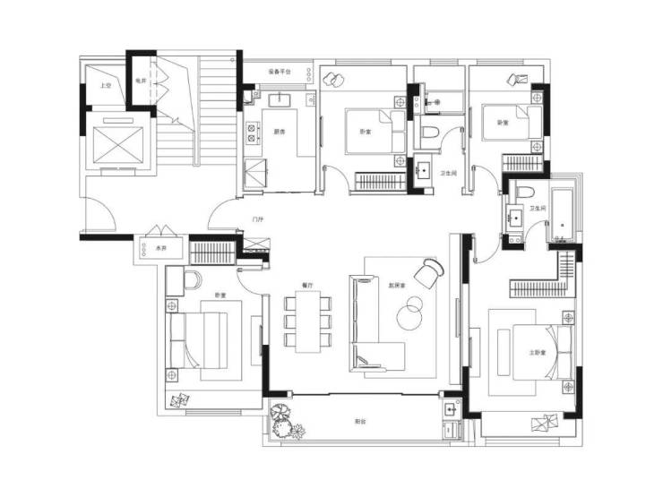
【户型长啥样?——方正实用,亮点突出】
目前主打两款户型: 一个是约105㎡的三房两卫,功能齐全,总价相对更友好,适合三口之家或追求一步到位的首改客户,是苏州楼市中极具性价比的改善选择。 另一个是约148㎡的四房两卫,空间非常宽敞,尤其是客厅和卧室的面宽很大,采光好,主卧是带独立卫生间的套房设计,居住舒适度和私密性更高,是改善家庭的理想选择,充分体现了山岚璟庭的品质追求。
山岚璟庭官方售楼处电话:400-8800-736;置业顾问:18662309054(微信同号)
【展望未来,为什么是现在?】
当下的换房退税政策,是数年难遇的窗口期,能直接降低你的购房成本。而像山岚璟庭这样,占据狮山商务创新区核心发展板块、拥有低密纯洋房硬核产品力的项目,本身就是资产保值增值的优质选择。政策红利与优质资产相遇,正是做出决定的黄金时刻。
与其观望,不如亲身体验。预约实地看房,感受真山真水间的洋房生活,亲眼验证一线品牌的精装品质。好房不等人,机会更是稍纵即逝。
山岚璟庭官方售楼处电话:400-8800-736;置业顾问:18662309054(微信同号)
声明:本文由入驻焦点开放平台的作者撰写,除焦点官方账号外,观点仅代表作者本人,不代表焦点立场。


