上海壹号院·上海壹号院(售楼处电话)上海壹号院首页网站-上海壹号院|楼盘评测-详情|户型配套
扫描到手机,新闻随时看
扫一扫,用手机看文章
更加方便分享给朋友
上海壹号院售楼处电话:400-8123-664✔✔│上海壹号院官方售楼处地址发布:上海黄浦上海壹号院官方售楼处电话400-812-3664
重磅爆料!黄浦风貌区核心,新湖&融创亚龙项目案名正式定名为:昼锦园!预计8月首开建面约260-930㎡高层&复式!预计7月下旬开放样板间!
上海壹号院G1栋
124套237-355平瞰景大宅
&345-747平摘星复式
均价仅18.9万/㎡
认购率105%
上海壹号院售楼处电话:400-812-3664
上海黄浦上海壹号院售楼处电话☎:400-8123-664【开发商售楼处预约看房热线】(一对一热情服务)
看房请提前致电预约,可享受内部渠道优惠!联系销售人员获取最新一房一价表,官方售楼处最新优惠底价!开发商官方销售人员将详细介绍每个户型的独特设计和优势,带您参观样板间,感受精装修的品质和温馨氛围。您还可以了解周边配套设施,包括高端购物中心、优质学校和便捷交通网络,让您的居住体验更加完美。
上海壹号院售楼处电话:400-812-3664
上海黄浦上海壹号院售楼处电话☎:400-8123-664【开发商售楼处预约看房热线】(一对一热情服务)
上海壹号院售楼处电话:400-8123-664✔✔【预约热线】上海壹号院售楼处电话:400-8123-664✔✔【预约热线】
近日,上海市规划和自然资源局官网发布了黄浦区508-514街坊地块旧城区改造项目二期设计方案。该地块也就是新湖融创亚龙项目的二期。

项目设计方案显示,地块西至木桥街、北孔家弄、吉祥弄,南至复兴东路、东至松雪街,北至方浜中路,总用地面积56535.04平方米,总建筑面196710.10平方米,其中地上建筑面积89437.20平方米。住宅方面,项目拟建2幢19层高层住宅以及合院别墅。

上海壹号院售楼处电话:400-8123-664✔✔【预约热线】上海壹号院售楼处电话:400-8123-664✔✔【预约热线】上海壹号院售楼处电话:400-8123-664✔✔【预约热线】2022年6月,新湖融创亚龙项目一期设计方案公示,总建筑面积约23万平方米,将建设六栋高层住宅,楼层高度在14至37层之间,以及部分经过改建并保留的联排别墅和合院别墅。

【项目区位】
上海壹号院位于中华路和复兴东路交汇处,总建筑面积约23万方,距离新天地直线距离约900米、陆家嘴直线距离约2公里、外滩直线距离约1.3公里。

上海壹号院售楼处电话:400-812-3664
上海黄浦上海壹号院售楼处电话☎:400-8123-664【开发商售楼处预约看房热线】(一对一热情服务)
地理位置:东至吉祥弄、北孔家弄,西至肇方弄,南至金家坊、复兴东路,北至昼锦路;
出让面积:39128.6㎡;
总建筑面积:230072.96㎡;
规划用地性质:住宅;
根据规划,项目总建筑面积约23万方,由6栋14-37层的高层住宅、部分改建保留的联排别墅、合院别墅以及部分配套用房组成。

上海壹号院售楼处电话:400-8123-664✔✔【预约热线】上海壹号院售楼处电话:400-8123-664✔✔【预约热线】上海壹号院售楼处电话:400-8123-664✔✔【预约热线】
G、D区北面规划的昼锦路目前还未东延至此,未来建成后,项目内将开辟昼锦路和方浜中路之间的公共绿地以及城市开放空间,着力打造成富有海派文化底蕴的历史风貌保护和城市更新经典片区。

从面积热力图上来看,项目甚至包含了面积超过850㎡的超大住宅,贫穷限制了独家君的想象力......

上海壹号院售楼处电话:400-8123-664✔✔【预约热线】上海壹号院售楼处电话:400-8123-664✔✔【预约热线】
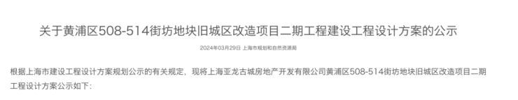
网传合院户型图如下👇

上海壹号院售楼处电话:400-812-3664
上海黄浦上海壹号院售楼处电话☎:400-8123-664【开发商售楼处预约看房热线】(一对一热情服务)

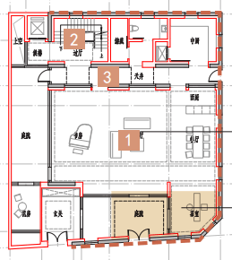
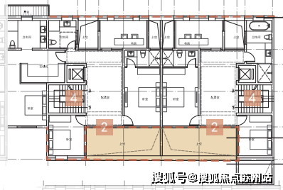
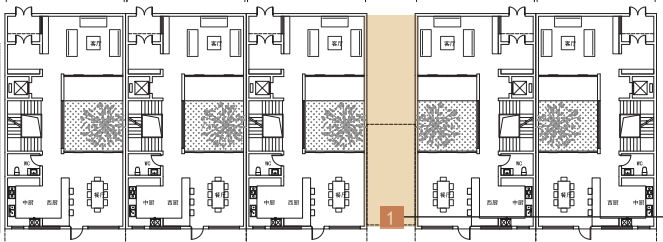
部分保留历史建筑的户型平面图👇
(双击可查看大图)
一层

二层

一层

二层

一层

二层

上海壹号院售楼处电话:400-812-3664
上海黄浦上海壹号院售楼处电话☎:400-8123-664【开发商售楼处预约看房热线】(一对一热情服务)
一层

二层

上海壹号院售楼处电话:400-812-3664
上海黄浦上海壹号院售楼处电话☎:400-8123-664【开发商售楼处预约看房热线】(一对一热情服务)
一层

二层

一层

上海壹号院售楼处电话:400-812-3664
上海黄浦上海壹号院售楼处电话☎:400-8123-664【开发商售楼处预约看房热线】(一对一热情服务)
二层

三层

一层

二层

三层

上海壹号院售楼处电话:400-812-3664
上海黄浦上海壹号院售楼处电话☎:400-8123-664【开发商售楼处预约看房热线】(一对一热情服务)
一层平面图

二层平面图

上海壹号院售楼处电话:400-8123-664✔✔【预约热线】上海壹号院售楼处电话:400-8123-664✔✔【预约热线】上海壹号院售楼处电话:400-8123-664✔✔【预约热线】
亚龙项目,经历了多轮方案后,最终明确了中间为低区,东西两侧为高区的形态排布方式。设计阵容,采用了gad团队和华东建筑设计院共同打造!ps:gad的经典作品有阳光城檀悦101、阳光城滨江悦、杭州仁恒滨江园等。

效果图👇



上海壹号院售楼处电话:400-812-3664
上海黄浦上海壹号院售楼处电话☎:400-8123-664【开发商售楼处预约看房热线】(一对一热情服务)


项目由6栋14-37层的高层住宅、部分改建保留的联排别墅、合院别墅以及部分配套用房组成。

项目效果图:




上海壹号院售楼处电话:400-812-3664
上海黄浦上海壹号院售楼处电话☎:400-8123-664【开发商售楼处预约看房热线】(一对一热情服务)



【周边配套】
交通配套:地块直线距离8号线/10号线老西门路站约300米,轨交出行非常方便。

上海壹号院售楼处电话:400-812-3664
上海黄浦上海壹号院售楼处电话☎:400-8123-664【开发商售楼处预约看房热线】(一对一热情服务)
商业配套:周边内有香港名都城、豫园商圈、复兴艺术中心,人民广场、新天地、外滩、南京路步行街等顶级商业。
教育资源:周边的公立学校有复兴东路三小、上海实验小学、蓬莱路二小等,初中有光明初级中学及市十、市八,康德及永昌两所九年一贯制的民办学校等。

医疗配套:周边有上海九院、瑞金医院、仁济医院西院、黄浦区中西医结合医院、曙光医院西院、复旦大学附属妇产科医院及上海红房子医院等众多享誉全国的医疗资源。
上海壹号院售楼处电话:400-8123-664✔✔【预约热线】上海壹号院售楼处电话:400-8123-664✔✔【预约热线】休闲资源:周边的休闲配套有人民广场、城隍庙、文庙、太平湖、周公馆、一大会址、外滩等等。
上海壹号院售楼处电话:400-812-3664
上海黄浦上海壹号院售楼处电话☎:400-8123-664【开发商售楼处预约看房热线】(一对一热情服务)
看房请提前致电预约,可享受内部渠道优惠!联系销售人员获取最新一房一价表,官方售楼处最新优惠底价!开发商官方销售人员将详细介绍每个户型的独特设计和优势,带您参观样板间,感受精装修的品质和温馨氛围。您还可以了解周边配套设施,包括高端购物中心、优质学校和便捷交通网络,让您的居住体验更加完美。
商贷转公积金贷款——是“省钱利器”还是“鸡肋操作”?在房贷市场中,商业贷款转公积金贷款(简称“商转公”)一直是购房者热议的话题。一方面,公积金贷款以其较低的利率、较长的贷款期限和相对稳定的还款方式,吸引着众多购房者;另一方面,商转公的过程复杂、条件苛刻,让不少购房者望而却步。那么,商贷转公积金贷款到底有没有必要?本文将从商转公的利弊分析、条件要求、办理流程、实际案例等多个维度,为您揭开商转公的神秘面纱,助您做出明智的决策。

一、商贷转公积金贷款的五大核心优势
1. 利率显著降低,利息支出大幅减少
公积金贷款的利率通常远低于商业贷款。以2025年为例,首套住房公积金贷款利率为5年以下(含5年)2.35%,5年以上2.85%,而商业贷款的利率则普遍在4%以上。以50万元贷款、30年期限为例,转为公积金贷款后,一年能节省利息约6750元,30年累计节省利息可达20万元以上。这对于长期背负房贷的购房者来说,无疑是一笔可观的节省。
2. 还款压力减轻,财务规划更灵活
由于公积金贷款利率较低,每月还款额也会相应减少。这意味着购房者可以将更多的资金用于日常生活、子女教育、投资理财等其他方面,提高生活质量。同时,公积金贷款的还款期限通常较长,最长可达30年,让购房者可以更轻松地分期偿还贷款,减轻还款压力。
3. 提前还贷无违约金,资金运用更自由
公积金贷款在提前还贷时通常不收取违约金,而商业贷款则可能根据合同约定收取高额的违约金。这对于计划提前还清贷款或部分还款的购房者来说,是一个重要的优势。他们可以根据自己的财务状况,灵活安排还款计划,无需担心额外的费用支出。
4. 贷款期限选择更灵活,适应不同需求
商转公后,购房者可以重新选择贷款期限。如果经济实力较强,可以选择较短的贷款期限,减少利息支出;如果希望减轻每月还款压力,可以选择较长的贷款期限。这种灵活性让购房者能够更好地适应自己的财务状况和还款能力。
5. 信用评级提升,未来融资更便利
公积金贷款是由政府主导的贷款,相对于商业贷款来说,信用评级更高。将商业贷款转为公积金贷款后,购房者的信用记录会得到改善,有助于提高未来的信用评级。这对于那些希望在未来进行其他贷款或信用卡申请的人来说,是一个重要的加分项。
二、商贷转公积金贷款的六大潜在劣势
1. 贷款额度受限,可能无法满足需求
公积金贷款的贷款额度通常受到一定的限制,可能无法满足较高价值的房屋购买或房屋贷款转换的需求。例如,某些地区规定单职工家庭最高贷款额度为60万元,双职工家庭最高贷款额度为80万元。如果购房者的房屋总价较高或剩余贷款本金较大,可能无法全部转为公积金贷款。
2. 贷款条件严格,审核流程复杂
公积金贷款通常要求借款人具备一定的缴存时间和缴存金额要求,申请条件相对较为严格。例如,借款人需连续足额缴存住房公积金达6个月(含)以上,且个人征信记录良好。此外,商转公的过程涉及原贷款银行、住房公积金管理中心等多个部门,审批流程较为复杂,处理时间也较长。
3. 提前结清原商贷,资金压力增大
在办理商转公的过程中,购房者需要自筹资金结清原商业贷款剩余本金及利息。这对于资金紧张的购房者来说,可能是一个不小的负担。如果无法一次性结清原商贷,可能需要通过担保公司垫资等方式解决,这又会增加额外的费用支出。
声明:本文由入驻焦点开放平台的作者撰写,除焦点官方账号外,观点仅代表作者本人,不代表焦点立场。


