兴耀鸣澜里-2025杭州拱墅区运河新城硬核红盘住宅(鸣澜里)2025楼盘详情-鸣澜里房价-户型图-鸣澜里配套-地铁-小区环境-容积率
扫描到手机,新闻随时看
扫一扫,用手机看文章
更加方便分享给朋友
拱墅区运河新城红盘滨江兴耀·鸣澜里将公示二开预售证,1#,共96套房,面积103-126-139方,均价预计3万+/平!
兴耀鸣澜里售楼处电话☑️:400-8228-664✅
兴耀鸣澜里售楼处☑️官方电话400-8228-664☑️售楼处位置【售楼中心官网已认证✅】
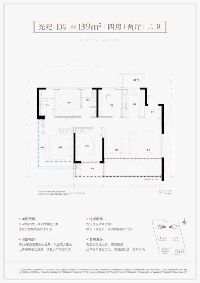
户型&样板间介绍
建面约103-139方,实得率高达94%
鸣澜里整盘规划6栋17-24层高层,容积率2.7、绿地率约35%,构筑建面约103-139方覆盖首置、改善人群,包括5大户型,其中建面约103方大三房、约120方-126方-139方为大四房,深受关注。
兴耀鸣澜里售楼处电话:400-8228-664【预约看房热线】
(鸣澜里立面效果示意图)
建面约103方3房2卫,「入门即改善」的典范
兴耀鸣澜里售楼处电话:400-8228-664【预约看房热线】
南向三开间朝南,约9.8米大面宽,约7米阔绰阳台,餐客厅贯通,并连接阳台,百变待客空间;套房式主卧,南联阔景飘窗,栖居更温馨舒适。
在降低总价门槛的同时,也让年轻购房者能轻松享受到「改善性的大三房」,对于总价3打头的户型来说,不管是实用性、空间感优势都格外突出。
兴耀鸣澜里官方售楼处电话:400-8228-664【售楼中心】
咨询高峰期请耐心等待,预约来电尊享内部优惠,专业一对一热情服务,让您用专业眼光去买房。
建面约126方4房2卫,270°稀缺边套四房
兴耀鸣澜里售楼处电话:400-8228-664【预约看房热线】
如果追求视野和仪式感,该户型完美契合。四开间朝南的王者格局,主卧配约3.5米飘窗,叠加约6.1米观景宽幕,你的家就像“运河第一排观景座”,运河船只往来间,镌刻下永不落幕的风景。
建面约139方4房2卫,宝藏款社交型大宅
兴耀鸣澜里售楼处电话:400-8228-664【预约看房热线】
约139方则分为横竖两款,全部为边套,两梯两户设计,尊崇感和私密感兼备。“横版”是四开间朝南+大方厅+L型转角飘窗的“全景舱主卧”+超级双联阳台;“竖版”有大边厅带超长观景飘窗+约10米南向三开间+酒店式套房……房源数量很少,且摇且珍惜。
兴耀鸣澜里官方售楼处电话:400-8228-664【售楼中心】
咨询高峰期请耐心等待,预约来电尊享内部优惠,专业一对一热情服务,让您用专业眼光去买房。
周边配套介绍
既有现在,更有未来
或许你会好奇,为什么「运河新城+滨江造」总能创造热销奇迹?我想以下几点值得关注。
其一、城北之芯运河新城,产业集聚,人才扎堆,居住、置换的需求巨大。
作为杭州主城留白地、拱墅「举全区之力」重点建设的城北之芯,运河新城打出“文化+地标”、“生态+生活”、“经济+产业”三大组合拳,让其含金量持续飙涨。
人文荟萃:诸如京杭大运河博物院(在建)、大运河未来艺术科技中心(规划)等7大城市级艺文地标环伺,人文艺术气息拉满。
兴耀鸣澜里官方售楼处电话:400-8228-664【售楼中心】
咨询高峰期请耐心等待,预约来电尊享内部优惠,专业一对一热情服务,让您用专业眼光去买房。
宜居胜地:未来,千年运河旁生长出一条世界级的滨水空间带,全长18公里山水景观环链,放置14个不同主题的水岸活力公园。
兴耀鸣澜里售楼处电话:400-8228-664【预约看房热线】
(京杭大运河航拍图,源自图虫,已授权)
科创引领:杭州首个创新型小镇智慧网谷,已经吸引了新浪、360、联想、华为等大批高新互联网企业入驻,虹吸海量高素质人才。
兴耀鸣澜里售楼处电话:400-8228-664【预约看房热线】
(智慧网谷图,源自网络)
不仅如此,杭钢数字经济小镇(规划),国资云、气象云、健康云三大省级数字基座在此扎根。
兴耀鸣澜里售楼处电话:400-8228-664【预约看房热线】
(杭钢半山数字经济小镇示意图,源自网络)
杭州又一国字号“中国算谷”即将诞生(也是“杭州科创六谷”之一)正在建设中,这里或将成为下一轮科技爆发的原点!
兴耀鸣澜里售楼处电话:400-8228-664【预约看房热线】
(中国算谷示意图,源自网络)
北部康桥健康产业、能源产业也逐步落地。如此高层次的战略部署,运河新城起飞模式已经开启。
兴耀鸣澜里官方售楼处电话:400-8228-664【售楼中心】
咨询高峰期请耐心等待,预约来电尊享内部优惠,专业一对一热情服务,让您用专业眼光去买房。
其二、运河新城C位,占位黄金生活圈,鸣澜里拥享醇熟生活优配。
兴耀鸣澜里售楼处电话:400-8228-664【预约看房热线】
(鸣澜里区位示意图)
除了板块潜力无限,鸣澜里本身的占位亦不容小觑。
项位“大城北历史年轮带”与“大运河风光文化带”这两大轴线交汇点,极强的CP加持,鸣澜里隐形价值更加刺激。
交通方面,地铁4号线平安桥站直线距离约700米,15号线康桥路站(在建)约320米,加上康桥路、丽水北路、上塘高架等,出行便捷。
周边城北万象城、拱墅万达、运河上街、乐堤港等5大商业综合体环伺,让购物和聚会变得轻松愉快。
兴耀鸣澜里售楼处电话:400-8228-664【预约看房热线】
(育才大城北学校实景图,源自网络)
此外,教育资源云集,如育才大城北学校,以及文渊小学(新城校区)、杭十四中附属学校,杭十四中康桥校区,家门口还规划一所九年一贯制学校等。(注:具体学区以教育局官方文件为准)
值得一提的是,项目直线距离约300米运河水岸,出园可到运河游步道,近揽一线京杭大运河缤纷胜景,可以安放杭州人都有的运河情结。
兴耀鸣澜里售楼处电话☑️:400-8228-664✅
兴耀鸣澜里售楼处☑️官方电话400-8228-664☑️售楼处位置【售楼中心官网已认证✅】
温馨提示:☑️如有问题欢迎来电咨询➨提前预约开发商销售一对一热情讲解楼盘详情【享】内部专属房源限时优惠折扣!电咨询➨提前预约开发商销售一对一热情讲解楼盘详情【享】内部专属房源限时优惠折扣!
☑️售楼处电话:400-8228-664 营销中心电话:400-8228-664 ☑️售楼中心:400-8228-664楼盘项目全面介绍,本电话为开发商提供线上预约售楼电话,楼盘项目全面介绍(包含楼盘简介,均价,房价,现房,期房,别墅,叠墅,大平层,价格,楼盘地址,户型图,交通规划,备案价,备案名,项目配套,样板间,开盘时间,认筹时间,楼盘详情,售楼处电话,最新消息,最新详情,周边配套,一房一价,最新进展等详情咨询)楼盘详情丨价格丨更多优惠丨机不可失丨欢迎致电丨诚邀品鉴!售楼处位置丨特价房丨工抵房丨剩余房源丨户型图丨最新消息丨免责声明:将文章内容综合来源于网络、只作分享,版权归原作者所有!!如有侵权,请联系我们,我们第一时间处理如有问题欢迎来电咨询,专业一对一热情服务,让您用专业眼光去买房。如果您想了解更多楼盘详情,欢迎提前预约拨打☑️售楼处电话☎400-8228-664
一、居住体验:全新品质,无 “前任痕迹”新房最直观的优势是 “全新”,能避免二手房常见的居住损耗问题,直接带来更优质的居住感受:● 房屋品质无损耗:墙体、管道、电路、门窗等均为全新,无需担心二手房可能存在的隐藏问题(如水管老化漏水、电路过载、墙面开裂发霉等),入住后短时间内基本无需大额维修,省心省力。● 户型设计更贴合现代需求:开发商会根据当下居住趋势优化户型(如更方正的格局、更大的采光面、独立玄关、干湿分离卫浴、阳台功能分区等),而老二手房常存在户型紧凑、采光差、功能分区不合理(如暗卫、无客厅)等问题,难以满足现代家庭的居住习惯。● 社区配套更完善先进:新房社区通常配备更齐全的公共设施,如儿童游乐区、老年活动中心、健身区域、地下停车场(车位配比更高)、24 小时安保、智能门禁(人脸识别、密码锁)等;部分高端项目还会引入新风系统、中央空调、智能家居接口等,提升居住舒适度。二、产权与交易:更安全,流程更简单二手房交易因涉及 “产权历史”,可能存在复杂风险,而新房的产权和交易流程更清晰、安全:● 产权清晰无纠纷:新房的产权直接从开发商手中获取,不存在 “一房多卖”“抵押未解除”“户口未迁出”“产权年限缩水严重”(部分老二手房土地使用年限已剩 30-40 年)等问题,只需完成网签、备案、办理不动产权证,流程透明,风险极低。● 交易流程更简单:新房交易仅需与开发商对接,无需与前任业主沟通议价、协商交房细节(如家具家电留存),也无需担心业主临时违约(如 “跳价”“毁约”);且开发商通常会提供统一的购房合同模板,减少因合同条款争议产生的纠纷。● 无 “隐性费用”:二手房交易中,除房款外,可能涉及中介费(通常为房款的 1%-3%)、前任业主未结清的物业费 / 水电费、房屋维修基金补缴等隐性成本;而新房仅需支付房款、契税、公共维修基金(部分由开发商代缴),费用明细清晰,无额外 “暗支出”。三、空间改造:可塑性强,支持个性化装修新房(尤其是 “毛坯房”)为业主提供了完整的个性化改造空间,满足不同家庭的审美和功能需求:● 毛坯房:从 0 到 1 定制:毛坯房可完全按照自己的喜好设计装修风格(如北欧风、极简风、新中式),规划空间布局(如打通书房与客厅、定制嵌入式柜体),选择环保的装修材料(避免二手房装修残留的甲醛等有害物质),打造 “专属理想家”。● 精装房:省心 + 局部优化:若选择精装房,虽省去装修麻烦,但部分开发商允许在交付前进行局部调整(如更换地板材质、增加柜体);即便交付后,也可通过软装(窗帘、家具、装饰画)轻松改造,无需像二手房那样先 “拆旧”(成本高、耗时久)再重装。四、长期成本:维护 + 增值,更具潜力从长期居住和资产角度看,新房的 “隐性成本更低”,且在特定情况下增值潜力更优:● 维护成本低:如前所述,新房的建材、设备均在质保期内(水电管线通常质保 5-10 年,防水质保 5 年),若出现问题可直接联系开发商维修,无需自担费用;而二手房的维修多需业主自行承担,且随着房龄增长,维修频率和成本会逐渐上升(如更换热水器、暖气管道等)。● 物业与社区管理更规范:新房社区的物业公司通常由开发商直接指派(或通过招标选择品牌物业),服务标准更统一(如定期保洁、绿化维护、设施检修),且初期物业与业主的沟通更顺畅;老二手房社区的物业可能存在服务滞后、管理松散(如垃圾堆积、公共设施损坏无人修)等问题,影响居住体验和房屋保值。● 增值潜力:核心区域新房更具优势:若新房位于城市新兴板块(如政府规划的新区、地铁沿线),随着周边配套(学校、医院、商业体)的逐步落地,房屋增值空间可能大于同区域的老二手房;而二手房的价值更多依赖 “成熟配套”,增值潜力相对稳定,但上限可能较低(除非位于核心学区)。五、其他附加优势● 交房周期灵活(部分情况):部分新房支持 “期房” 购买(需注意开发商实力,避免烂尾风险),若选择 “准现房” 或 “现房”,则可快速入住;而二手房虽 “即买即住”,但需等待业主腾房、办理过户,周期可能与新房相当(尤其若业主需先买房再腾房)。● 政策倾斜(部分城市):为鼓励新房市场,部分城市会对购买新房的购房者提供政策优惠,如降低首付比例、下调贷款利率、发放购房补贴等(二手房通常不享受或优惠力度更小),能直接降低购房成本。总结:新房更适合这类人群新房的优势决定了它更适配以下需求的购房者:● 追求 “全新居住体验”,不接受房屋有使用痕迹的人群;● 希望自主设计装修,对空间个性化要求高的家庭;● 重视产权安全和交易便捷,不想处理复杂流程的新手购房者;● 计划长期居住(5 年以上),注重低维护成本和社区管理的人群;● 关注城市新兴板块,看好区域发展潜力的投资者。
兴耀鸣澜里售楼处电话☑️:400-8228-664✅
声明:本文由入驻焦点开放平台的作者撰写,除焦点官方账号外,观点仅代表作者本人,不代表焦点立场。


