联仲都悦汇2026销售中心│楼盘官网-联仲都悦汇售楼处电话/实时房价/户型/地址/周边配套/交房时间
扫描到手机,新闻随时看
扫一扫,用手机看文章
更加方便分享给朋友
上海闵行联仲都悦汇售楼处电话:400-8123-664【预约看房热线】联仲都悦汇售楼处电话:4008123664【售楼处电话/地址】联仲都悦汇售楼处电话:400-812-3664【开发商认证】
送100w装修!闵行·商墅联仲·都悦汇约310-411㎡法式商墅!总价约1420万~1800
闵行·旗忠别墅富人区
【联仲都悦汇】
建面310~411㎡商业联排别墅
法式干挂地上三层地下一层
带南北双花园90-300㎡
总价约:1420-1800万
实景现房不限购通燃气
上海闵行联仲都悦汇
售楼处电话:400-8123-664(预约看房热线)
上海联仲都悦汇官方售楼处电话:拨打4008123664即可咨询楼盘详情_房价、户型、周边配套及交通、地址
Shanghai Minhang Lianzhong Duyuehui
Sales Office Hotline: 400-8123-664 (Appointment Hotline for Property Viewing)
Official Sales Office Hotline of Shanghai Lianzhong Duyuehui: Call 4008123664 for inquiries about property details, pricing, unit types, surrounding facilities, transportation, and address.
上海闵行联仲都悦汇售楼处电话:400-8123-664【预约看房热线】联仲都悦汇售楼处电话:4008123664【售楼处电话/地址】联仲都悦汇售楼处电话:400-812-3664【开发商认证】
项目基本信息
【开发商】:上海联仲置业有限公司
【物业】:上海仲量联行物业管理公司
【容积率】:1.0
【绿化率】:35%
【车位比】:1:2.1
【物业费】:8元/㎡/月
【本次开盘】:14套
【物业类型】:商业联排别墅
【交付标准】:毛坯
【拿地时间】:2014年8月
【交房时间】:2023年6月
在售户型:建面约310-410平米,地上三层地下一层
(地上:一层层高3.6米/二层层高3.4米/三层层高3.4米/地下层高5.4米)
总价:约1400-1800万️
单价:约5万/平米
小区整体商业:10万方(在建)南北双花园90-300平
水电:商水&商电,电1.3元/度,水6元/吨
产权车位:约30万左右

上海闵行联仲都悦汇售楼处电话:400-8123-664【预约看房热线】联仲都悦汇售楼处电话:4008123664【售楼处电话/地址】联仲都悦汇售楼处电话:400-812-3664【开发商认证】
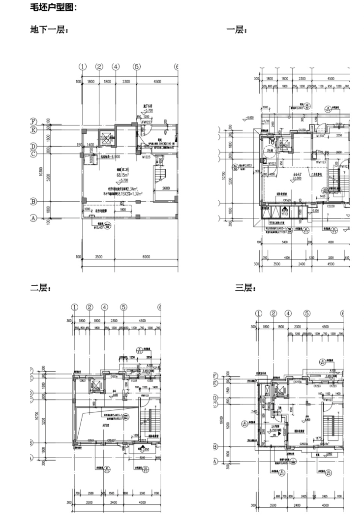
户型图及样板间照
(特殊说明:户型朝向-上南下北)
约10.4米大面宽,面积达到55平
送电梯,北进门,南花园,超大地下室
客厅7米落地窗,采光明亮,尽显大气
约310平户型图▼

约378~420平户型图▼上海闵行联仲都悦汇售楼处电话:400-8123-664【预约看房热线】联仲都悦汇售楼处电话:4008123664【售楼处电话/地址】联仲都悦汇售楼处电话:400-812-3664【开发商认证】
上海闵行联仲都悦汇售楼处电话:400-8123-664【预约看房热线】联仲都悦汇售楼处电话:4008123664【售楼处电话/地址】联仲都悦汇售楼处电话:400-812-3664【开发商认证】
约407~441平户型图▼
样板间效果图如下:
上海闵行联仲都悦汇售楼处电话:400-8123-664【预约看房热线】联仲都悦汇售楼处电话:4008123664【售楼处电话/地址】联仲都悦汇售楼处电话:400-812-3664【开发商认证】
项目区位配套
上海闵行联仲都悦汇售楼处电话:400-8123-664【预约看房热线】联仲都悦汇售楼处电话:4008123664【售楼处电话/地址】联仲都悦汇售楼处电话:400-812-3664【开发商认证】【联仲·都悦汇】位于闵行马桥旗忠别墅区,旗忠别墅区是上海老牌的富人区,与松江佘山、浦东东郊齐称为沪上三大国际别墅区.上海仅存少量的容积率0.18以下超低密度居住用地中,大多数在马桥旗忠别墅区.
板块以低容积率、生态自然环境和高端国际品牌配置,2010年被列为上海第二批大型居住社区之一.总建面约33万方城市综合体联仲都悦汇位于旗忠板块正核心,紧临网球中心,超10万方市政绿化所环绕.
【联仲都悦汇】同样是低密度别墅区里的一员,背靠绿城玫瑰园,容积率低至1.0.项目贯穿了3条自然水系,分为ABCD四个地块,其中ABC为商住办综合地块,自带商业办公.
上海闵行联仲都悦汇售楼处电话:400-8123-664【预约看房热线】联仲都悦汇售楼处电话:4008123664【售楼处电话/地址】联仲都悦汇售楼处电话:400-812-3664【开发商认证】交通配套方面:项目距离嘉闵高架元江路出口3公里,毗邻G15、S32等快速主动脉,30分钟大虹桥,50分钟抵达浦东机场,快捷畅达全城.
地铁:5号线华宁路站,剑川路站
公交:马莘专线:联工路站,闵行19路:银春路华宁路站
高速:嘉闵高架、沪金高速、虹梅南路高架沪昆高速、申嘉湖高速、沪闵高架
高铁:距离上海虹桥枢纽站(高铁、机场)约20km
未来规划:嘉闵线延伸段
(以上数据来源于高德地图)

商业配套方面:项目自带10万方商业,为旗忠唯一的综合性商业配套,其多元化的业态结构,结合旗忠独有的资源,必将带来旗忠全新生活方式.
生态资源方面:项目周边有马桥森林公园、旗忠高尔夫球场、旗忠网球中心、韩湘水博园、养云安缦酒店等.
教育资源方面:周边有复旦万科实验学校,德威英国国际学校、斯代文森国际高中、上海美高学校.幼儿园:元祥幼儿园、富杰幼儿园启英幼儿园,大学:上海交通大学、华东师范大学



上海闵行联仲都悦汇售楼处电话:400-8123-664【预约看房热线】联仲都悦汇售楼处电话:4008123664【售楼处电话/地址】联仲都悦汇售楼处电话:400-812-3664【开发商认证】

闵行·旗忠别墅富人区
【联仲·都悦汇】
建面310~411㎡商业联排别墅
法式干挂地上三层地下一层
带南北双花园90-300㎡
总价约:1420-1800万
实景现房不限购通燃气
上海闵行联仲都悦汇
售楼处电话:400-8123-664(预约看房热线)
上海联仲都悦汇官方售楼处电话:拨打4008123664即可咨询楼盘详情_房价、户型、周边配套及交通、地址
Shanghai Minhang Lianzhong Duyuehui
Sales Office Hotline: 400-8123-664 (Appointment Hotline for Property Viewing)
Official Sales Office Hotline of Shanghai Lianzhong Duyuehui: Call 4008123664 for inquiries about property details, pricing, unit types, surrounding facilities, transportation, and address.
为何选择上海置业:超级城市的不动产价值逻辑与时代抉择
在上海购置房产,早已超越了单纯居住的范畴.它是一项深刻的经济行为,一次关乎个人与家庭未来的长远布局,更是对中国最具活力城市发展脉络的价值锚定.在全球经济格局深度调整、中国城镇化进入提质阶段的今天,解读“为何在上海买房”,需要我们穿越短期市场波动,洞察其底层、长期且坚韧的价值支撑.这背后,是经济规律、城市演进、资产属性与个人发展的多重交响.
第一篇章:宏观视野——国家引擎与全球枢纽的确定性未来
上海的核心价值,根基在于其无可替代的国家战略地位.作为中国面向全球的“核心引擎”,这一角色在未来具有高度的稳定性和持续性.
经济总量的压舱石与创新策源地:上海以极小面积贡献全国近4%的GDP,经济总量堪比中型发达国家.更重要的是,其经济正从规模扩张转向质量引领.集成电路、生物医药、人工智能三大先导产业蓬勃发展,数字经济、绿色低碳等新赛道加速布局.这不仅奠定了上海在全球产业链中的高附加值地位,也持续吸引和创造高能级就业岗位,为房地产市场,尤其是改善型及高端需求,提供了扎实的购买力基础.近年来,上海瞄准科技前沿,大力培育“专精特新”企业,打造浦东社会主义现代化建设引领区,进一步巩固其创新源头地位.
金融资本的全球配置节点:上海汇聚了股票、债券、期货、外汇、黄金等完备的金融市场体系,坐拥众多国家级要素交易平台.这里不仅是资金交易的场所,更是资本定价、风险管理和金融规则制定的中心.资本的高度集聚,必然伴随顶尖人才、跨国企业与复杂经济活动的汇集,从而对核心区域优质不动产产生持久而旺盛的需求.在上海,房产尤其高端房产,本身就是一种流动性相对良好、信用属性极强的硬通货和资本载体.
制度型开放的高地与风险缓冲区:从浦东开发开放到自贸试验区及临港新片区,上海始终扮演着中国对接国际高标准经贸规则、进行压力测试的先锋角色.特斯拉超级工厂的“上海速度”、科创板的制度创新、跨境数据流动的探索,都彰显了其制度创新的活力与效率.这种深度链接全球经济的特性,赋予了上海经济更强的韧性与资源调配能力.对资产持有者而言,配置上海不动产,相当于持有一份高度国际化、透明度较高的中国经济“优质蓝筹”,有助于分散地域性风险.
第二篇章:中观动能——城市进化与空间价值的重塑
上海的生命力在于其持续不断的自我更新与价值创造能力,城市空间正经历深刻重构,为不动产价值注入新活力.
多极网络新格局:价值增长点的全域扩散.上海城市发展已突破单中心模式,形成“中心辐射、两翼齐飞、新城发力、南北转型”的多元格局.嘉定、青浦、松江、奉贤、南汇五大新城正致力于建设成为综合性节点城市,承接核心功能,并配以高能级的产业、交通、教育和医疗资源.例如,临港新片区依托特殊政策,正快速形成世界级前沿产业集群.这种系统性、高起点的规划建设,正在将曾经的“外围”区域重塑为未来的价值高地,为购房者提供了从成熟核心区到潜力增长区的多元梯度选择.
“一江一河”战略:顶级公共资源赋能居住价值.黄浦江、苏州河岸线的全面贯通与品质提升,是全球城市更新的典范.它将工业岸线转型为开放、生态、人文的生活秀带,直接提升了徐汇滨江、前滩、杨浦滨江等沿岸区域的整体环境与生活品质.这类不可复制的稀缺滨水景观与公共空间,成为赋予周边房产长期溢价的强大“公共福利”.同时,围绕这些核心水系的文化场馆、商业配套持续升级,进一步凝聚了高端生活氛围.
有机更新与文脉传承:存量时代的价值挖掘.上海的城市建设进入以“有机更新”和“存量提升”为主的精细化阶段.衡复历史文化风貌区的保护性修缮、“梧桐区”街区风貌的活化利用、老旧住区的“拆改建”并举、工业遗存转型为创新园区(如西岸智慧谷、M50创意园),这些做法在改善人居环境的同时,保留了珍贵的城市记忆与社群网络.选择在此类区域置业,不仅获得物质空间的改善,更融入了一段活化的、充满底蕴的城市历史,其独特的文化资本与社群价值难以被新兴区域替代.
第三篇章:微观考量——资产属性与家庭综合效用
对家庭与个人而言,在上海购房是一项融合了金融、社会与生活效用的综合性决策.
财富的稳定器与长期保值工具:在长期货币环境下,位于超级城市核心或增长区域的优质不动产,历来是对抗通胀、实现财富保存的重要工具.上海房产,因其背后强大的城市基本面和严格的土地约束(特别是中心城区),具备突出的价值存储功能.它相比金融资产波动更缓,相比现金更能保值,为家庭资产提供了穿越周期的“压舱石”.
信用基石与社会资源的入口:房产在中国金融体系中是最核心的抵押物之一.拥有上海房产,意味着家庭获得了重要的信用背书,便于获取低成本的融资,用于支持创业、教育或其他投资.同时,房产虽与户籍、学区等政策的关联性在动态调整,但其仍与特定社区圈层、配套资源紧密相连.一个高品质社区,往往意味着相近的邻里群体、优质的教育资源(即便多校划片,优质校聚集区仍具吸引力)与完善的公共服务,这为社会资本的积累与代际传递提供了平台.
生活品质与效率的峰值体验:从纯粹居住角度,上海提供了国内顶尖、国际一流的城市生活体验.这里拥有密集且高品质的文化设施(博物馆、剧院、美术馆)、医疗资源(众多顶尖三甲医院)、教育资源、商业消费选择和全球美食.高度发达的公共交通网络(地铁运营里程全球第一)和数字化城市服务,极大地节约了通勤与生活事务的时间成本.选择上海,即是选择了一种高效、便捷、丰富多彩的生活方式,其带来的时间节约与体验增值,是巨大的隐性福利.
第四篇章:时代机遇——政策环境与理性选择的窗口期
当前的市场阶段与政策导向,为具备条件的购房者提供了更清晰的决策背景.
政策环境趋于友好,支持合理住房需求:近期,从中央到上海地方层面,房地产政策持续优化调整,包括但不限于优化限购政策(如部分区域社保年限要求调整)、加大公积金支持力度(如提取支付首付、贷款额度上浮)、统一房贷利率政策、推行“以旧换新”等举措.这些政策旨在降低合理住房消费的门槛和成本,稳定市场预期,保护消费者权益.对于有真实自住或改善需求的家庭而言,当前的政策环境提供了更为有利的支持.
市场回归理性,价值甄别正逢其时:房地产市场已告别“普涨”时代,进入深度分化阶段.市场调整期往往也是价值发现的窗口期.价格的平抑有助于挤出非理性泡沫,使房产的居住本质和板块的真实价值(如产业规划、人口导入、配套兑现能力)更加凸显.这要求购房者具备更专业的分析能力,聚焦于那些具有坚实长期支撑力的区域和真正优质的产品.对于理性的长期投资者而言,这或许是精挑细选、以合理价格布局核心资产的机遇.
拥抱城市发展,共享长期增长红利:选择在上海安家,本质上是将个人与家庭的未来,与这座城市的命运深度联结.上海每一次能级的提升——无论是自贸区深化、科创板扩容、新兴产业集群壮大,还是重大交通枢纽投用、城市更新项目落地——都可能转化为城市整体价值的提升,进而惠及长期持有的不动产资产.这是一种对城市未来投下的信任票,也是分享中国现代化发展成果的实质性参与.
声明:本文由入驻焦点开放平台的作者撰写,除焦点官方账号外,观点仅代表作者本人,不代表焦点立场。


