热门推荐-山岚璟庭(售楼处)-山岚璟庭是否值得购买?图文详解-周边环境-户型图-周边配套-地址-优劣势分析-学区-价格
扫描到手机,新闻随时看
扫一扫,用手机看文章
更加方便分享给朋友
重磅消息!苏州楼市再迎政策东风。就在近日,官方正式宣布,全面取消市区新建商品住房的2年限售政策。这意味着,无论是买苏州新房还是二手房,未来的流通都将更加自由灵活,资产处置的主动权完全掌握在您自己手中。这无疑是给市场注入的一剂强心针,也是当下改善家庭“卖旧换新”、一步到位安家核心区的绝佳窗口期。
政策暖风之下,什么样的房子更值得持有?答案无疑是那些占据城市核心资源、产品力过硬的品质住区。比如,位于大狮山商务区的 山岚璟庭 ,近期正推出建面约105-148㎡的新中式纯洋房,备受市场关注。项目由国企苏高新地产开发,全屋精装交付,目前正在热销中。

山岚璟庭官方售楼处电话:400-8800-736;置业顾问:18662309054(微信同号)
【项目速览】
项目名称:山岚璟庭 地块信息:苏地2022-WG-10号地块 项目地址:苏州高新区枫桥街道华山路北、朝红路西 开发品牌:苏高新地产 地块指标:占地4.4万方,容积率1.2,总建8.5万方 住宅规划:拟建11栋8-10F住宅,共计411户 户型配置:约105㎡3房2卫、建筑面积约148㎡4房2卫 交付标准:全屋精装,精装三大件 物业服务:新永物业,交房时间预计为2025年6月 车位配比:1:1.6 价格信息:成交楼面价13000元/平;备案均价29500元/平
【区域配套:住在城市发展的心脏】
这里是大狮山,苏州高新区未来发展的绝对核心。按照规划,这里要打造成长三角的商务、创新和外贸中心,汇聚了无数世界500强和高端产业。简单说,这里工作机会多,高收入人群扎堆,区域价值肉眼可见地在攀升。
生活上更是要啥有啥。出门有轨电车1号线就在旁边,规划中的地铁9号线也值得期待,开车上中环、北环都很方便。逛街?龙湖天街、金鹰、美罗、泉屋这些大商场都在不远处。想亲近自然?家门口就是高景山、大阳山森林公园,还有白马涧、苏州乐园等4A景区,周末遛娃度假不愁没地方。孩子上学有苏州外国语等名校环伺,家人健康也有高新区人民医院、科技城医院等多家优质医院保障。对于寻求苏州高新区改善住宅的家庭而言,这里的配套堪称完美。
【品牌价值:国企匠造,安心之选】
房子是大事,品牌是关键。山岚璟庭 由本土国企巨头苏高新地产开发,这意味着什么?意味着更稳健的资金实力、更过硬的工程质量和更可靠的交付保障。在当下市场,选择一家有担当、有口碑的国企,无疑是给未来的家上了一道最坚实的保险,这也是苏高新地产一贯的口碑所在。
【产品价值:低密洋房里的诗意生活】
颜值即正义:项目采用经典的新中式风格,看起来大气又雅致,金属挑檐、真石漆立面,细节处处显匠心,在片区里很有辨识度。
住得舒坦是根本:容积率只有1.2,全是8-10层的纯洋房社区,没有高层压抑感。楼间距大,采光通风好,私密性更强,社区绿地率也高,住起来非常舒服,是典型的低密舒适住区。
园林有讲究:设计了“三进归家”的仪式感,社区里打造了“一轴八景”的园林景观,把苏州的山水诗意搬到了家门口,每天回家都是享受。
全龄段乐园:社区里为小孩设计了游戏乐园,为年轻人准备了跑道和健身区,为长者规划了林下休闲空间,真正考虑到每个家庭成员的需求。
装修一步到位:精装标准堪称“豪配”。中央空调(东芝)、新风(松下)、地暖(威能)三大件全配齐。厨房是欧派橱柜配老板灶具,卫浴用的是汉斯格雅花洒和杜拉维特马桶,都是响当当的一线品牌,省心又省力,真正实现了全屋精装交付。
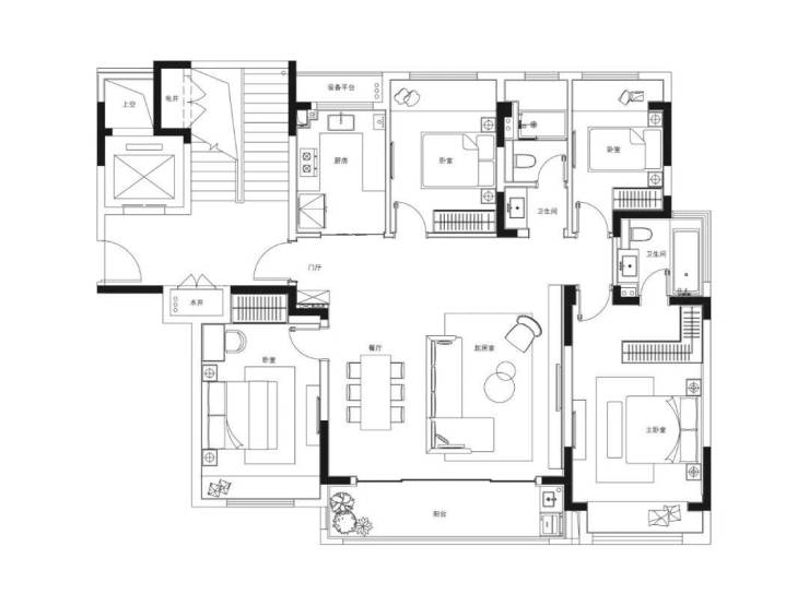
【户型鉴赏:经典格局,面宽敞亮】
目前主推两款户型,都是市面上非常受欢迎的经典格局。
约105㎡三房两卫:功能紧凑,总价门槛更友好,适合首改家庭或追求高品质小三房的客户。
约148㎡四房两卫:尺度阔绰,大面宽设计,客厅连通阳台,主卧是带独立卫生间的套房,充分保障了家庭每位成员的居住尊严和舒适度,是终极改善的理想选择。
【优势分析:为什么是山岚璟庭?】
总结一下,选择 山岚璟庭 ,您得到的是:一个位于城市发展核心区的绝佳地段、一套由实力国企打造的品质住宅、一个低密舒适的纯洋房社区、以及一个用一线品牌武装到牙齿的精装家。在政策鼓励改善、市场回归理性的当下,这样的产品无疑是资产配置和品质自住的“硬通货”。
山岚璟庭官方售楼处电话:400-8800-736;置业顾问:18662309054(微信同号)
【未来展望:把握当下,珍藏未来】
限售政策的全面放开,赋予了房产更强的金融属性和流动性。此时,将资产置换到像 山岚璟庭 这样占据稀缺土地资源(低密纯洋房)、拥有过硬产品力、且由国企护航的项目中,无疑是明智之举。它不仅是当下改善居住环境的优质选择,更是面向未来的一份稳健资产。
机会总是留给有准备的人。大狮山核心区、低密纯洋房、国企精工,这些标签共同构成了一个难以复制的价值高地。感兴趣的您,不妨亲自来看一看,感受一下这里的山水意境与匠心品质。
预约看房,请致电: 山岚璟庭官方售楼处电话:400-8800-736;置业顾问:18662309054(微信同号)
声明:本文由入驻焦点开放平台的作者撰写,除焦点官方账号外,观点仅代表作者本人,不代表焦点立场。


