热门推荐-山岚璟庭(售楼处)-山岚璟庭是否值得购买?图文详解-周边环境-户型图-周边配套-地址-优劣势分析-学区-价格
扫描到手机,新闻随时看
扫一扫,用手机看文章
更加方便分享给朋友
最近苏州的公积金政策,给买房人送来了实实在在的利好!个人最高能贷120万,家庭最高150万,本科以上学历还能再提升额度。更重要的是,商贷转公积金贷款现在更方便了,甚至可以“以贷冲贷”,不用自己先筹钱结清,大大减轻了资金压力。政策东风已至,正是安家苏州的好时机。
而说到安家苏州,当下苏州高新区有个现象级红盘不得不提——山岚璟庭。作为狮山商务区稀缺的纯洋房社区,它主打105-148㎡的精装户型,备案均价约29500元/平,目前正在热销中。项目由国企苏高新地产开发,品质有保障,吸引了众多改善家庭的关注。

山岚璟庭官方售楼处电话:400-8800-736;置业顾问:18662309054(微信同号)
关于这个家,你需要知道这些
项目名称:山岚璟庭 地块信息:苏地2022-WG-10号地块 项目地址:苏州高新区枫桥街道华山路北、朝红路西 开发品牌:苏高新地产 地块指标:占地4.4万方,容积率1.2,总建8.5万方 住宅规划:拟建11栋8-10F住宅,共计411户 户型配置:约105㎡3房2卫、建筑面积约148㎡4房2卫 交付标准:全屋精装,精装三大件 物业服务:新永物业,交房时间预计为2025年6月 车位配比:1:1.6 价格信息:成交楼面价13000元/平;备案均价29500元/平
住在哪里?狮山核心,未来可期
这里不是普通的板块,而是苏州高新区重点打造的“狮山商务创新区”核心,被定位为城市的发展极核。意味着这里会汇聚全球的资本、创新的企业和高端的人才,发展动力十足,是名副其实的狮山核心地段。
同时,它又背靠大阳山、白马涧等自然山水,出门是繁华商圈,回家是静谧森海,真正做到了“出则繁华,入则宁静”,是主城里难得的桃源秘境,为改善家庭提供了理想的安家苏州之所。
生活方便吗?要啥有啥,非常全能
交通:有轨电车1号线就在附近,规划中的地铁9号线也值得期待,加上何山路隧道、中环西线,开车出行四通八达,苏州高新区的立体交通网络十分便捷。
逛街吃饭:从家门口的马涧商业街,到龙湖天街、金鹰、美罗、泉屋等大商场,都在不远的生活圈内,购物娱乐选择太多,充分满足改善家庭的日常需求。
公园游玩:旁边就是高景山、大阳山国家森林公园,白马涧、苏州乐园等4A景区也在周边,周末遛娃散步根本不用愁。
学校医院:苏州外国语学校、枫桥中心小学、景山中学等教育资源丰富;高新区人民医院、科技城医院等医疗配套完善,生活保障无忧。
谁建的房子?国企苏高新,靠谱!
买房看开发商,国企背景的苏高新地产就是“稳”的代名词。这意味着项目资金更安全,施工质量更有监督,交付承诺更靠谱。选择山岚璟庭,就是选择一份安心和保障,尤其对于办理商贷转公积金贷款的客户而言,开发商实力至关重要。
房子本身怎么样?低密洋房,精装豪配
首先,这是个纯粹的洋房小区,只有8-10层,容积率低至1.2,楼间距大,采光好,住起来非常舒服安静,是狮山商务区内稀缺的低密社区。
建筑是新中式风格,看起来大气典雅。社区园林设计得像苏州古典园林,有“一轴八景”,回家就像逛公园。
社区里还为全家人设计了活动空间:孩子有游乐场,年轻人有跑道和健身区,老人有林下休闲区,考虑得非常周到。
最重要的是装修,全是硬货!中央空调(东芝)、新风系统(松下)、地暖(威能)三大件配齐。厨房用欧派橱柜、老板灶具;卫生间配汉斯格雅花洒、杜拉维特马桶……这些一线品牌自己装都价格不菲,这里全部给你配好,真正拎包入住,精装户型的品质感十足。
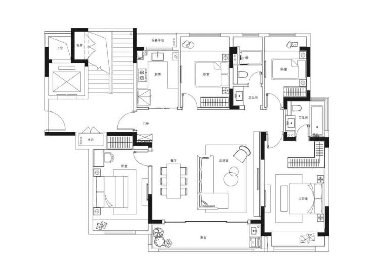
户型选择:两种经典,三代同堂都够住
目前主力就两种精装户型,设计都很实用:
约105㎡三房两卫:功能紧凑,总价相对更可控,适合首改家庭或追求高品质小三房的客户。
约148㎡四房两卫:尺度阔绰,房间多,主卧是带卫生间的套房,居住私密性和舒适度极高,能满足多代同堂的改善需求。
为什么选它?优势一目了然
总结起来,山岚璟庭的核心优势就是:黄金地段(狮山核芯)+ 稀缺产品(低密纯洋房)+ 硬核配置(全屋一线精装)+ 强大品牌(国企苏高新)。在目前的市场下,这样各项指标均衡且突出的项目,确实可遇不可求,是苏州高新区难得的优质选择。
把握现在,赢得未来
当前的公积金政策,降低了您的购房成本;而选择山岚璟庭,则是为家庭资产选择了一个位于城市发展主轴上的优质容器。随着狮山商务区的不断成熟,这里的生活便利度和房产价值潜力不言而喻。
与其观望,不如亲身体验。走进实景展示区,触摸精装的质感,感受洋房的尺度,您才会明白什么是真正的高品质改善生活。
山岚璟庭官方售楼处电话:400-8800-736;置业顾问:18662309054(微信同号)
席位有限,恭迎品鉴。
声明:本文由入驻焦点开放平台的作者撰写,除焦点官方账号外,观点仅代表作者本人,不代表焦点立场。


