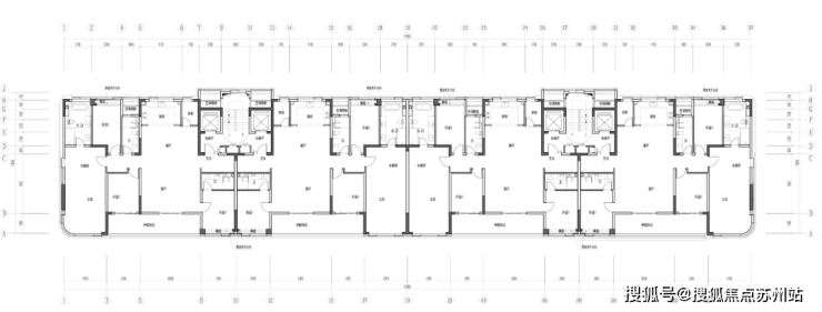
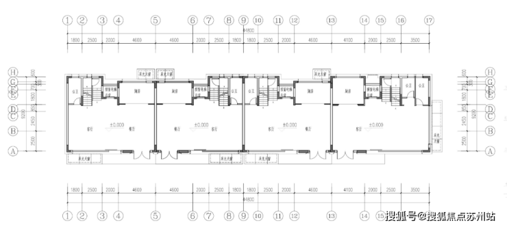
园区湖西绿城规划出炉|规划42栋3-17F住宅|联排+洋房+小高层!
扫描到手机,新闻随时看
扫一扫,用手机看文章
更加方便分享给朋友







声明:本文由入驻焦点开放平台的作者撰写,除焦点官方账号外,观点仅代表作者本人,不代表焦点立场。
扫一扫,用手机看文章
更加方便分享给朋友







声明:本文由入驻焦点开放平台的作者撰写,除焦点官方账号外,观点仅代表作者本人,不代表焦点立场。


正在加载中,请稍后...