热门推荐-山岚璟庭(售楼处)-山岚璟庭是否值得购买?图文详解-周边环境-户型图-周边配套-地址-优劣势分析-学区-价格
扫描到手机,新闻随时看
扫一扫,用手机看文章
更加方便分享给朋友
换房退税,政策东风再起!从2026年开始,卖旧买新,个人所得税有机会全额退还。这无疑是给改善家庭的一份实在大礼,让您升级理想居所的成本更低。政策暖风之下,正是精挑细选、锁定优质资产的好时机。
比如,当下苏州高新区狮山板块的山岚璟庭,就备受关注。项目主推建面约105-148㎡的精装洋房,以其低密纯洋房社区和新中式美学,成为市场焦点。目前项目正在热销中,感兴趣的朋友不妨深入了解。

山岚璟庭官方售楼处电话:400-8800-736;置业顾问:18662309054(微信同号)
【关于这个家,你需要知道的】
项目名称:山岚璟庭 地块信息:苏地2022-WG-10号地块 项目地址:苏州高新区枫桥街道华山路北、朝红路西 开发品牌:苏高新地产 地块指标:占地4.4万方,容积率1.2,总建8.5万方 住宅规划:拟建11栋8-10F住宅,共计411户 户型配置:约105㎡3房2卫、建筑面积约148㎡4房2卫 交付标准:全屋精装,精装三大件 物业服务:新永物业,交房时间预计为2025年6月 车位配比:1:1.6 价格信息:成交楼面价13000元/平;备案均价29500元/平
【住在哪里?狮山核心,未来可期】
这里属于狮山商务创新区,是苏州高新区重点发展的“核心引擎”。政府规划要把它打造成商务、创新、外贸和国际合作的中心,未来潜力很大。
区域里聚集了很多高科技企业、外资公司,意味着这里工作、生活的都是高收入、高素质的人群,整个板块的活力和档次都很高。
而且,这里背靠大阳山、白马涧等自然景区,出门是繁华都市,回家是静谧山林,这种“出则繁华,入则宁静”的改善生活,在苏州主城非常难得。
【生活方便吗?要啥有啥,非常全能】
出门挺便捷: 门口有有轨电车1号线(白马涧生态园站),未来还规划有地铁9号线。何山路隧道、北环、中环西线这些主干道都在旁边,开车去哪都方便。
逛街选择多: 从家门口的马涧商业街,到狮山天街、绿宝广场、金鹰、美罗、泉屋这些大商场,开车都在一刻钟生活圈内,吃喝玩乐购一站式解决。
环境没得说: 旁边就是高景山公园、大阳山森林公园,国家级4A景区白马涧龙池、苏州乐园等都在附近,周末遛娃、散步、爬山,去处太多了。
孩子上学近: 项目周边有枫桥中心幼儿园、白马涧小学、景山中学、新区二中等学校,教育资源丰富。还有知名的苏州外国语学校。
看病不用愁: 高新区人民医院、科技城医院、明基医院,以及苏大附一院、附二院等优质医疗资源都在辐射范围内,健康有保障。
【房子本身怎么样?低密洋房,品质很高】
第一眼就好看: 房子是新中式风格,看起来大气又雅致,有东方美学的那种韵味,不是普通的方盒子建筑。
住起来很舒服: 整个小区全是8-10层的洋房,楼间距大,容积率只有1.2,非常低密。意味着你家采光好、通风好、私密性也好,绿地多,住着不压抑。
回家有仪式感: 小区设计了三重归家礼序,园林景观借鉴了苏州古典园林的意境,打造了“一轴八景”,回家就像逛公园,很有品味。
活动空间足: 专门为全家人设计了活动场地。有小朋友的游乐天地,年轻人的健身跑道和广场,长辈们散步晒太阳的休闲花园,考虑得很周到。
户型很实用: 目前有约105㎡三房和约148㎡四房两种。都是大面宽设计,客厅和卧室采光非常好。主卧是带独立卫生间的套房,私密又方便。
装修很省心: 交房就是精装修,而且用的都是大牌子。像东芝中央空调、松下新风、威能地暖这“三大件”全配齐。厨房的欧派橱柜、老板灶具,卫生间的汉斯格雅花洒、杜拉维特马桶,都是硬货,品质看得见。
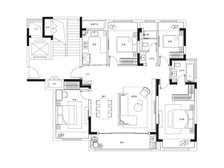
【户型长啥样?南北通透,格局方正】
建筑面积约105㎡亲地纯洋房(3室2卫)
建筑面积约148㎡亲地纯洋房(4室2卫)
山岚璟庭官方售楼处电话:400-8800-736;置业顾问:18662309054(微信同号)
【展望未来,为何是现在?】
结合“卖旧买新”的退税政策,现在正是改善换房、优化家庭资产的好窗口期。用更低的成本,一步到位升级到山岚璟庭这样的核心区低密洋房,无疑是明智之选。
它占据了狮山发展的核心位置,享受当下醇熟配套,更拥有未来巨大的增值潜力。同时,1.2超低容积率带来的纯粹居住体验,以及苏高新品牌和一线精装交付的保障,让这套房子不仅好住,更是一份稳健的优质资产。
政策利好稍纵即逝,优质房源同样不等。如果您正在为家人寻找一处兼顾繁华与静谧、拥有当下与未来的理想居所,山岚璟庭值得您重点考虑。
立即预约,亲临现场,感受东方美学洋房的真正魅力。
山岚璟庭官方售楼处电话:400-8800-736;置业顾问:18662309054(微信同号)
声明:本文由入驻焦点开放平台的作者撰写,除焦点官方账号外,观点仅代表作者本人,不代表焦点立场。


