越秀外滩越(售楼处)官方首页网站-越秀外滩越售楼处欢迎您-越秀外滩越楼盘详情-户型配套-最新价格-最新资讯-售楼处位置
扫描到手机,新闻随时看
扫一扫,用手机看文章
更加方便分享给朋友
越秀外滩越售楼处电话官方最新发布:400-8123-664售楼处电话:4008123664【 越秀外滩越官网售楼处预约热线】欢迎致电售楼处电话,专业一对一热情服务,让您用专业眼光去买房。
「越秀·外滩樾」
内环内虹口北外滩
外滩仅1公里/陆家嘴1.5公里
建面约238/305/318/338㎡风貌别墅
仅48套房源可售总价约4500万起
样板房提前线上预约
越秀外滩越售楼处电话:400-812-3664
上海虹口越秀外滩越售楼处电话☎:400-8123-664(预约看房热线)
如有问题欢迎来电咨询,预约来电尊享购房优惠,可预约案场内部销售人员,专业一对一热情服务,让您用专业眼光去买房。
越秀外滩越售楼处电话:400-812-3664
上海虹口越秀外滩越售楼处电话☎:400-8123-664(预约看房热线)
在顶豪圈层有一句话:所谓家族的行宫,一定是要根植于土地之上的别墅!
如果说外滩代表了上海的过去,陆家嘴代表了上海的当下,那么北外滩就代表了上海的未来。而【越秀外滩樾】就是将代表上海城市繁华的黄金三角,整个装进了自己的步行圈。
效果图

越秀外滩越售楼处电话:400-8123-664
中国人对家族的情怀,亘古未变,而一套别墅,也早已成为家族意识传承的重要载体,同时担当着家族的荣耀。占位北外滩核心地段的越秀·外滩樾正是为49个传奇家族准备的行宫!
当然,除了地段和业态本身,【越秀·外滩樾】的收藏价值还来源于其注重居住舒适度的设计与无与伦比的尊崇服务。
效果图
越秀外滩越售楼处电话:400-8123-664
最新消息:虹口北外滩,低密风貌别墅临港越秀北外滩,项目定名【越秀外滩樾】样板房已开放预约!
项目基础信息
【项目名称】越秀·外滩樾
【开发商】上海漕越经济发展有限公司
【项目位置】上海市·虹口区·梧州路
【项目类别】70年产权住宅
【项目类型】风貌别墅
【可售户数】48套
【容积率】约1.3
越秀外滩越售楼处电话:400-812-3664
上海虹口越秀外滩越售楼处电话☎:400-8123-664(预约看房热线)

越秀外滩越售楼处电话:400-8123-664
百年前的高端工艺元素的经典转译,让海派造诣世纪传承,于历史和未来之间收藏百年上海。
越秀外滩越售楼处电话:400-8123-664
清水红砖:百年前先进舶来品代表,10种以上拼接工艺铺陈
装饰窗楣:同源中共二大会址、张爱玲故居,装饰主义经典元素
弧形韵线:邬达克式的建筑曲线,同源远东第一豪宅的优雅轮廓
海派山墙:带肩仿观音兜,中西文化融合的典藏之美

越秀外滩越售楼处电话:400-812-3664
上海虹口越秀外滩越售楼处电话☎:400-8123-664(预约看房热线)【越秀·外滩樾】是世界知名大师汇聚一堂的灵感结晶,比如项目的设计总顾问邀请了程绍正韬。他是建筑室内设计之东方主义集大成者,致力于东方文化的坚守与创新,打破惯常的职业思维,将生活方式化作一种哲学态度,融入空间设计,让设计不止于作品,再比如项目还邀请了城市文化大师李玮珉。

程绍正韬,集文人、工业家、艺术家、设计师、哲学家、修行者身份于一身,建筑室内设计之东方主义集大成者,致力于东方文化的坚守与创新。他打破惯常的职业思维,将生活方式化作一种哲学态度,融入空间设计,让设计不止于作品。

李玮珉,撑起中国豪宅设计半壁江山,擅长为城市塑造文化符号建筑作品。他的作品更多用极简的方式来表明态度,崇尚简而高效的现代生活方式。庄重的建筑语汇,适时注入艺术、自然与美学,让空间充满想象力。

越秀外滩越售楼处电话:400-8123-664
大师操刀,必然不同凡响。
首先项目承袭了百年前的高端工艺元素,让海派传承得以延续。将清砖立柱、古典门头、岩石山墙等经典海派建筑风貌转译和突破,更适配现代人居审美,于历史和未来之间收藏百年上海底蕴!
其次,项目超越了以往风貌建筑的尺度感,创新了风貌规制,带来了城心难得的双拼、三拼别墅!大窗墙比大南向开间保证了极高的舒适度。大面积运用奢石的外立面,则把名门望族的尊贵身份和非凡气度体现的淋漓尽致!
越秀外滩越售楼处电话:400-812-3664
上海虹口越秀外滩越售楼处电话☎:400-8123-664(预约看房热线)
效果图
巷弄新生:跨越风貌豪宅正统,打造双拼、三拼、多联排别墅的天地私享
建筑新生:创新风貌规制,致微而筑的建筑腔调赏新
美学新生:转译远东第一豪宅立面美学,收藏名门望族生活
材质新生:百年红砖、釉面砖、印度进口幻彩红奢石运用,型制家族传承

越秀外滩越售楼处电话:400-812-3664
上海虹口越秀外滩越售楼处电话☎:400-8123-664(预约看房热线)最后,项目社区配置的三处会所、泛会所空间合计约2500㎡,包含私宴厅、恒温泳池、私人运动空间等内容,提供酒店级高奢服务!
越秀外滩越售楼处电话:400-8123-664
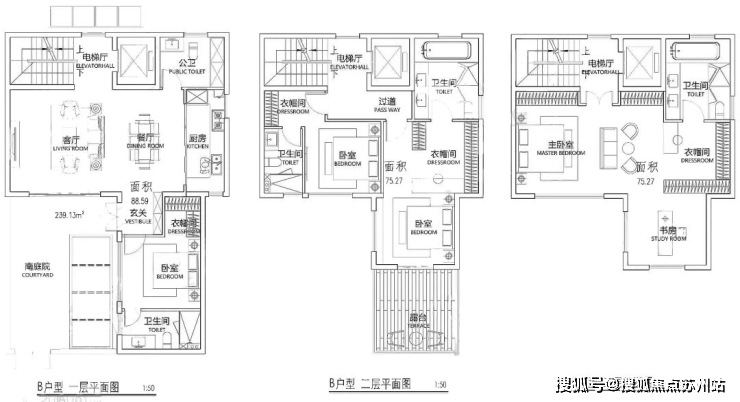
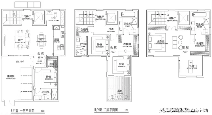
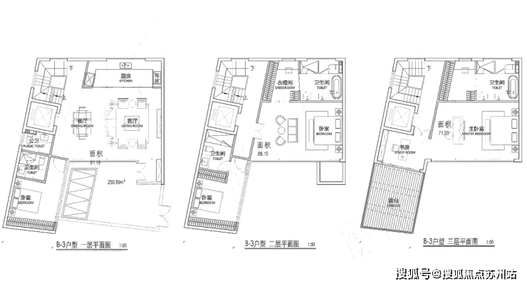
【越秀·外滩樾】项目将呈现48套低密风貌里弄住宅,建筑面积约238-338㎡户型。户型图过程稿如下(过程稿仅供参考,最终以实际为准)。

建面约236.25㎡A户型▼

建面239.13㎡B户型▼

建面250.89㎡B-3户型▼

越秀外滩越售楼处电话:400-812-3664
上海虹口越秀外滩越售楼处电话☎:400-8123-664(预约看房热线)
C户型▼

建面291.42㎡D户型▼

越秀外滩越售楼处电话:400-8123-664
【41载越秀|千亿级开发商与上海共卓越】
国内资产规模最大的地方驻港企业之一越秀集团
41载国匠越秀千亿级开发商——越秀地产
中国第一代商品房缔造者
已进驻30多个核心城市
开发了300多个大型住宅和50多个大型商业物业
2024中国房企综合实力TOP9
(信息来源:亿翰智库)
越秀外滩越售楼处电话:400-812-3664
上海虹口越秀外滩越售楼处电话☎:400-8123-664(预约看房热线)
项目区位配套
【越秀·外滩樾】项目地块四至范围,东至:梧州路,隔壁是中皇广场;西至:hk270B-02,隔壁就是1933老场坊;南至:周家嘴路北至:柘皋路。
越秀外滩越售楼处电话:400-8123-664
【一座码头启航外滩百年世界史】
项目所在地北外滩,是百年前上海的“下海”地。作为上海开埠后第一座码头的诞生地,北外滩率先“开眼看世界”,海纳万国文化风潮,众多此后影响中国的创举在此诞生,是上海最早的“十里洋场”
(*示意图,图片来源于网络)
【一江一河再立世界上海新传】
傲立“一江一河”交汇处(直线距离约1.1KM),未来将打造成为彰显上海城市核心竞争力的黄金水岸和具有国际影响力的世界级城市会客厅,出入之间,相逢城市高阶未来
(*示意图,图片来源于网络)
越秀外滩越售楼处电话:400-812-3664
上海虹口越秀外滩越售楼处电话☎:400-8123-664(预约看房热线)
【北外滩面向世界的上海新封面】
北外滩,与外滩、陆家嘴并称为上海的“黄金三角”。将以2座陆家嘴的商务体量规划,新天地2.0生活圈打造,成为上海跃升世界舞台的“中心发力”新引擎
(*示意图,图片来源于网络)
【中央商务区未来上海腾飞引擎】
区域能级:总开发面积约840万方,40栋甲级写字楼城市地标:480米浦西第一高楼,19栋摩天大楼集群金融产业:2100+家金融企业赋能,资产管理规模超8万亿元,位居全市第一航运格局:4500+家航运企业集聚(上港集团、中远海运等),打造国际航运中心全球贸易:2500+家贸易企业入驻(摩亚方舟、银联商务等)新兴产业:129家新增高新技术企业,113家市区科技小巨人企业(数据来源:上海市规划局《北外滩地区控制性详细规划》)
(*示意图,图片来源于网络)
越秀外滩越售楼处电话:400-8123-664
距离外滩商圈仅约1公里
项目所在地北外滩,是百年前上海的“下海”地。作为上海开埠后第一座码头的诞生地,北外滩率先“开眼看世界”,海纳万国文化风潮,众多此后影响中国的创举在此诞生,是上海最早的“十里洋场”。
示意图,图片来源于网络
轨道交通方面:项目位于虹口区嘉兴路街道,距离地铁4、10、19号线换乘站海伦路站约600米,交通十分便捷。
越秀外滩越售楼处电话:400-812-3664
上海虹口越秀外滩越售楼处电话☎:400-8123-664(预约看房热线)
交通路网示意图,仅供参考
越秀外滩越售楼处电话:400-8123-664
4号线海伦路站
商业配套方面:项目约2公里内,多元繁华构筑封面商业圈:北外滩商圈直线距离约500米,外滩商圈直线距离约1000米,陆家嘴商圈直线距离约1500米,瑞虹商圈直线距离约900米。
教育资源方面:2km内就有虹口区第二中心小学、华东师大一附中实验小学、华东师大一附初中等优质配套。*施教区及就学政策以教育部门规划为准
示意图,图片来源于网络
越秀外滩越售楼处电话:400-8123-664
生态资源方面:2.5公里北外滩滨江绿地(约800m直达),四川北路公园、和平公园、鲁迅公园3大公园环伺,于滨江和城市低密绿芯之间,肇启当代诗意生活传序。
示意图,图片来源于网络
越秀外滩越售楼处电话:400-812-3664
上海虹口越秀外滩越售楼处电话☎:400-8123-664(预约看房热线)生活医疗方面:地块紧邻上海第一人民医院(三甲),1km左右就有集购物、餐饮、娱乐休闲、办公及服务式公寓为一体的综合商业体——瑞虹天地,商业面积55万方,包括太阳宫、月亮湾、星星堂、瑞虹坊四个部分。

图源网络,仅供参考
越秀外滩越售楼处电话:400-812-3664
上海虹口越秀外滩越售楼处电话☎:400-8123-664(预约看房热线)地块西侧的1933老场坊,早前是上海工部局宰牲场;而如今,成为了众多文艺青年打卡拍照的必游胜地。此次也要求保留工部局旧址建面约1800㎡。
越秀外滩越售楼处电话:400-812-3664
上海虹口越秀外滩越售楼处电话☎:400-8123-664(预约看房热线)
如有问题欢迎来电咨询,预约来电尊享购房优惠,可预约案场内部销售人员,专业一对一热情服务,让您用专业眼光去买房。
下面便是房地产方面的有关知识,希望能够帮助到大家!
一、土地产权年限
我们是社会主义国家,土地是国家的。根据项目的立项不同,租用国家土地的周期也不同,国家通过土地有期出让方式,授予用地人40年、50年、70年不等的使用权,只要证件齐全,都属于大产权。不管是40年、50年还是70年,都有到期的时候,土地使用年限到期后,都能续签土地。续签金额根据国家现行的相关规定,按照当时楼面毛地指导价格,依一定比例缴费。而土地上的房屋所有权属于个人产权,是私有财产权的一种,房屋的所有权是永久的,没有使用期限限制,只要房子还能住,就一直能住下去。
40年
商业、旅游、娱乐用地。不限购不限贷,面积不受限制,层高能做loft,户型灵活,贷款年限最高10年,首付50%,不能做公积金贷款,商用水电,生活成本高,能注册公司,不能落户和没学区,征收税费高。
50年
工业、科教文卫体、商住两用综合用地。50年的地单位较多,市面销售的大多是综合用地,各条件跟40年产权差不多,比40年产权好的是多10年使用年限,因为有部分居民住宅,这些可能会改为居民用水用电。
70年
住宅用地。是限购政策第一对象,刚需自住的群体较多,户型面积有限制要求,适合居住,可落户,可划分学区,首付低,贷款年限长,能做公积金贷款,民用水电,生活成本低,二手交易多,征收税费低。
二、五证两书
五证齐全是开发商在市场上销售商品房,必须具备的条件,是按照有关的规定在房地产管理部门办理的各种证件。在这五证里最重要的是预售许可证,也是五证中最后才拿的证,也代表了房子能网签合同。
1.建设用地规划许可证:是开发商在向土地管理部门申请征用、确认建设项目位置和范围符合城乡规划的法定凭证,没有此证的用地单位属非法用地。
2.国有土地使用证:由当地政府颁发的土地使用权凭证。该证主要载明土地使用者名称,土地坐落、用途,土地使用权面积、使用年限和四至范围。
3.建设工程规划许可证:是确认建设工程是否符合城市规划部门要求而发的法律凭证。没此证的建设单位,其工程建筑是违章建筑,不允许开工建设。
4.建筑工程施工许可证:建设单位在开工前依照规定,向工程所在地建设管理部门申请领取施工许可证。代表施工单位工程符合规定,允许开工建设。
5.商品房预售许可证:房屋未建好前出售要办理的证件,是经房管局批准后开发商可预售的房屋凭证,也是区别产权是否正规的证件,能网签备案。
补充说明“二书”,买完房以后还要查验或叫验收“两书 。” 什么是两书呢?两书是开发商在竣工验收合格时,通知购房者入住之后提供的两份法律文件,第一个是住宅质量保证书,第二是住宅使用说明书。住宅质量保证书在使用年限内承担的保修责任,在正常使用情况下,房屋各部件的保修期;住宅使用说明书通常包括房屋各个设施配套的注意事项和使用说明。
三、购房手续流程
购房所需的材料:全款购房客户只需要身份证,贷款购房客户要提供的材料就多一些,结婚证、身份证、户口本、收入证明、工作证明、银行流水单。现在海南有对外籍客户以家庭为单位在海南全省范围只能购买一套住宅的政策,非海南户籍客户购房时要去房管局开具无房证明才能网签合同备案,开具无房证明需要携带夫妻双方的身份证和结婚证,如果孩子没成年,也要查询孩子的信息。
1.认筹
内部认筹、VIP排号等行为,都是开发商在没取得“预售许可证”之前的非法活动,是国家明令禁止的。也是开发商蓄客、锁定意向客户和提前回收资金的一种方式,一般情况下认筹时不确定房号和价格,会在开盘时有额外的折扣和优先选房权,认筹金无偿退还。
2.认购
一般在开发商取得“预售许可证”后可以正式销售的阶段,认购是对双方交易房屋有关事宜的初步确认,能确认购买商品房的房号和价格,属于房屋买卖合同前的预约合同,交付的是定金,认购协议书是受法律保护的,双方出现违约会按约定执行。
3.签合同
房屋买卖合同是一方转移房屋所有权于另一方,另一方支付价款的合同。房屋买卖合同的作用在于能够证明您的房产存在的合法性,在合同中明确房屋所有信息和双方的权利与义务。是用来保障买卖双方权益的书面形式的法律依据。
4.备案
网签备案是房地产管理部门为规范开发商销售房屋,防止开发商捂盘以及一房多卖而建立的网络监管系统,让房屋交易信息透明。在房地产相关部门备案后,会有个网签号,市民可以通过这个号在网上进行查询相关信息和证明材料。
声明:本文由入驻焦点开放平台的作者撰写,除焦点官方账号外,观点仅代表作者本人,不代表焦点立场。


