星合晋墅:政策利好,低密高绿,双湖畔的品质之选
扫描到手机,新闻随时看
扫一扫,用手机看文章
更加方便分享给朋友
近期,上海楼市迎来了一系列重磅利好政策,包括置业政策放宽、公积金贷款额度提高、商业贷款利率优化以及房产税政策调整等。这些政策无疑为有置业需求的市民提供了更多选择和更优惠的条件。在外环外,符合条件的购房者已不限套数;公积金贷款额度首套最高可达184万元,多子女家庭更是能享受216万元的额度上限;商业贷款不再区分首套二套,利率更加灵活;房产税政策也相应调整,大大减轻了购房负担。在这波政策春风中,星合晋墅无疑是值得关注的优质选择,它不仅契合了政策导向,更能满足您对高品质生活的追求。
基本信息
星合晋墅,这座由城市生活美学运营商精心打造的项目,秉承"只定制,不复制"的理念,为每一位业主打造独一无二的生活空间。项目拥有约50%的绿化覆盖率和约1.02的低容积率,让您在繁华都市中也能享受自然的馈赠。社区内规划有7层的低密洋房和3层的精致院墅两种产品形态,主推建面约230㎡-350㎡的舒适洋房,以及建面约400㎡-700㎡的稀缺院墅,满足不同家庭对理想居所的追求。
咨询热线:18662309054
18662309054
区域配套
星合晋墅坐拥约3公里黄金繁华生活圈,让您轻松享受一站式全龄教育资源。从华林幼儿园、双湖湾教育幼儿园到翰林小学、尹山湖中学,知名学府环绕,为孩子的成长保驾护航。医疗方面,双湖区域内星海医院、九龙医院、独墅湖医院等权威医疗资源齐全,为全家健康提供全时保障。交通上,项目近邻5号和8号地铁线,加上金鸡湖大道、独墅湖大道、金鸡湖隧道三条黄金主轴,让您高效通达全城。商业配套同样丰富,山姆会员店、星湖天地、星月坊商业街等文娱商圈荟萃,满足您日常购物和休闲需求。此外,1.6公里可达金鸡湖高尔夫会员专属俱乐部,3公里范围内有独墅湖公园等休闲绿境,让您收藏一座城市的诗意生活。
品牌价值
星合控股,这家拥有国际高端底蕴的开发商,自2003年进入苏州以来,已在园区深耕20余载。他们倾力打造了众多高端住宅、奢华酒店和潮流商业标杆作品,与时代共进,全维打造国际化高端生活方式。从苏州晋园别墅、晋合水巷邻里、晋府水巷别墅到金湖湾,以及洲际酒店、凯悦酒店等,每一个作品都彰显着星合控股的匠心与品质。在星合晋墅,特别打造的约11亩湖叙SPACE艺术会所,坐落于双湖之畔,是一处能让时光放缓、心灵栖居的所在。会所内设有泳池、羽毛球场、高端健身区、家族私宴厅、亲子阅读室等私享空间,为您演绎高端圈层的生活范本。
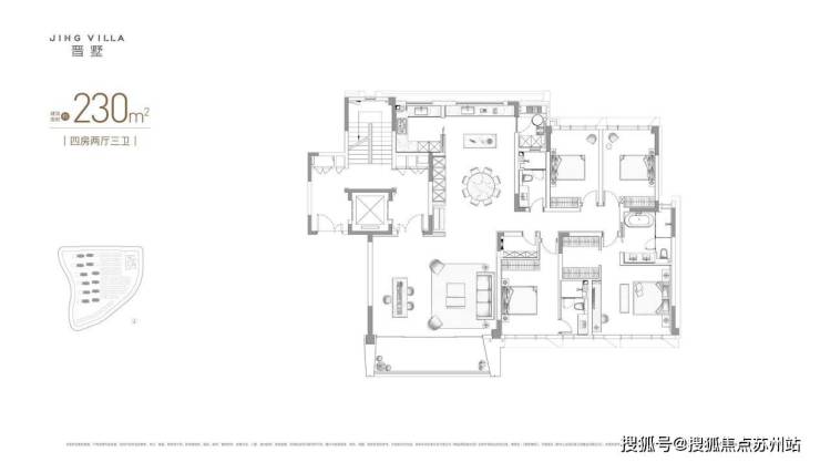
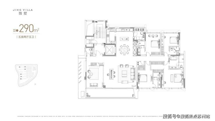
户型鉴赏

星合晋墅从"精神场域构建"到"大宅场景空间"的精心设计,让每一处空间都充满生活美学。建面约230㎡-350㎡的低密洋房,宽敞明亮,布局合理,满足您对品质生活的追求。而联排产品则更是将空间感与私密性完美结合,让您在繁华都市中拥有一方属于自己的天地。
联排产品



优劣势分析
优势:
低密社区,容积率仅约1.02,居住舒适度高
约50%绿化覆盖率,环境优美
国际高端开发商品牌保障,品质有保证
全维优质配套,教育、医疗、商业、交通一应俱全
稀缺院墅产品,满足高端居住需求
劣势:
价格相对较高,适合有一定经济实力的购房者
项目定位高端,总价门槛较高
部分户型面积较大,小家庭可能考虑成本问题
未来可期,价值可鉴
在当前房产政策利好的背景下,星合晋墅凭借其稀缺的地理位置、高端的产品品质和完善的生活配套,未来发展潜力巨大。随着上海限购政策的放宽,更多有改善性需求的购房者将目光投向了优质项目,而星合晋墅正是这一趋势下的理想选择。低密社区的规划、国际化的品牌背景、全维的生活配套,使得项目不仅是一个居所,更是一种生活方式的体现。在政策春风的助力下,星合晋墅的价值将进一步凸显,为业主带来居住体验与资产保值的双重收益。
联系方式:18662309054
声明:本文由入驻焦点开放平台的作者撰写,除焦点官方账号外,观点仅代表作者本人,不代表焦点立场。


