星合晋墅:公积金新政下,低密洋房与院墅的理想之选
扫描到手机,新闻随时看
扫一扫,用手机看文章
更加方便分享给朋友
近期苏州公积金新政频频出台,短短半年内就推出了15条政策,从贷款额度上浮到利率下调,从首付比例降低到灵活就业人员覆盖,全方位优化购房支持。特别是对多子女家庭、人才购买绿色建筑及改善型住宅都有额度上浮,首套公积金贷款利率降至2.1%(1-5年)、2.6%(5年以上),首付比例更是统一降至15%。这些政策红利无疑为购房者减轻了负担,也为高端住宅市场注入了新的活力。在这样的政策背景下,星合晋墅这样的高品质项目,正成为改善型置业者的理想之选。
基本信息
星合晋墅,作为城市生活美学的运营商,坚持只定制不复制的产品理念。这个项目拥有约50%的绿化覆盖率,容积率仅为1.02,居住舒适度极高。项目由7层的低密洋房和3层的院墅两种业态组成,面积从230㎡到700㎡不等,满足不同家庭的需求。如果您对这样的高端住宅感兴趣,欢迎拨打咨询热线:18662309054。
18662309054
区域配套
星合晋墅周边配套齐全,3公里范围内就能享受到黄金繁华生活。教育方面,从幼儿园到中学都有知名学府可选,如华林幼儿园、双湖湾教育幼儿园、翰林小学和尹山湖中学等,让孩子从小就能接受优质教育。医疗资源也很丰富,星海医院、九龙医院、独墅湖医院等权威医疗机构就在附近,为家人健康保驾护航。交通方面,项目靠近5号和8号地铁线,加上金鸡湖大道、独墅湖大道和金鸡湖隧道三条黄金主轴,无论去哪里都非常方便。商业配套也很完善,山姆会员店、星湖天地、星月坊商业街等能满足日常购物需求。闲暇时,1.6公里外的金鸡湖高尔夫俱乐部和3公里外的独墅湖公园是休闲放松的好去处。
品牌价值
星合控股从2003年进入苏州,已经在园区深耕了20多年,打造了许多高端住宅、奢华酒店和潮流商业的标杆作品。他们与时俱进,致力于打造国际化的高端生活方式。星合控股的代表作品包括苏州晋园别墅、晋合水巷邻里、晋府水巷别墅、金湖湾,以及洲际酒店、凯悦酒店等知名项目。
项目内的约11亩湖叙SPACE,是一个国际生活的艺术藏馆。坐落在双湖之畔,这里是一个能让时光放缓、心灵栖息的地方。会所内设有泳池、羽毛球场、高端健身区、家族私宴厅和亲子阅读室等私享空间,为业主演绎着高端圈层的生活范本。
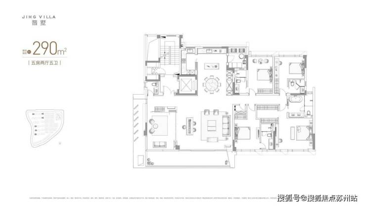
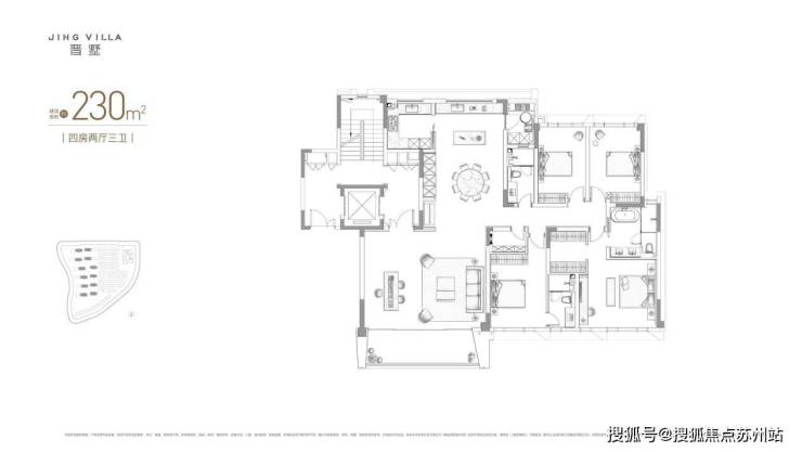
户型鉴赏

星合晋墅在户型设计上,注重从"精神场域构建"到"大宅场景空间"的完美融合。项目主推建面约230㎡-350㎡的低密洋房,以及约400㎡-700㎡的稀缺院墅。这些户型不仅空间宽敞,而且设计合理,能够满足现代家庭对高品质生活的追求。
联排产品更是将居住体验提升到了新的高度,无论是空间布局还是细节设计,都体现了星合晋墅对品质生活的极致追求。



优劣势分析
优势分析:
低密度社区:容积率仅1.02,远低于普通住宅项目,居住舒适度高
绿化环境优越:约50%的绿化覆盖率,让业主仿佛生活在公园中
配套齐全:3公里范围内教育、医疗、商业、交通等配套一应俱全
品牌保障:星合控股深耕苏州20余年,拥有丰富的开发经验和良好的口碑
产品稀缺:低密洋房和院墅产品在市场上较为稀缺,具有一定的收藏价值
劣势分析:
价格较高:作为高端住宅项目,价格相对普通住宅较高
面积较大:主力户型面积较大,总价较高,适合有一定经济实力的家庭
位置相对偏远:虽然交通便利,但距离市中心有一定距离
随着公积金新政的落地,购房门槛进一步降低,星合晋墅这样的改善型住宅项目迎来了新的发展机遇。政策对绿色建筑和改善型住宅的额度上浮,与星合晋墅的产品定位高度契合。随着苏州城市东进战略的推进,双湖区域的价值将持续提升,星合晋墅的区位优势将更加凸显。低密度、高绿化率的住宅越来越受到市场青睐,星合晋墅凭借其稀缺的产品形态和完善的配套,未来升值潜力巨大。选择星合晋墅,不仅是选择一处居所,更是选择一种高品质的生活方式,一种与城市共成长的价值投资。
联系方式
咨询热线:18662309054
声明:本文由入驻焦点开放平台的作者撰写,除焦点官方账号外,观点仅代表作者本人,不代表焦点立场。


