在狮子山下,遇见理想生活的模样:公积金新政助力,打造梦想家园
扫描到手机,新闻随时看
扫一扫,用手机看文章
更加方便分享给朋友
最近,公积金新政给不少家庭带来了好消息。养育未成年二孩的缴存人家庭,使用住房公积金贷款购买家庭首套或第二套自住住房的,贷款额度在可贷额度基础上可上浮30%。而养育未成年三孩及以上的缴存人家庭,贷款额度更是可以上浮40%。这一政策无疑为许多家庭减轻了购房压力,也让更多人有了实现理想生活的机会。
在这样的政策利好下,位于苏州狮子山的狮子山澜庭/院(俗称狮山村地块)无疑成为了一个值得关注的项目。这里不仅有着优越的地理位置,更有着大师级的设计和品质,让人不禁想象,在这里生活会是怎样的一种体验。
狮子山澜庭/院:理想生活的起点
狮子山澜庭/院,位于中国·苏州·狮子山,由仁恒、华发和苏高新三大品牌联合开发。项目总建筑面积约24万方,容积率仅为1.27,综合楼面价25094元/㎡。社区规划分为东区狮子山澜庭和西区狮子山澜院,共有37栋6-8F洋房,总计674套住宅。户型配置从建面168-190-228㎡的洋房宽居,到约450-650㎡的澜墅产品,满足了不同家庭的需求。车位配比高达1:2.5,物业服务由仁恒物业负责,物业费为4.25元/平/月。备案均价一期39500元/平、二期41500元/平、三期43100元/平,交付时间为2023年3月和6月。
新区正核,狮子山前
新区核心,绝版地段
狮山板块是高新区的金融核心板块,聚集了大量的金融机构写字楼及高档住宅,是高新区现代化都市形象的展示区,也是高新区的城市名片。在这里,你不仅能感受到都市的繁华,还能享受到山水之间的宁静。
人文荟萃,城市地标
苏州狮山文化广场是一个将公共文化、科技设施融入开放性山水公园的文化广场。广场包括苏州博物馆西馆、苏州科技馆·工业展览馆、艺术剧院、地下空间和狮山公园5个子项目。未来,狮山全域将被打造成开放式城市会客厅,成为苏州城市的新名片、新地标。
咫尺商业,尽享繁华
项目紧邻龙湖天街、金鹰国际、泉屋百货、美罗、淮海街、香格里拉酒店、日航酒店等商业综合体及高端酒店。百万方的综合体可尽享一站式消费,吃、喝、玩、乐、休闲、购物、度假的需求在这里都可以满足。
全龄教育,优质医疗
狮山实验小学、新区实验中学、新区一中、苏州外国语学校等8大名校环绕,沐浴知识的滋养。明基医院、新区人民医院、苏大附二院在侧,守护人生至美时光。
大师合著,驭领狮山
狮山正席,低密藏品
仁恒与华发,各自享誉苏州豪宅市场。在苏深耕数年,精雕细琢的一丝一缕都是品质的代名词。两大巨匠,于时代高处握手。以约1325亩真山水作衬,合力铸造稀世之珍的狮山正席,献映苏州一部大师级低密藏品。
△项目效果图
△项目实景图
极简立面,东方风范
狮子山澜庭采用日式公寓的风格,整体颜色以简单朴素的深灰色为主,搭配立面面砖,与苏州博物馆西馆的建筑风格遥相呼应。同样延续了江南文化的缂丝立面,城市地标和人居地标和谐共鸣,没有繁杂的工序,只为呈现理性而有序的居住态度。
△项目实景图
大师基因,限量墅居
景观设计团队是由贝尔高林操刀,东方文化智慧结合西方先进理念,国际化的造景水准,呈现出依山就势的独特狮山景观表达。移步其中,一种空灵简朴的松弛感迎面而来,自然环境与园林的静谧平衡的恰到好处,呈现出一种自然而然的状态。
△项目实景图
洋房宽居 & 澜墅产品
洋房户型,精装交付(168/190/228平)
约168㎡ 4房2厅2卫
丨一梯两户,3+1开间朝南,南向面宽13.5米,横厅6.2米丨主卧套房设计,独立衣帽间,主卫带浴缸,南次卧开间3.4米丨外卫干湿分离,厨房L型,带家政间,连接一个北向小阳台
约190㎡ 4房2厅3卫
丨一梯两户,3+1开间朝南,南向面宽15米,横厅7.1米丨主卧套房设计,独立衣帽间,主卫带浴缸,南向次卧套房丨南北双阳台,带家政间,洄游式动线
约228㎡ 4房2厅3卫
丨巨幅宽境横厅设计,约18m朝南采光面宽,生活空间敞亮通透;
丨双套房卧室,起居间从容自洽;
丨约7m 巨幕阳台,超广角级的瞰景视野,风景在此自由往来。
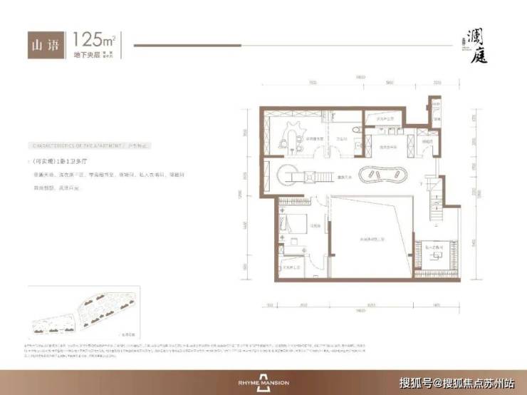
澜墅(洋房底复)地上1层(精装交付)+地下2层(毛坯)
➤打破底复产品的传统设计,创新超大采光井设计;
➤尽可能扩大采光面,将光引入到地下,增加地下空间的通透感和舒适度。
约456㎡ 4+1房2厅4卫
约529㎡ 5+1房2厅5卫
\
约657㎡ 5+1房2厅6卫
未来展望:在这里,遇见更好的自己
在狮子山澜庭/院,你不仅能享受到都市的繁华,还能感受到山水之间的宁静。这里有着大师级的设计和品质,更有着优越的地理位置和丰富的配套设施。无论是二孩家庭还是三孩家庭,都能在这里找到属于自己的理想生活。
联系方式
18662309054
在这里,遇见更好的自己,遇见理想生活的模样。
声明:本文由入驻焦点开放平台的作者撰写,除焦点官方账号外,观点仅代表作者本人,不代表焦点立场。


