桃源新著售楼处电话-桃源新著(桃源新著)首页网站-桃源新著最新房价-户型-容积率-小区配套-楼盘详情/价格/户型
扫描到手机,新闻随时看
扫一扫,用手机看文章
更加方便分享给朋友
太仓桃源新著售楼处电话:400-8828-814✔✔【预约热线】桃源新著售楼处营销中心:400-8828-814桃源新著售楼处电话/地址☎:400-882-8814(开发商热线)如有问题欢迎来电咨询,专业一对一热情服务,让您用专业眼光去买房。户型面积:102平洋房、134、143平叠加别墅,价格:洋房15500-19000,别墅20000-24000。
项目地址:弇山东路与太平北路交汇处
绿化率: 37%
容积率: 1.6
桃源新著售楼处电话:400-882-8814
太仓桃源新著售楼处电话☎:400-8828-814(售楼处预约看房热线)
太仓桃源新著售楼处电话/地址☎:400-882-8814(预约热线)√√项目位于太平北路西,城北河南(气象局对面),开发商是太仓城发集团,规划18幢建筑面积约102㎡墅质洋房/143㎡城央墅。
太仓桃源新著售楼处电话☎:400-8828-814(售楼处预约看房热线)该项目作为主城生态宜居之地,更是站位太仓发展建设优先之地。城北湿地公园、净水公园、弇山园、城北河的三园一河自然景观环绕之下,推窗即景。
申请注意事项
1, 太仓购买首套房才能申请;
2,夫妻双方如都符合条件可叠加享受;
3,人才房办理产领证三年后才可转让。
*高新区人才购房补贴政策详情请咨询太仓市高新区人社局
太仓桃源新著售楼处电话☎:400-8828-814(售楼处预约看房热线)
太仓桃源新著售楼处电话/地址☎:400-882-8814(预约热线)√√桃园新著,太仓主城内改善标杆作品, 约1.6容积率,约37%绿地率,约82%得房率,主城低密居住,社区北面约150米(直线距离)即为城北湿地公园,外享万达南洋成熟双商圈,太仓桃源新著售楼处电话☎:400-8828-814(售楼处预约看房热线)更有市一中在内的8所学府环伺。
太仓市一中|图源网络
子女教育更是桃园新著性价比核心亮点
约3km内坐拥市一中在内的8座学府
完整且优异的教育链
给下一代一个稳稳的教育起点
“马路就是公园,出门都是景点”
在享有花园城市美誉的太仓城
如何拥有一座繁华与生态兼得的改善居所?
桃园新著近邻城北湿地公园(约150米)
净水公园、城北河,多园一河的自然围合之下
生态居住价值在主城之中弥足珍贵
太仓桃源新著售楼处电话☎:400-8828-814(售楼处预约看房热线)
【一条太平路 繁华一座城】
主城的好 懂生活的太仓人都懂!
太仓桃源新著售楼处电话/地址☎:400-882-8814(预约热线)√√项目位于高新区核心板块,(老城区板块)交通四通八达,辐射周边多条主干道,门口就是太平路,过两个红路灯即可到达人民路,享一步繁华,西侧沪宜公路往南无缝对接上海。太仓桃源新著售楼处电话☎:400-8828-814(售楼处预约看房热线)
太仓桃源新著售楼处电话☎:400-8828-814(售楼处预约看房热线)主城区历史发展积淀深、配套醇熟、生活便利度高、极具生活气息;同时也是政府着力打造的高端生态宜居区。这里土地资源稀缺,住宅用地寸土寸金。城发桃园新著项目精心选址于老城区核心位置,闹中取静,打造主城目前首位低密度高端品质住区。
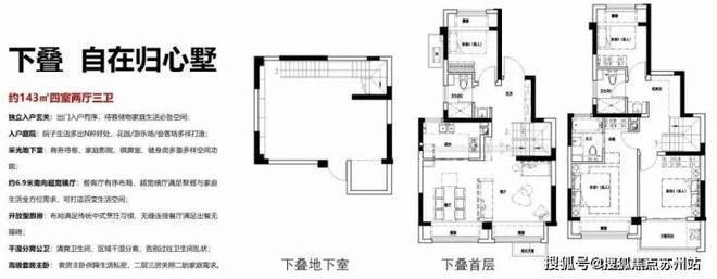
143㎡下叠加户型赏析
143㎡中叠加户型赏析
143㎡上叠加户型赏析
太仓桃源新著售楼处电话:400-8828-814✔✔【预约热线】桃源新著售楼处营销中心:400-8828-814桃源新著售楼处电话/地址☎:400-882-8814(开发商热线)如有问题欢迎来电咨询,专业一对一热情服务,让您用专业眼光去买房。户型面积:102平洋房、134、143平叠加别墅,价格:洋房15500-19000,别墅20000-24000。
声明:本文由入驻焦点开放平台的作者撰写,除焦点官方账号外,观点仅代表作者本人,不代表焦点立场。


