金色宝邸售楼处电话:400-8673-567上海金色宝邸位于宝山区罗泾,处于城市黄金轴线上,独栋别墅建面约300-500平方米,总价约1000万起/套。同时,项目周边配套设施完善,包括交通、教育、医疗等,未来发展前景广阔。
金色宝邸售楼处电话:400-8673-567
上海金色宝邸24小时vip热线☎:400-867-3567
城芯奢居,学府环伺,繁华在握。品质样板敬呈,臻稀房源递减!
金水湖畔类独栋别墅
建面约:300~500㎡
总价约:1000万起/套
55席臻藏 现房销售
编辑

上海“2035规划”明确提出, 上海要主动服务“一带一路”建设、长江经济带发展,主动融入长三角区域协同发展。宝山作为长三角枢纽存在,被纳入主城区,开启新一轮时代红利,以北郊未来产业园为转型驱动,致力打造北上海新兴产城中心,城市资源全面升级。
金色宝邸售楼处电话400-867-3567
编辑

(示意图)
随着“2035”战略规划定调,北郊迎来交通焕新, 形成“二纵一轨”立体交通。S7沪崇高速的一期在建、沪太路快速化将促进交通路网的焕新升级;规划中运量交通接驳轨道交通7号线,实现快速通达市区。
金色宝邸售楼处电话400-867-3567
(示意图)
编辑

上海北郊未来产业园是浦东金桥股份与宝山工业园区合作的科技产业园项目,承载区域产业转型任务, 助力打造“上海制造”品牌,着力推动机器人、高端装备、关键智能部件等领域的研发和产业化。智能制造、新材料、移动互联网和健康产业等四大产业将成为支柱产业。
编辑

罗泾处于上海市北部,是宝山区城市建设区及上海国际航运中心的组成部分, 规划以一核:罗泾公园为生态核心,二轴:以陈功路、罗宁路为城镇发展轴,三带:荻泾河、小川沙河、陶家河绿化景观带环绕,建设成为以中高档居住为主体,融行政办公、商业服务、文化教育、休闲娱乐等多元功能为一体的水韵生态城。美兰金色宝邸,正处于一核、二轴、三带的核心交集,中心区位天然优越,尽享城市发展黄金轴线带来的便捷生活及无限价值。而 【美兰金色宝邸】位于宝山区罗泾。
金色宝邸售楼处电话400-867-3567
编辑

【美兰金色宝邸】由上海顾村房地产开发(集团)有限公司开发的罗泾B1-4地块居住小区(金色宝邸), 小区由4幢小高层和55栋联排住宅构成。房源建面约300㎡~398㎡,总价约1000万起/套。
编辑

小区建筑采用经典优雅英伦风格, 近邻115亩罗泾公园仅500米,不仅饱览自然风光,更如同拥有一个天然大氧吧,时时刻刻空气清新。
金色宝邸售楼处电话400-867-3567
编辑

编辑

编辑

编辑

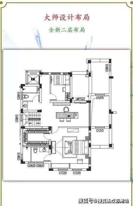
项目在售户型图
编辑

编辑

编辑

编辑

项目样板间实景照
编辑

编辑

编辑

编辑

编辑

编辑

编辑

编辑

编辑

项目周边配套
项目位于罗泾镇中心区,周边配套成熟,罗泾中学、罗泾镇卫生服务中心仅一河之隔,周边成熟小区林立,项目西侧地块系规划商业地块,坐享城市便捷生活。 10分钟内接驳轨道交通7号线美兰湖站及1号线富锦路站,尽享成熟便捷交通,出行无忧。
金色宝邸售楼处电话400-867-3567
编辑

金色宝邸售楼处电话:400-8673-567
上海金色宝邸24小时vip热线☎:400-867-3567
一、买房前须知
1、民用住宅建筑权属年限为70年,商用房屋建筑权属年限为40年,工业用建筑是50年。
2、在国家有关房地产法律法规中,没有“意向金”的提法,要么是定金,要么是保证金。
3、挑选户型至少少需要以下几种图:规划图、单元平面图、户型平面图。
4、低层为一层-三层;多层为四层-六层;小高层为七层-九层;高层为十层及以上。
5、别以为九到十一楼不错,这是阳光最强烈的位置。
6、大家购房所付的保险费其实是可以打八五折的,外面的保险公司都可以为你打折。
7、别以为实测面积是对的,自己带上卷尺测量。
8、购房时大都会有一些面积是赠送的,如阳台。阳台分为封闭和半封闭两种,封闭阳台要全部算面积,半封闭阳台只算一半面积,半封闭阳台越多越超值。
二、关于住宅的长宽高
9、住宅的净高,是指下层地板表面或楼板上表面到上层楼板下表面之间的距离
10、住宅的开间,是指一间房屋内一面墙皮到另一面墙皮之间的实际距离。
11、住宅的长度和进深,是指一间独立的房屋或一幢居住建筑从前一墙皮到后一墙皮之间的实际长度。
12、住宅的层高,是指下层地板表面或楼板表面到上层楼板表面之间的距离。
三、住房公积金冷知识
13、提取公积金缴付房租的条件是房租超出家庭工资收入规定比例的。14、职工死亡或者被宣告死亡的,职工的继承人、受遗赠人可以提取职工住房公积金账户内的存储余额,无继承人也无受遗赠人的,职工住房公积金账户内的存储余额纳入住房公积金增值收益。15、目前装修自住住房不能办理住房公积金提取,也不能申请住房公积金贷款。
14、购买门面房不符合住房公积金提取的条件,不能提取住房公积金。
15、职工办理离退休的,可以提取住房公积金,并注销其住房公积金账户,但办理提前退养或内退的职工不能提取住房公积金。
16、住房公积金组合贷款是指个人申请住房公积金贷款不足以支付购买住房所需资金时,其不足部分向贷款银行申请住房商业性贷款的两种贷款之总称。
17、职工考取了研究生,但户口并未迁出本市或考取的是本地院校的研究生,这种情况是不能提取住房公积金。
18、凡在本区域内购买建造、翻建、大修自住住房的职工,可以申请公积金贷款。
四、关于过户
19、继承过户费用:继承权公证。200元公证费、280元登记费,总计480元。
20、赠与过户费用:个税契税公证费。1050元公证费(交易金额的千分之三)、280元登记费、契税10500元,总计11830.
21、二手房过户费用:营业税个税契税。房子买入超过5年后卖出,无营业税、契税1%(购房)3500元、个人所得税(35-25)*20%=20000元、交易费420元、登记费80元。总计24000元。
五、关于贷款
22、目前个人住房贷款还款方式主要为等额本金还款和等额本息还款两种。
23、区别:等额本息,就是每个月还款的“本息”之和始终保持不变。而等额本金,就是每月的还款总额里,本金部分始终保持不变,利息另算。
24、配偶买过房且贷款未还清,另一方买房仍算作二套房,不能享受购房的各种优惠政策。
25、向银行贷款过程中可能出现的各项手续费:公证费/律师费/保险费/评估费/手续费等。
26、正常买房按揭贷款一般只产生两类费用:手续费、评估费。
金色宝邸售楼处电话:400-8673-567
上海金色宝邸24小时vip热线☎:400-867-3567