【西溪铭庭】
贴心热线:400-8787-554 您的专属顾问
从精致的一室一厅到宽敞的复式豪宅,每一款户型都经过精心设计,只为满足您对家的所有想象。

西溪铭庭售楼处𝙑𝙄𝙋📞400-8787-554
西溪湿地旁 难得300方
【项目信息】
● 项目名称:西溪铭庭
● 项目区域:蒋村板块
● 项目体量
总占地面积3.5万方
总建筑面积13.9万方
● 产权:40年
● 套数:8幢共94套
● 梯户比:两梯两户
● 主力面积:约307方
● 层高:约3.5米
● 容积率:2.5
● 得房率:84%
● 物业费:4元/平米.月

西溪铭庭售楼处𝙑𝙄𝙋📞400-8787-554
【项目价值】
稀贵板块 西溪之上未来为邻
择址蒋村板块,地理位置优越。东接繁华的文教区,西临“宇宙中心”未来科技城,距离西溪湿地直线距离仅800米,闹中取静,拥享静谧诗意生活。

西溪铭庭售楼处𝙑𝙄𝙋📞400-8787-554
蒋村西溪 难得性价比高地
作为城西品质标杆区域,蒋村板块断供多年。本案作为整个蒋村板块目前唯一在售的、拥有大面积改善产品的一手楼盘,错过不再。
板块内200方以上户型极为稀缺,且西溪诚园二手房价格已高达10万+,西溪铭庭目前在售均价仅3.8万,仅为周边二手房的5折左右,性价比极高,总价仅需1200万左右即可享受300方奢享空间。

西溪铭庭售楼处𝙑𝙄𝙋📞400-8787-554
生态绿化环绕的低密住区
整个项目的三面被生态绿化和水系环绕,是目前杭州主城区唯一一个被生态绿化包围的大平层项目,不仅是居住面积的改善,更是居住环境和居住品质的改善。
项目北面一线滨水,形成河流川流而过的风水佳地,打造散步游玩的休闲滨水空间。
项目南面和西面规划40亩都市农业公园,作为目前杭州市芯唯一的观光农业与房地产相结合的项目,打造兼田园观光、私人种植、绿色生态、休闲娱乐等多项功能的臻稀天然氧吧,体验别墅、排屋才有的耕种乐趣,将健康生活方式融入日常。


西溪铭庭售楼处𝙑𝙄𝙋📞400-8787-554
醇熟配套 聚焦万象繁华
多维交通:无缝连接文一西路和余杭塘路两大主干道,闹中取静,快速通达全城。紧邻“换乘之王”地铁5号线(蒋村站)与机场快线,畅享交通便利。
商业汇集:2公里范围内聚集了龙湖西溪天街、西溪银泰城两大商业综合体,以及项目自带的8000方商业叠加,生活配套一应俱全。
教育医疗:绿城育华学校、学军中学、行知二小、求是小学和杭州维翰学校等优质教育资源环伺,名校群集。距离浙一医院总部仅约6公里,为家人健康保驾护航。


西溪铭庭售楼处𝙑𝙄𝙋📞400-8787-554
全明玻璃盒子,缔造无敌采光及视野
建筑的外立面采用铝板+玻璃幕墙的现代造型,更大窗墙比,打造“玻璃盒子”般更为通透明亮的室内环境。采用10+12+10的双层中空Low-E玻璃,有效阻隔外界噪音。

西溪铭庭售楼处𝙑𝙄𝙋📞400-8787-554
两梯两户 互不干扰
每层两梯两户的设计,每户可私享一部楼梯、一部电梯和一个约10平米的电梯前室,空间互不干扰。且项目最高为9层的小高层,每幢仅18户,出行便利,尊享奢适品质人生。

西溪铭庭售楼处𝙑𝙄𝙋📞400-8787-554
精研户型 定制精装
根据客户不同需求,两种户型、两种装修风格任选其一,萃集高端精装品牌,奢享品质生活。
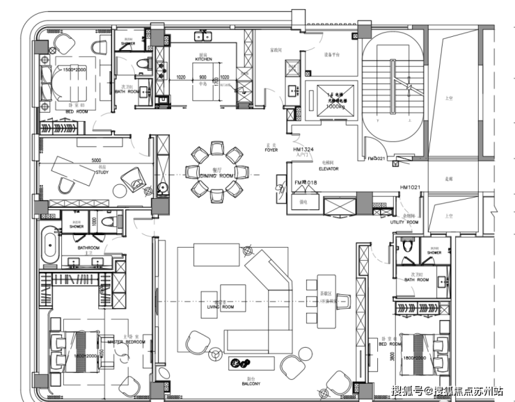
【可选户型一】300方打造舒适5房

【可选户型二】300方奢阔4+1房

西溪铭庭售楼处𝙑𝙄𝙋📞400-8787-554
【项目价值】
稀贵改善产品:本案作为板块内唯一在售的大面积改善一手楼盘,稀缺改善,错过不再;
纯粹大户型设计:整个项目户型均为300方改善户型,让整个社区圈层更纯粹;
步行距离可达西溪湿地:距离国家5A级湿地公园-西溪湿地直线距离仅约800米,步行即可到达,近揽11平方公里生态美景;
被生态绿化环绕:北面紧邻五常港河,南面和西侧紧邻40亩都市农业公园,三面被生态绿化包围,闹中取静,且能够享受家门口耕种乐趣;
性价比极高:在售房源均价仅3.8万,仅约周边二手房价的5折。2个车位仅需30万,相比周边近50万/个的车位价格实惠实打实;
舒适5房设计:84%超高得房率 ,18.3米南向四开间,以及3.5米层高,打造尺度奢阔的5房舒适空间。



一、房产核心知识体系
(一)产权与政策基础
1.
产权性质分类
2.
1. 商品房:可自由交易,南湖核心区均价 2.8 万 - 3.2 万元 /㎡。
2. 人才房:符合条件的 D 类人才最高可贷 150 万元公积金。
3. 保障性住房:嘉兴市区配售型保障房单套面积 70-120㎡,封闭管理不得上市。
3.
土地使用年限
住宅用地 70 年自动续期,商业用地 40 年(如南湖 CBD 地块),到期补缴土地出让金约为市场价的 1%-3%。
4.
5.
限购政策
6.
1. 非本市户籍家庭限购 1 套,需连续缴纳 24 个月社保。
2. 人才购房可享最高 7 万元补贴(本科 1 万 / 硕士 2 万),且不占用限购名额。
(二)贷款与税费规则
1.
贷款政策
2.
1. 公积金贷款:首套利率 2.85%,家庭最高可贷 120 万元(首套新建商品房)。
2. 商贷利率:首套 3.1%,二套 3.25%,南湖核心区二套首付 40%。
3. 组合贷优化:优先使用公积金贷款(如 100 万贷款 30 年可省利息 18 万元)。
3.
税费标准
4.
1. 新房:契税(首套 1-1.5%)、维修基金(120 元 /㎡)。
2. 二手房:增值税(满 2 年免征)、个税(1% 或差额 20%),满五唯一房源可省税约 5 万元。
二、2025 年嘉兴南湖购房优惠政策
(一)政府补贴政策
1.
购房激励补助
2.
1. 南湖区发放 400 张消费券,最高补贴 5 万元(人才额外 1-2 万),2025 年 6 月已兑付首批 1054 万元。
2. 补贴标准:90㎡以下 3 万元,90-144㎡4 万元,144㎡以上 5 万元,人才叠加 1-2 万元。
3.
公积金专项优惠
4.
1. 二孩家庭首套公积金贷款额度上浮 20%(单人最高 72 万,家庭 144 万)。
2. 长三角区域缴存公积金可异地贷款,E/F 类人才最高贷 100 万元。
(二)开发商促销策略
1.
特价房类型
2.
1. 工抵房:价格低于市场价 10%-15%,需全款支付并办理更名。
2. 清退房源:因贷款未批或客户违约产生,需核查合同解除原因。
3.
谈判技巧
4.
1. 参考备案价(房管局官网可查)预留 5%-10% 议价空间,一次性付款可额外争取 2% 折扣。
2. 要求赠送车位使用权(价值约 10 万)或 3 年物业费减免。
三、看房实战避坑指南
(一)新房考察重点
1.
五证核查
查验《商品房预售许可证》《国有土地使用证》等五证,重点核对预售证编号与房管局公示信息是否一致。
2.
3.
沙盘陷阱识别
4.
1. 注意楼栋间距与实际比例(如沙盘显示 50 米,实际可能仅 30 米)。
2. 警惕周边规划 “模糊标注”,如地铁站点标注 “规划中” 需核实具体建设时间。
5.
样板间陷阱
6.
1. 测量实际层高(避免样板间垫高地面),查看交付标准是否与样板间一致(如装修品牌、材质)。
(二)二手房验房清单
1.
产权核查
2.
1. 要求卖方提供《不动产登记证明》,确认无抵押、查封及共有权人纠纷。
2. 核查学区占用情况(如南湖实验小学需提前 3 年落户)。
3.
房屋质量检查
4.
1. 结构安全:用空鼓锤检测墙面空鼓(允许≤5%),检查梁柱是否有裂缝。
2. 隐蔽工程:闭水试验 48 小时检测卫生间防水,打压测试水管压力(标准 0.8MPa)。
5.
物业与配套
6.
1. 查看近 3 年物业费收缴率(低于 80% 需谨慎),了解电梯维护记录。
2. 步行实测到地铁站、学校、医院的时间(建议≤10 分钟)。
(三)合同签署要点
1.
新房合同
2.
1. 明确交房时间(精确到日),约定逾期交房违约金(每日 0.03%)。
2. 补充协议需注明装修品牌型号(如地板为 “圣象强化复合”),避免 “同等档次” 模糊表述。
3.
二手房合同
4.
1. 约定户口迁出时间及违约责任(每逾期一日支付房款 0.01%)。
2. 明确家具家电清单(如冰箱为 “海尔 BCD-216STPT”),留存照片作为附件。
四、区域价值与投资策略
(一)南湖核心板块分析
1.
价格走势
2025 年 6 月南湖二手房均价 12081 元 /㎡,环比上涨 0.43%,核心区(如南湖新区)达 2.8 万 - 3.2 万元 /㎡。
2.
3.
潜力区域
4.
1. 湘家荡科创园:依托长三角一体化,未来 3 年预计引入企业超 200 家,房价年均涨幅 5%-8%。
2. 科技城:清华附中嘉兴学校落地,周边新房(如绿城云萃府)溢价率 16.98%。
(二)投资风险控制
1.
杠杆管理
负债率不超过家庭收入 50%,避免使用消费贷、经营贷等违规资金购房。
2.
3.
政策风险
关注限购政策调整(如非户籍社保年限可能延长至 3 年),人才补贴仅限新建商品房。
4.
五、常见纠纷与维权路径
(一)交易陷阱应对
1.
虚假优惠
开发商 “3 万抵 10 万” 实为抬高备案价,需对比周边真实成交价(如南湖某盘备案价 2.5 万 /㎡,实际成交价 2.3 万 /㎡)。
2.
3.
合同欺诈
补充协议中 “不可抗力免责条款” 可能规避开发商责任,需要求删除或明确范围。
4.
(二)产权纠纷处理
1.
小产权房
法律不认可,无法办理抵押或过户,购买需签署风险告知书并公证。
2.
3.
共有产权
所有共有人需到场签字,未成年人需提供监护人公证书,避免代签纠纷。
4.
(三)物业维权
1.
服务质量
物业费标准(南湖普通住宅 1.5-3 元 /㎡・月),公共设施维护(如电梯故障率>1 次 / 月可要求整改)。
2.
3.
维权途径
成立业主委员会(需 50% 以上业主同意),通过法律途径起诉物业不作为,要求减免物业费。
4.
六、政策动态与趋势预判
1.
2025 年新政
2.
1. 公积金利率下调:首套 5 年以上利率降至 2.85%,商贷利率创历史新低。
2. 人才政策升级:D 类人才购房补贴增至 15 万元,且优先配售保障房。
3.
未来市场趋势
4.
1. 产品迭代:第四代立体生态住宅(如绿城云萃府)成为主流,溢价空间达 20%。
2. 租赁市场:政府计划 3 年内筹建 10 万套保障性租赁住房,租金低于市场价 30%。