苏州顶配豪宅(紫金·翡丽甲第),楼面地价39027元/㎡!马上公开
扫描到手机,新闻随时看
扫一扫,用手机看文章
更加方便分享给朋友
奥体全新豪宅紫金·翡丽甲第爆出消息,楼盘展厅将在本周末公开,年中左右开盘。
紫金·翡丽甲第地处儿童医院东侧、奥体中心以北,周边优质资源聚集,暂无直接竞品。
今年2月,紫金·翡丽甲第规划出炉,地块占地约4.9万㎡,容积率1.5,总建面约11.9万㎡。规划6-9层纯洋房,约300多套,户型起步190㎡,其次是225㎡,最大户型260㎡。翡丽甲第售楼处电话:18662309054
你觉得这个楼盘要卖多少钱? 单选
5万-6万/平
6万-7万/平
7万/平以上
紫金·翡丽甲第,原为金隅保利奥体04地块,该地块于2023年11月29日(苏州第八批次土拍)拍出,这也是苏州取消土地限价后的首场土拍。当时地块吸引十几家房企报名、竞价120轮!最终金隅拿地,成交楼面地价39027元/㎡,远超预期!

金隅此次大手笔拿地进驻苏州,这让不少人对金隅产生好奇。
今天下午,直击苏州楼市微信平台赴北京,走进金隅集团,深度了解这家拥有着60多年精工底蕴的国之巨匠。

据了解,金隅集团不仅承担北京人民大会堂等重大建设任务,提供冬奥会场馆建设服务,更致力于传承中华文化。
再比如,龙顺成作为国家级非物质文化遗产,是金隅集团旗下核心公司之一,先后为人民大会堂、颐和园等重要场所配置中式家具。再比如,北京金隅琉璃作为现存经考证历史最悠久的皇家琉璃官窑,新中国成立后,又为人民大会堂、国家博物馆等当代建筑供应琉璃制品,可见企业社会责任感。
1987年,金隅集团投身房地产开发,深耕细作37年,是北京综合实力最强的地产开发企业之一。
就在4月8日,金隅集团党委书记、董事长姜英武,参加国务院总理李强召开的经济形势专家和企业家座谈会。可见其地位及实力。

金隅商品房开发业务已布局全国17城超130个项目。2013年金隅勇夺南京地王土地,在河西中部打造金隅紫京府,至今仍是品质标杆,我身边好几个南京同行,就住在这个小区。
金隅TOP产品系“紫京”系,背后大有来头,取义根正苗红。“紫”,源起北京紫禁城的显赫、尊贵、威仪,紫京系之“京”,指国都或首都。北京都城文化的厚蕴,正是紫京系的根脉。在南京打造的金隅紫京府、金隅紫京叠院、紫京熙院叠墅、金隅紫京云筑,每个楼盘都成了区域封面盘。

紫金·翡丽甲第由北京金隅&保利置业联合开发,产品设计由绿城设计院设计。不仅引进金隅“紫京”系,更同步引入保利置业TOP产品“甲第”系。
央企保利置业实力毋庸置疑,目前已深耕苏州20年,打造超20个楼盘。本次,保利置业将王牌产品系“甲第”系,引入苏州园区。要知道,上一座“甲第”,正是位于上海东外滩的翡丽甲第。项目于2017年底竣工,拥有约2000㎡下沉式会所,至今仍是东外滩二手房天花板,挂牌均价约18万/㎡。
紫金·翡丽甲第是苏州7年以来唯一不限价土地,地块装标规定不低于5000元/平,完全就是TOP级。楼盘下沉式会所和多个泛会所,包括室外泳池、健身房、私宴厅、私人会客厅、棋牌室等。
小区外立面采用大面积玻璃、深色铝板、浅色铝板、浅灰色石材组成,大堂层高3.6m,层高为3.15m,非常豪气。
紫金·翡丽甲第预计上半年入市,产品力据说要刺破苏州天花板,期待值拉满。
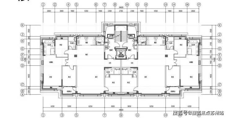
目前官方户型图暂未公布,网上已出户型平面图,可做参考:
建面约190㎡户型,四房两厅三卫:
建面约225㎡户型,四房两厅三卫:
建面约290㎡户型,四房两厅三卫:
以上是紫金·翡丽甲第最新消息,你觉得人气会火爆吗?
翡丽甲第售楼处电话:18662309054
声明:本文由入驻焦点开放平台的作者撰写,除焦点官方账号外,观点仅代表作者本人,不代表焦点立场。


