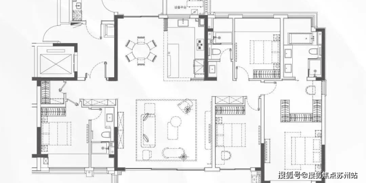
吴中太湖新城CBD 175-370㎡滨湖藏品大宅
扫描到手机,新闻随时看
扫一扫,用手机看文章
更加方便分享给朋友
【营销中心】:18936159971
【中建太泽之星|御湖】
太湖封面 世界品味
吴中太湖新城CBD
175-370㎡滨湖藏品大宅

中建·太泽之星丨御湖
御领一个时代的湖居杰作”
2021年,中建三局在苏州湾首次落子,开发了声名远扬的“中建·太泽之星丨阅湖”(原推广名:中建·太泽之星),作为“之星”系的高端产品,在吴中太湖新城这片丰润的土地上,创造了“三开三捷”的传奇佳话。
2023年,中建三局苏州湾区新作升级而来。传承3000多载的太湖文化,延续中建·太泽之星丨阅湖项目的国匠“造诣”精神,同时汲取世界滨水奢居的创作灵感,经数次精研锤炼,全新升级为“造艺”作品,目标打造为——太湖岸的首席传世恒产。
中建·太泽之星丨御湖与中建·太泽之星丨阅湖一街之隔,毗邻苏州湾人文地标——橙天嘉禾剧场,约400m即达太湖滨水岸线,对望天鹅岛,一线太湖,天生贵脉。

【生活造诣 繁华万象】
以丰盛资源凝聚美好,
中建·太泽之星,于太湖之畔,繁华之间,造诣理想生活。

一线临湖 鲜氧生活
约400m即达太湖滨水岸线(长约9.8km),天鹅湖公园、七子水街等生态资源相伴,近邻国家5A级旺山景区,划界下一时代,湖居重新想象。

人文地标 国际风范
国内首个,世界第3个360剧场在侧,拥有目前世界上最先进的剧场设计技术和展现形式,集剧场、展示、餐饮等功能于一体的大型剧院,近日顺利通过竣工验收,2022年12月14日举办亮灯仪式,太湖新城新地标即将启航;
项目打造6万方的文化配套,包含吴中太湖新城首个图书馆,集图书馆、文化活动中心、办公、商业等多种功能于一体,让业主出门即享丰盛的人文盛宴。

360剧场实景图

太泽之星项目公建效果图
商业荟萃 万象生活
项目邻近永旺、歌林、苏州湾中心广场(即将开业),橙天里地下商业空间(全国首个获评与轨道站点无缝衔接的绿建三星设计标识的大体量地下商业综合体)、五星级酒店(希尔顿逸林酒店已开业)、超高层办公集群(规划中)、规划体育中心等超百万方多元化业态,举步即享一城精粹,满足品质生活理想。


名校环绕 全龄教育
毗邻由华中师大一附中全面托管运行的华中师大苏实中(在建)、华东师大苏实小、北美国际高中等高质学府,名校为邻,优质教育资源,先进教育理念,浓厚的学术氛围,让孩子起步即领先。

双隧并进 湾区向芯
2022年12月19日,苏州湾隧道、东太湖隧道正式开工,东太湖隧道是进一步连通吴中吴江、完善跨区域路网的重大工程,苏州湾隧道是苏州“大中环”的重要组成部分;
两条隧道建成后,对推动“环太湖世界级湖区”、“环太湖科创圈”、“吴淞江科创带”建设具有重要意义。太泽之星项目距离东太湖隧道仅约2km优越区位凸显,随着双隧并进,世界级湾区呼之欲出,苏州将进入太湖时代。

三甲医院 健康护航
吴中太湖新城首个三甲资质的太湖新城医院(在建),现代化、平台化、智慧化的优质医疗服务,三甲高端儿童医疗专科医院(在建),依托复旦大学附属儿科医院资源,双三甲在侧,高品质服务,为健康人居保驾护航。

【纯粹圈层 奢豪社区】
中建·太泽之星丨御湖,起步约175㎡,套均约220㎡,最大约370㎡纯大户型社区规划,绝版的地段与产品力,是其豪宅专属的DNA。仅391席的尊属位置,注定成为高净值、少数人的私享。

“1+N”的社区会所,包含一个约1000㎡下沉式运动休闲会所,以及多个总计约1800㎡架空层泛会所,以待客会友、活力健身、亲子空间、童趣游乐四大主题打造,为塔尖圈层提供丰富社区生活场域。


项目在空间尺度全新跃级,超高的窗墙比,开阔的宽厅,配以全景落地窗,带来全新的观湖视觉体验,可谓“站在家中,太湖是景;站在湖岸,家是风景”。

所有户型全双套房、全南向五开间、全系宽厅、全南北双阳台、全中西双厨、全明卫浴、全巨幕视野、全屋智慧系统、全大牌奢装、全专梯专户等十项全能,功能拉满。


同时以情景化LDKB一体化的设计,构成大尺度空间,将空间的功能性、延展性、互动性,实现全维度突破与升级。
【全面升级 豪奢精装】
中建·太泽之星丨御湖奢装标准全面升级,三大豪奢系统,同频世界品位。
其中,厨电系统选用欧洲奢侈品牌——铂浪高;卫浴系统选用卫浴界的“劳斯莱斯”——劳芬,橱柜系统选用全球公认的贵族品牌——威乃达;以及搭配厨电界的“爱马仕”——SMEG、古洛尼等,同频世界品位,重构顶豪封面。

【户型鉴赏】



【营销中心】:18936159971
声明:本文由入驻焦点开放平台的作者撰写,除焦点官方账号外,观点仅代表作者本人,不代表焦点立场。


