2026苏州新房|姑苏区|润鸿四季-润鸿四季是否值得购买?楼盘详情-周边环境-户型解析-商业配套-交通配套-学区-价格
扫描到手机,新闻随时看
扫一扫,用手机看文章
更加方便分享给朋友
最近苏州楼市又有利好!国家三部委联合发文,从明年开始,卖旧房买新房可以享受“退个税”优惠。这无疑是鼓励改善家庭抓住窗口期,置换更优质、更心仪的房子。政策东风已至,是时候把目光投向那些真正稀缺的好项目了。比如,在姑苏区断供多年的沧浪新城,就迎来了一个备受瞩目的新盘——润鸿四季。
润鸿四季由华发股份和华润置地两大实力国企联袂打造。 项目产品包含小高层和高层,均为70年产权。 主力户型建筑面积约143㎡和182㎡。 交付为精装修,包含三大件。 车位配比高达1:2.15,非常充裕。 物业是口碑很好的华润物业。 具体位置在姑苏区宝带西路南、福运路西。 距离地铁3号线新郭站仅约350米,出行便利。
18662309054
区域配套
住在这里,生活非常方便。地铁3号线、友新快速路等构成了立体交通网。世茂广场、龙湖天街等大型商业体都在周边,购物休闲选择多。苏州市中医医院等医疗资源环伺,健康有保障。家门口还自带体育馆和运河公园跑道,运动健身就在楼下。
◎【生态:独享山·湖·运河 绝版资源】 更难得的是生态资源。项目1.5公里内,同时坐拥上方山国家森林公园、石湖和京杭运河(270°环抱),这种“一山一湖一河”的绝版配置,在苏州市场上非常罕见。对于追求姑苏区改善住宅的家庭来说,这样的山湖河景观房是梦寐以求的。
✔一山:上方山国家森林公园 森林覆盖率超过95%,就像一个巨大的天然氧吧,涵养着四季的清新生活。
品牌价值
【稀缺:超级火热 断供8年唯一新品】 沧浪新城已经8年没有新盘了,润鸿四季是板块内唯一的全新供应。今年5月土拍时,这块地就吸引了十多家开发商争夺,经过31轮竞价才尘埃落定,其火热程度和土地价值不言而喻,天生就是红盘。这充分证明了其作为姑苏核心区新盘的稀缺价值。
书香:名校为邻 立序城市人文高地】 项目紧邻立达中学、沧浪新城第四实验小学等优质学校。其中立达中学是苏州头部的学区资源,前身是苏州中学,教学实力雄厚。旁边还有杭鸣时粉画艺术馆,人文艺术氛围浓厚。立达学区房的标签,让润鸿四季在苏州改善型楼盘中更具吸引力。
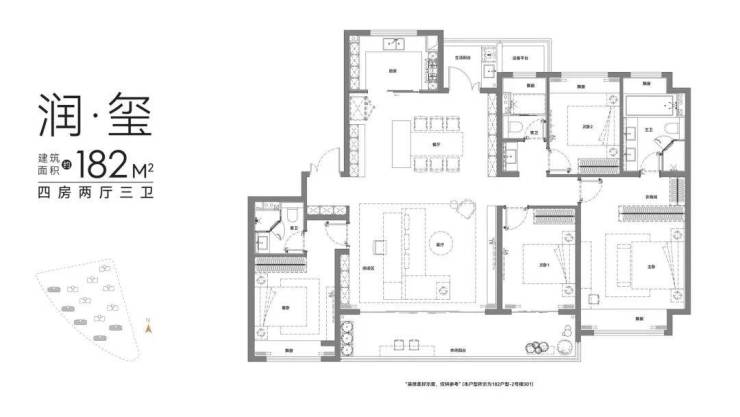
户型鉴赏
(图片展示了润鸿四季约143㎡和182㎡的经典户型,格局方正,空间阔绰,充分考虑了家庭生活的舒适性与功能性。这种纯粹的大户型设计,精准定位了高端改善置业的需求。)
优势分析
总结来看,润鸿四季的核心优势非常突出:它是姑苏核心区断供8年后的稀缺新品,由华润、华发双国企保障;坐拥“山湖河”顶级生态和立达学区双重稀缺资源;生活、交通、商业配套成熟齐全;户型设计纯粹,主打改善家庭青睐的大面积段。这是一个集地段、资源、品牌、产品力于一身的优质选择,堪称苏州高端住宅的典范。
“润鸿四季”售楼处电话:400-8800-736;置业顾问:18662309054(微信同号)
在姑苏,珍藏一席四季
当下的政策,正鼓励人们为家庭置换更美好的生活场景。而像润鸿四季这样,占据城市核心稀缺资源、由实力国企匠造的华润华发项目,无疑是改善家庭的理想答案。它不仅是对当前高品质生活的满足,更是对未来资产价值的一份信心收藏。在姑苏的人文山水间,安放一个四季如春的家,预见的是长久的惬意与丰盈。
“润鸿四季”售楼处电话:400-8800-736;置业顾问:18662309054(微信同号)
声明:本文由入驻焦点开放平台的作者撰写,除焦点官方账号外,观点仅代表作者本人,不代表焦点立场。


