高铁新城地标来了|丰隆海纹中心!铝板+玻璃+金属线条!也有四代住宅
扫描到手机,新闻随时看
扫一扫,用手机看文章
更加方便分享给朋友
目前高铁新城其实还有不少项目在售,但是纯新盘上,目前最快的也就是拿地两年多的高融置业高铁新城65号地块。
项目最近有了新动作,案名正式发布为:丰隆海纹中心!

丰隆海纹中心,即,苏地2021-WG-65号地块,位于相城区高铁新城水景路西、富翔路南,是2021年11月24日,高融置业以底价32162万元竞得,成交楼面价1244元/平。咨询热线:18662309054

项目的地块用途为商住混合用地,占地面积51691平,容积率5.0。根据要求,其住宅部分为公寓式住宅,且平均建筑高度需满足100米以上,住宅装标为2500元/平。
平面图上来看,项目将打造一栋50F超塔,为办公和酒店和5栋45F住宅。

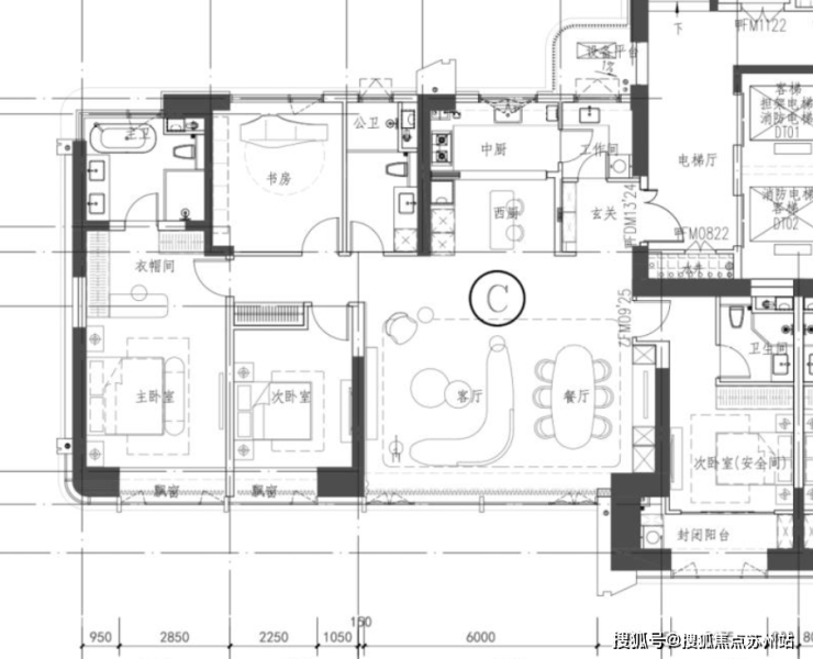
此前公示的是2#的平面图,一梯两户设计,只有种4房2卫设计。

4房2厅3卫

4房2厅3卫设计,中西双厨,南向约6米大横厅,主卧开间3.8米,带独立衣帽间和双台盆+浴缸的浴室,南次卧带封闭阳台和独立卫生间。
1#10层规划户型
根据此前官宣,该项目将由CDL新加坡城市发展集团打造。这也是丰隆城市中心的开发商。
从官方发布的消息来看,丰隆超高层综合体项目位于苏州高铁新城中部片区,由新加坡丰隆集团子公司新加坡城市发展有限公司开发建设,计划总投资30亿元人民币,集高端酒店、写字楼、住宅于一体,其中包括一座高度约280米的超高层建筑。项目预计于2029年初完工,致力于建设成为苏州高铁新城的新地标。
咨询热线:18662309054
声明:本文由入驻焦点开放平台的作者撰写,除焦点官方账号外,观点仅代表作者本人,不代表焦点立场。


