高铁新城璀璨新星|丰隆海纹中心|丰隆出品|海纹中心-图文详解-售楼处电话
扫描到手机,新闻随时看
扫一扫,用手机看文章
更加方便分享给朋友
高铁新城目前来看,在售项目其实还挺多的,目前主力在售的就是龙湖未来御湖境、大悦繁华图、江南云起、和风雅信和中建熙辰上院,这几个项目来看,差别也是比较大的,有第四代住宅、洋房、小高层和高层。纯新盘上,则相对比较少,除了04号地块,只剩下两个项目了,具体来看:
丰隆海纹中心
丰隆海纹中心,即,苏地2021-WG-65号地块,位于相城区高铁新城水景路西、富翔路南,是2021年11月24日,高融置业以底价32162万元竞得,成交楼面价1244元/平。售楼处电话18662309054

项目的地块用途为商住混合用地,占地面积51691平,容积率5.0。根据要求,其住宅部分为公寓式住宅,且平均建筑高度需满足100米以上,住宅装标为2500元/平。
平面图上来看,项目将打造一栋50F超塔,为办公和酒店和5栋45F住宅。
项目在最近发布了规划变更!
从变更说明来看,变化还是比较大的,其中比较明显的就是部分楼层增加了空中庭院,部分立面也由玻璃变更为铝板+玻璃+金属等!总的来说,品质感上升了,部分楼层也变成了第四代住宅!
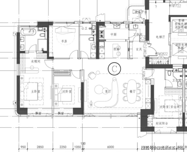
最新公示了1#10层平面图。
1#10层规划户型
此前公示的是2#的平面图,一梯两户设计,只有种4房2卫设计。

4房2厅3卫

4房2厅3卫设计,中西双厨,南向约6米大横厅,主卧开间3.8米,带独立衣帽间和双台盆+浴缸的浴室,南次卧带封闭阳台和独立卫生间。
根据此前官宣,该项目将由CDL新加坡城市发展集团打造。这也是丰隆城市中心的开发商。
从官方发布的消息来看,丰隆超高层综合体项目位于苏州高铁新城中部片区,由新加坡丰隆集团子公司新加坡城市发展有限公司开发建设,计划总投资30亿元人民币,集高端酒店、写字楼、住宅于一体,其中包括一座高度约280米的超高层建筑。项目预计于2029年初完工,致力于建设成为苏州高铁新城的新地标。
高杰置业高铁新城95号地块项目
高杰置业高铁新城95号地块项目,即,苏地2023-WG-95号地块,位于相城区高铁新城齐门北大街东、马泾路南,是2023年12月22日,汇欣鑫房地产&高融置业以底价127049万元竞得,成交楼面价15000元/平。售楼处电话18662309054

该地块用途为城镇住宅用地,占地面积47055平,根据公示信息,项目总建筑面积131699.23平,计容建筑面积84699平,容积率1.8.
根据规划,项目拟建14栋8-17F住宅,其中,3栋8F住宅、6栋10F住宅、2栋11+1F住宅、3栋17F住宅。

1,项目的容积率为1.8,其产品为洋房、小高层,其中以洋房的产品为主,其小高层仅有3栋;
2,从布局来看,项目整体呈现为南低北高;
3,从效果图来看,这是一个现代化风格的住宅社区;
4,从效果图来看,这是一个四代宅的住宅社区;


5,根据要求,该项目的住宅为全装修交付,最低装标为2000元/平;
6,其建筑面积≥100平,这也是一个改善型的住宅社区;售楼处电话18662309054
声明:本文由入驻焦点开放平台的作者撰写,除焦点官方账号外,观点仅代表作者本人,不代表焦点立场。


