整体户型设计上下叠的一层为1个卧室,大横厅,餐客厅一体,1个卫生间外加一个储藏室的设计,可满足家庭聚餐、会友等需求。户型方面为4房3卫的设计,四开间朝南,大横厅设计,阳台还连接卧室阳台,整个室内采光度通风度更…
苏州「保利姑苏瑧悦」
售楼处电话:18662309054
提前来-预约登记尊享售楼处1v1销售专业讲解〢一对一热情服务〢
温馨提示:网上售楼中心〢预约可享内部优惠〢匠心钜制-恭迎品鉴〢

保利·姑苏臻悦是保利“悦”字系产品,此前同为悦系品牌的“琅悦”已在狮山落地。

保利·姑苏臻悦 效果图
根据此前规划公示,保利·姑苏臻悦规划打造10幢住宅产品,其中1、4#为7F,3、7、10#为16F,2、6#为9F,5、8#为10F,9#为6F,整个项目仅276户。
保利姑苏瑧悦外立面,以“苏锦”针织的横平竖直美学为灵感,演绎为框体线条造型和简洁舒展的立面肌理,极具辨识度。
保利·姑苏臻悦打造建面约143㎡、159㎡、176㎡,三大改善户型。
此前公示了四种户型图。
高层3、10#,两梯四户设计,标准层户型为四室两厅两卫。南向面宽约11.8米,约8.2米阔景阳台与南向次卧相连,采光十足。

高层7# 两梯两户设计,标准层户型为四室两厅三卫。南向面宽约14.3米,南向两间套房设计,无论是尺寸感还是舒适度,拿捏~

4、8、9#两梯两户设计,标准层户型为四室两厅三卫。南向面宽约14.4米。

1、2、5、6#为一梯两户设计,标准层户型为四室两厅三卫,南向面宽约16米,厨房、餐厅、客厅、阳台相连,视野与空间无限延伸。进门处还配置了家政间,增加了存储空间。

土拍回顾——
2023年8月6日,苏地2023-WG-36号地块,开拍后仅1个小时,历经28轮竞价后,被保利发展拿下,楼面价约27561.91元/㎡,溢价率12.15% !

该地块属于姑苏区金门板块,位于金门路北、后文家巷西。地块一路之隔便是姑苏金茂府。地块位置也不错,生活颇为便利,但周围都是老旧小区,城市界面需提升。

2012年,金茂以总价23.2亿元,拿下苏地2012-G-98号地块(即姑苏金茂府),成为苏州当年的总价地wang,此前备案均价在2.5-3.5万/㎡,如今姑苏金茂府二手房挂牌均价在4.4万/㎡。

根据公示内容,和悦里塘雅苑拟建20幢叠拼+洋房+小高层住宅产品。其中9幢为4+1F叠拼,11幢为11F洋房、2幢为17F小高层住宅产品。

图片来源:苏州自然资源和规划局网站
叠拼方面,一梯两户,但都是双开门,有独立的入户玄关,相当于一梯一户。
整体户型设计上下叠的一层为1个卧室,大横厅,餐客厅一体,1个卫生间外加一个储藏室的设计,可满足家庭聚餐、会友等需求。

▲下叠

▲上叠
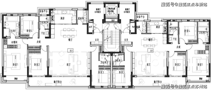
洋房方面,一梯两户的设计,但是都有双开门,设有独立的入户门厅。
户型方面为4房3卫的设计,四开间朝南,大横厅设计,阳台还连接卧室阳台,整个室内采光度通风度更高,自然居住体验也更舒适。3卧室朝南,其中2个是套房,全屋飘窗。

高层方面,为两梯两户,一层两个户型。
西边户为3房2卫的户型设计,餐客厅一体,大横厅设计,三开间朝南,两个卧室朝南,其中一个为套房主卧,全屋飘窗。
东边户也是3房2卫的户型设计,和西边户仅有的区别就是竖厅。购房者可根据自己的喜好选择。

同步公示的还有洋房的外立面,大面积玻璃,品质感还是可见一斑的。

周边配套:
和悦里塘雅苑位于相城元和片区,紧邻高铁新城,交通自然没话说。
苏州北站+地铁2号线+太阳路快速路,无论是对外还是对内交通都颇为方便快捷。

图源:今日相城
商业配套方面,吾悦广场、圆融、大悦城均已运营,板块内还有天虹、繁花等商业综合体,从规划图中也可看出,项目周边还规划了商业用地。

吾悦广场实景图
教育方面,南侧有蠡口实验小学和蠡口中学,可满足小业主的入学要求。

苏州「保利姑苏瑧悦」
售楼处电话:18662309054