杨浦城投·悦江湾(2025年杨浦城投·悦江湾)上海杨浦城投·悦江湾首页网站-杨浦城投·悦江湾楼盘详情-户型图/房价/周边配套
扫描到手机,新闻随时看
扫一扫,用手机看文章
更加方便分享给朋友
「杨浦城投·悦江湾」
建面约114m²3房洋房
建面约99-142m²3-4房(高层)
均价仅9.9万/m²,
不触发积分,不限售,低分/二套入手五角场城市副中心的绝佳时机来了!
「杨浦城投·悦江湾」营销中心热线:400-8783-873☎☎
在售户型图丨项目介绍丨最新房源丨周边配套丨详细解答〢⭐◆开发商营销中心诚挚邀请,一键预约,尊享内部折扣!匠心独运的精品项目,恭候您的品鉴与选择。⭐✅ 过来参观样板房烦请记得提前来电预约!✅ 为您安排楼盘现场销售全程接待并讲解,给您更贴心的看房体验!这是一个从城市站位、规划能级、生态环境、配套资源、社区产品等全方位领先的新房项目,超高性价比的价格买入!
一房一价表如下:
推售信息
项目主推建面约99㎡3房2厅2卫、约114㎡3房2厅2卫及约142㎡4房2厅2卫,共290套商品住宅,联动价9.9万/㎡。
不得不说,建面约99㎡3房2厅2卫主力总价在千万级,“一步到位”精装3房,是市区置业优选户型!
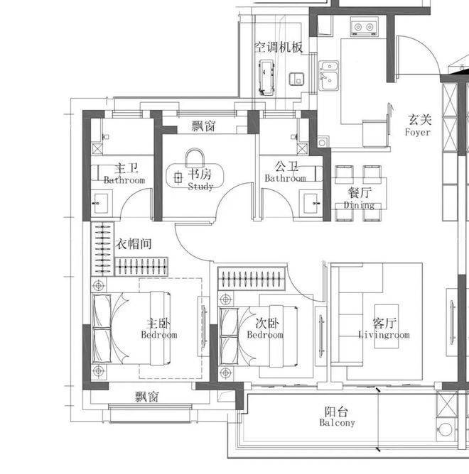
项目户型图(仅供参考)
▼建面约99㎡三房两厅两卫户型
(1T2户17层小高层)
建面约99㎡3室2厅2卫户型,主要位于1、2号楼,分为边套和中间套,做到了三开间朝南+超大阳台+动静分离+主卧套房设计,舒适度非常高的3房。
客餐厅相连,客厅+次卧南接超大阳台,室内空间尺度感十足,整个采光面拉到极致。
主卧大套房设计,带卫生间+飘窗,阔绰空间可以轻松改造出衣帽间,专属于主人的私密空间。
该户型能满足业主从二人世界到一家三口,再到二胎家庭的全生命周期需求。
实拍图(仅供参考,具体交付标准以合同约定为准)
▼建面约142㎡四房两厅两卫户型
(2T2户总高17层小高层)
建面约142㎡4室2厅2卫户型,主要位于3号楼,2梯2户设计,大大提升了入户尊贵感和私密性。
该户型做到了四开间朝南+南北通透+主卧套房设计+南卧带飘窗,一步到位的大4房。
客餐厅阳台一体设计,客厅南连宽景阳台,餐厅北连厨房,南北通透采光,将生活的奢度打开。
主卧套房设计,匹配独立卫浴、大飘窗,空间非常阔绰。
实拍图(仅供参考,具体交付标准以合同约定为准)
▼建建面约114㎡3室2厅2卫户型图
建面约114㎡户型是洋房产品,采光更好,垂直住户少,更清净,舒适度更高,居住体验更佳。
该户型做到了三开间朝南+超大面宽横厅+主卧套房设计+卫生间干湿分离+南北通透,功能性和尺度感完美结合。
客餐厅相连的大横厅,匹配同尺度超大面宽阳台,室内阳光满溢。
总的来说,五角场商圈是老牌城市副中心,底蕴非常深厚,区域内多年未有新房入市,改善需求急需释放。
杨浦城投·悦江湾作为五角场商圈有且仅有的新盘,联动价9.9万/㎡,含金量真的太高了!
项目效果图:
最近在后台,经常会有购房者问我们1000万总价房子买哪里?
1000万,真的不是个小数目了,可能很多人一辈子都存不到,要是在二三线城市,手握1000万,或许可以随便买大HOUSE。但是在上海,身经百战的购房者却发现,1000万总价的房子,其实真的不太容易买。
这个总价段的购房者,并不是单纯的只要求“上车”。更多的可能需要地段,需要地铁,需要商业,需要户型,需要品质……
这要是几年前,1000万,内环你随便进,现在外环内,都不好找。
看看,真如11万+,三林10万+,大宁12万+……
上海千万级新房供应并不算多,且入围门槛并不低。
老牌市区商圈,新盘价格不菲,千万级只能“捡漏”个别小面积产品型,可选择余地很小。而新兴市区商圈,如浦东前滩、徐汇滨江等板块,热门楼盘扎堆,入围分动辄80分起步!难度可见一斑!
当上海市区出现总价千万级改善型或者一步到位的三房产品,我们能做的唯有尽早上车!
眼下在断供许久的杨浦五角场商圈,将迎来全新品质佳作
——「杨浦城投·悦江湾」,建面约99-142㎡3-4房即将入市!
1
五角场全称“江湾-五角场”,规划占地面积3.11平方公里,南部地块为上海十大商业中心之一,亦是上海四大城市副中心之一。
整个片区因五条发散型大道的交汇处而得名,与市区西南部的徐家汇遥相呼应。随着现代化商务设施、交通、生态等的不断发展,作为杨浦中心区域的江湾-五角场区域已然成为北上海商圈最繁华的地段之一。
五角场环岛地块是上海十大商业中心之一,与徐家汇、淮海中路、中山公园等商业中心齐名。
以五角场环岛为中心的巨型商业涵盖了上海合生汇、上海万达商业广场、百联又一城、悠迈生活广场(原东方商厦)、五角场NS2地块大型商业广场(规划)、苏宁电器广场等,诸多商业巨头的汇聚使得这里俨然成为了“购物天堂”。多个大型商业载体加快引进国内外新潮业态,推动五角场市级商业中心,打造时尚潮流引领地。
万达、百联、悠迈在改造升级过程中对品牌也有了不少调整,悠迈的品牌翻新率甚至达到50%,新开业的合生汇也引进了不少时尚潮牌。同时,五角场也引进了一些新兴业态,如当当网首家线下实体店,苏宁易购上海首家无人店“苏宁易购Biu”等,科技感与潮流感十足。
在交通方面,「杨浦城投·悦江湾」周边已拥有8号线和10号线两条轨道交通,根据规划,未来还将增设20号线,形成3轨环绕。
项目与10号线三门路站直线距离约800米,与20号线国和路站(规划中)直线距离约700米,轨交出行非常方便。向南与中环线国和路上匝道直线距离仅约1公里左右,自驾出行更为便捷。通过庞大的交通体系网络可以通达陆家嘴、徐家汇、人民广场等多个核心商圈。
教育方面,周边拥有上体附中附属小学,以及杨浦区排名前三的公办重点学校同济第二初级中学,周边2公里内更有杨浦区市光托儿所,杨浦爱绿幼儿园,黑山路幼儿园,政通路幼儿园,上海二师附小,同济初中,兰生复旦中学,上海体育学院等。
医疗方面,项目约2公里范围内有上海东方肝胆外科医院、长海医院,上海市肺科医院等三甲医院。为家人健康保驾护航!
「杨浦城投·悦江湾」不仅在配套上十分的醇熟,板块自身的产业也在不断地发展。这无疑是自住与资产配置两相宜的城市“爆款”。
江湾五角场城市副中心分为三大片区:南部是商业中心、科教商务区,中部是知识创新中央社区,北部是高端知识商务中心。
上海老牌城市副中心:江湾-五角场,
有且仅有的新房供应,错过再无!
众所周知,上海的城市副中心已经拓展到9个,虹桥、莘庄、张江、金桥等新晋城市副中心,皆是新房市场里的翘楚,热度非常高。
但就区位、规划高度、配套能级等而言,老牌城市副中心仍占据无可撼动的优势。
上海老牌四大城市副中心:五角场、徐家汇、真如和花木,皆已成为上海超繁华商圈和产业高地。
不过,老牌城市副中心尤其是徐家汇、五角场早已开发殆尽,发展已经接近饱和,几乎没有新盘入市。
项目处于中部大创智核心区内,根据杨浦区规划,大创智和杨浦滨江、环同济、大创谷一样,是杨浦重点发展的四大区域之一。
大创智创新发展示范区作为上海创新浓度最高的地方,经过多年的发展,目前已经拥有超4500家企业,年营收超3000亿元。
北部的凯德尚浦中心,地上总建筑面积达约20万方,包含十幢办公楼,以高品质现代化办公楼宇及服务,吸引多家行业领军企业。
有着杨浦第一高楼之称的“尚浦领世双子塔”,作为约90万方尚浦领世综合体的地标级建筑,目前一期工程已完美收官,二期预计2025年完工。目前抖音、哔哩哔哩企业总部已入驻公办,另外耐克、德国大陆集团、汉高等国际知名企业将陆续入驻,未来落成的尚浦领世双子塔还将继续吸引优秀企业和人才。
随着板块的不断更迭和产业的大量投入,未来势必会有更多的人才涌入其中。而五角场商圈自2014年以来就再无新房入市,这也使得周边的二手价格十分坚挺。不仅单价站上了13万+,置业一套3房的价格门槛基本来到了2000万左右。
相比之下,「杨浦城投·悦江湾」作为五角场商圈有且仅有的新房,联动价仅约9.9万/㎡,价格上的差异性和性价比显而易见!
「杨浦城投·悦江湾」位于杨浦区长海社区,处于中外环,毗邻五角场商圈,周边的配套相当成熟,生活氛围浓厚!
五角场全称“江湾-五角场”,规划占地面积3.11平方公里,南部地块为上海十大商业中心之一,亦是上海四大城市副中心之一。
整个片区因五条发散型大道的交汇处而得名,与市区西南部的徐家汇遥相呼应。随着现代化商务设施、交通、生态等的不断发展,作为杨浦中心区域的江湾-五角场区域已然成为北上海商圈最繁华的地段之一。
五角场环岛地块是上海十大商业中心之一,与徐家汇、淮海中路、中山公园等商业中心齐名。
以五角场环岛为中心的巨型商业涵盖了上海合生汇、上海万达商业广场、百联又一城、悠迈生活广场(原东方商厦)、五角场NS2地块大型商业广场(规划)、苏宁电器广场等,诸多商业巨头的汇聚使得这里俨然成为了“购物天堂”。多个大型商业载体加快引进国内外新潮业态,推动五角场市级商业中心,打造时尚潮流引领地。
万达、百联、悠迈在改造升级过程中对品牌也有了不少调整,悠迈的品牌翻新率甚至达到50%,新开业的合生汇也引进了不少时尚潮牌。同时,五角场也引进了一些新兴业态,如当当网首家线下实体店,苏宁易购上海首家无人店“苏宁易购Biu”等,科技感与潮流感十足。
在交通方面,「杨浦城投·悦江湾」周边已拥有8号线和10号线两条轨道交通,根据规划,未来还将增设20号线,形成3轨环绕。
项目与10号线三门路站直线距离约800米,与20号线国和路站(规划中)直线距离约700米,轨交出行非常方便。向南与中环线国和路上匝道直线距离仅约1公里左右,自驾出行更为便捷。通过庞大的交通体系网络可以通达陆家嘴、徐家汇、人民广场等多个核心商圈。
教育方面,周边拥有上体附中附属小学,以及杨浦区排名前三的公办重点学校同济第二初级中学,周边2公里内更有杨浦区市光托儿所,杨浦爱绿幼儿园,黑山路幼儿园,政通路幼儿园,上海二师附小,同济初中,兰生复旦中学,上海体育学院等。
医疗方面,项目约2公里范围内有上海东方肝胆外科医院、长海医院,上海市肺科医院等三甲医院。为家人健康保驾护航!
杨浦中外环
五角场商圈 10号线三门路站
「杨浦城投·悦江湾」
建面约99-142㎡3-4房
联动价9.9万/㎡
售楼处电话☎:400-8783-873☎
本电话为开发商提供线上预约售楼咨询电话,项目全面介绍(包含官方最新发布:在线预约看房丨一房一价表丨在售房价优惠丨户型面积房源丨交房时间丨交通地铁丨商业配套丨教育资源丨小高层洋房丨独栋别墅丨联排合院丨商业别墅丨得房率丨容积率丨小区环境丨优缺点分析丨楼盘测评丨在售户型图丨项目介绍丨最新房源丨周边配套丨详细解答丨一对一热情讲解〢区域板块等信息!
上海购房政策 20 条核心(2025 最新版)
分区域松绑 + 人才加码 + 税费优惠,刚需 / 改善 / 科创人才速看!
1. 限购分区差异化调整
符合购房条件的居民家庭,外环外购房不限套数(含新房 / 二手房);外环内沪籍家庭限购 2 套,非沪籍需 3 年社保 / 个税限购 1 套。成年单身人士按家庭标准执行限购政策。
2. 限售政策分类型执行
积分摇号购入的新房:网签满 5 年方可出售;
企业产权住房:网签满 5 年才可转让,职工租赁用小户型二手房不限套数。
3. 商贷利率取消首二套区分
银行业金融机构不再区分首套、二套住房利率,根据客户风险状况等合理定价,实际执行利率可协商优化。
4. 重点区域商贷首付打折
张江科学城:首套房首付最低 15%,二套房 25%;
临港新片区:重点企业员工首套房首付最低 20%。
5. 公积金基础额度提标
首套住房家庭最高贷款额度 160 万元,二套 130 万元;提取公积金付首付不影响贷款额度计算(即 "又提又贷")。
6. 绿色建筑公积金加码
购二星级及以上绿色建筑,公积金额度上浮 15% :首套达 184 万元,二套达 149.5 万元。
7. 多孩家庭贷款叠加上浮
多孩家庭买首套绿色建筑,公积金额度可叠加上浮至 35%,最高达216 万元(全市最高额度)。
8. 临港人才购房 "双松绑"
重点企业员工仅需 3 个月社保即可购房,非户籍社保年限缩短至 1 年,还可增购 1 套住房。
9. 张江科创人才专项支持
首套房首付最低 15%(全市最低),公积金额度提至 192 万元,博士落户享 10 万元安居补贴。
10. 分区人才补贴梯度化
杨浦区:互联网战略创作人才最高补 200 万元,领军人才补 100 万元;
闵行区:卓越学术人才最高补 150 万元(需单位 1:1 配套);
五大新城:非户籍社保缩至 2 年,购房最高补 6.48 万元。
11. 增值税免征年限 2 年起
二手房房产证(或契税单)满 2 年对外销售,免征增值税及附加税;不满 2 年按(核定价 ÷1.05)×5.3% 缴纳。
12. 契税分面积阶梯征收
140㎡及以下:首套、二套均减按 1% 征收;
140㎡以上:首套减按 1.5%,二套减按 2% 征收。
13. 个税退税支持置换住房
出售住房后 1 年内重新购房,可申请退还已缴纳的个人所得税;满 5 年且家庭唯一住房免征个税。
14. 房产税优惠扩围
非沪籍家庭首套住房暂免房产税,二套及以上按人均 60㎡扣除免税面积;持居住证满 3 年可退税。
15. 共有产权房保障加码
中低收入家庭可购共有产权房,政府份额对应补贴力度提升,优先保障五大新城就业人员。
16. 人才公寓供给扩容
张江科学城 3 年新增 1 万套人才公寓,月租≤2000 元;五大新城公租房申请条件放宽。
17. 企业购房条件分级
年纳税 500 万以下:需成立满 5 年、纳税 100 万、10 名员工缴社保 5 年,限购 1 套;
年纳税 500 万以上:无上述限制,限购 1 套。
18. 住房套数认定有剔除项
2011 年前与父母共有的≤2 套住房、未成年时与父母共有的≤2 套住房,不计入家庭住房套数。
19. 外籍 / 港澳台购房优化
持 B 类居住证或中国绿卡可免征房产税;港澳台居民满 3 年社保 / 个税可直接享受房产税优惠。
20. 老旧小区购房配套支持
购买 2000 年前竣工的 70㎡及以下二手房,企业可多套购入用于职工租赁,个人置换享税费优先核算。
关键提醒
2025 年 8 月 26 日起施行的新政(如限购、公积金调整)已全面落地,部分补贴需在政策有效期内申请;
人才补贴、社保门槛等各区细则不同(如临港与杨浦差异较大),可拨打 962269 咨询;
积分摇号新房、企业产权房不适用部分购房补贴政策,需提前核实。
声明:本文由入驻焦点开放平台的作者撰写,除焦点官方账号外,观点仅代表作者本人,不代表焦点立场。


